Athalassis White

Description:

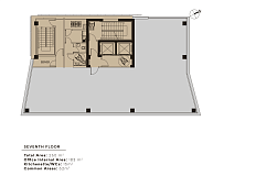
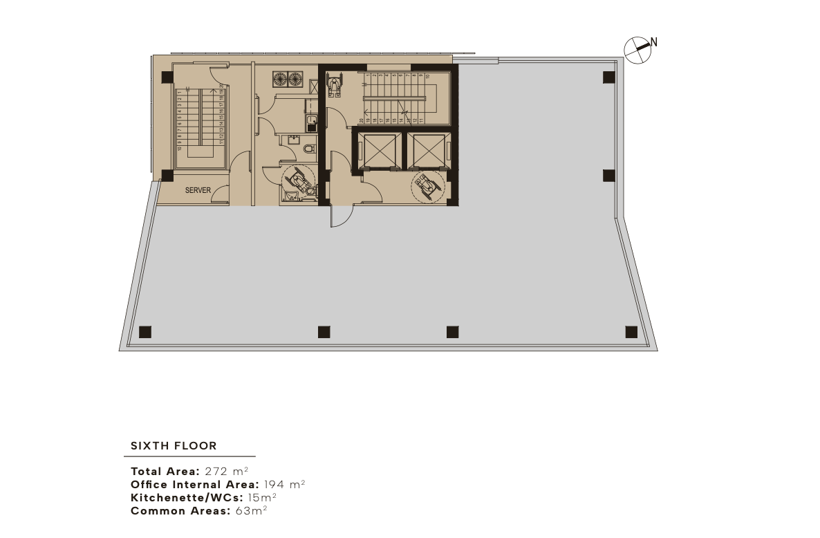
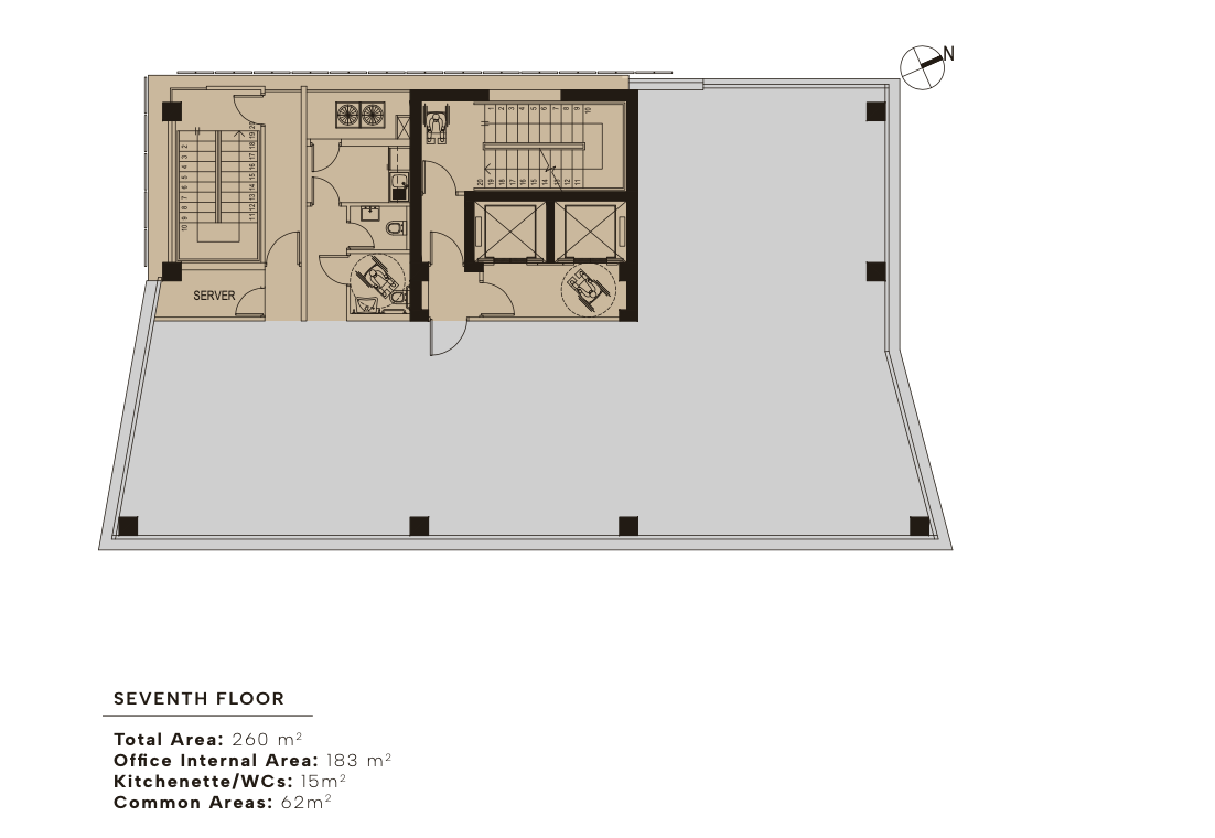
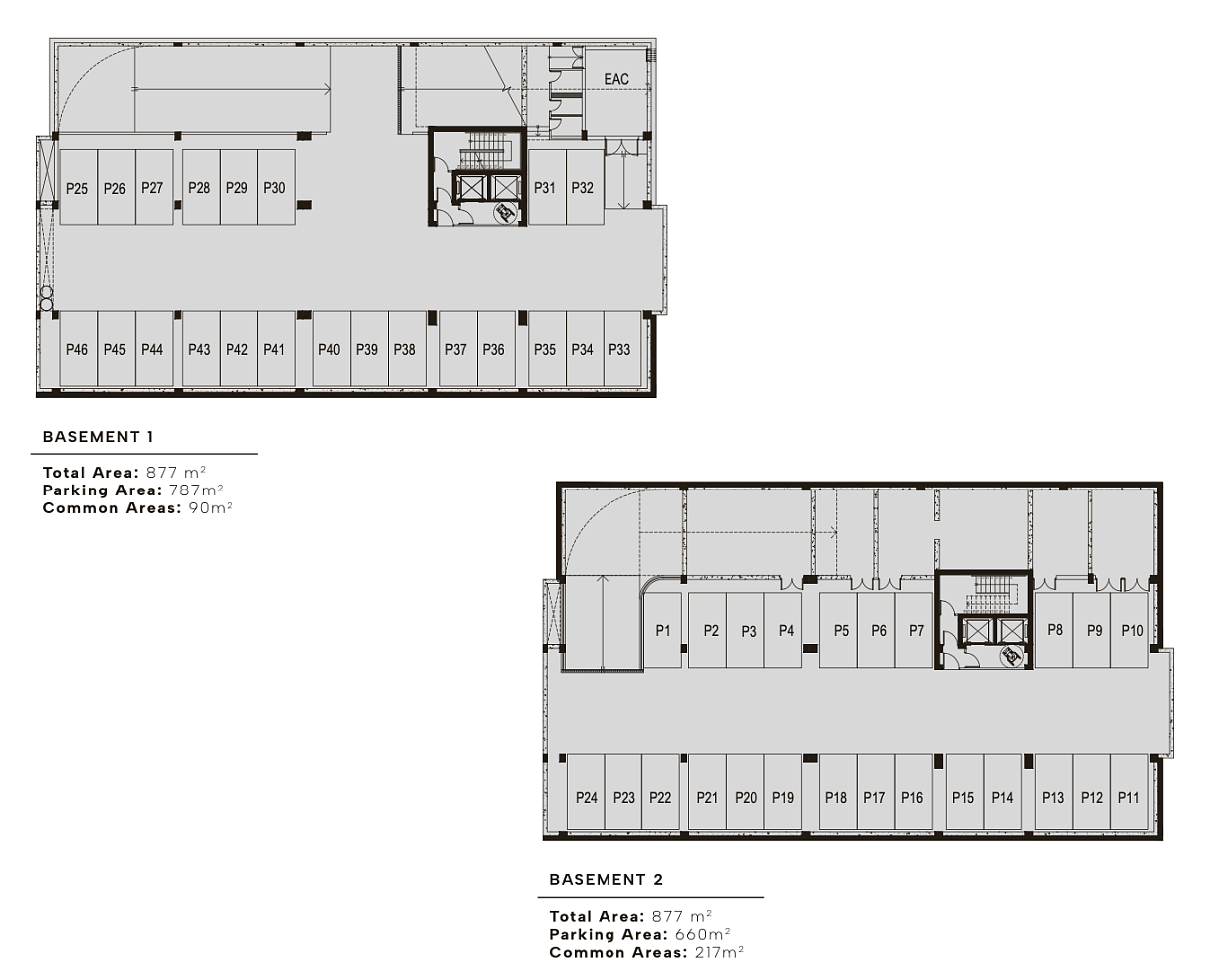
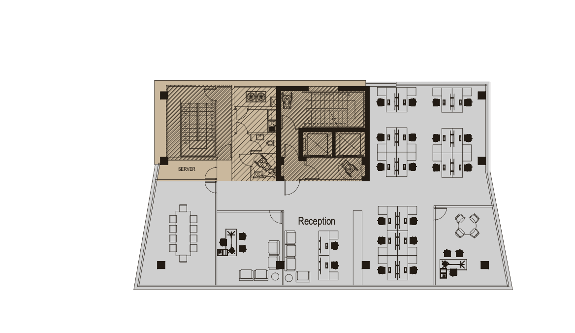
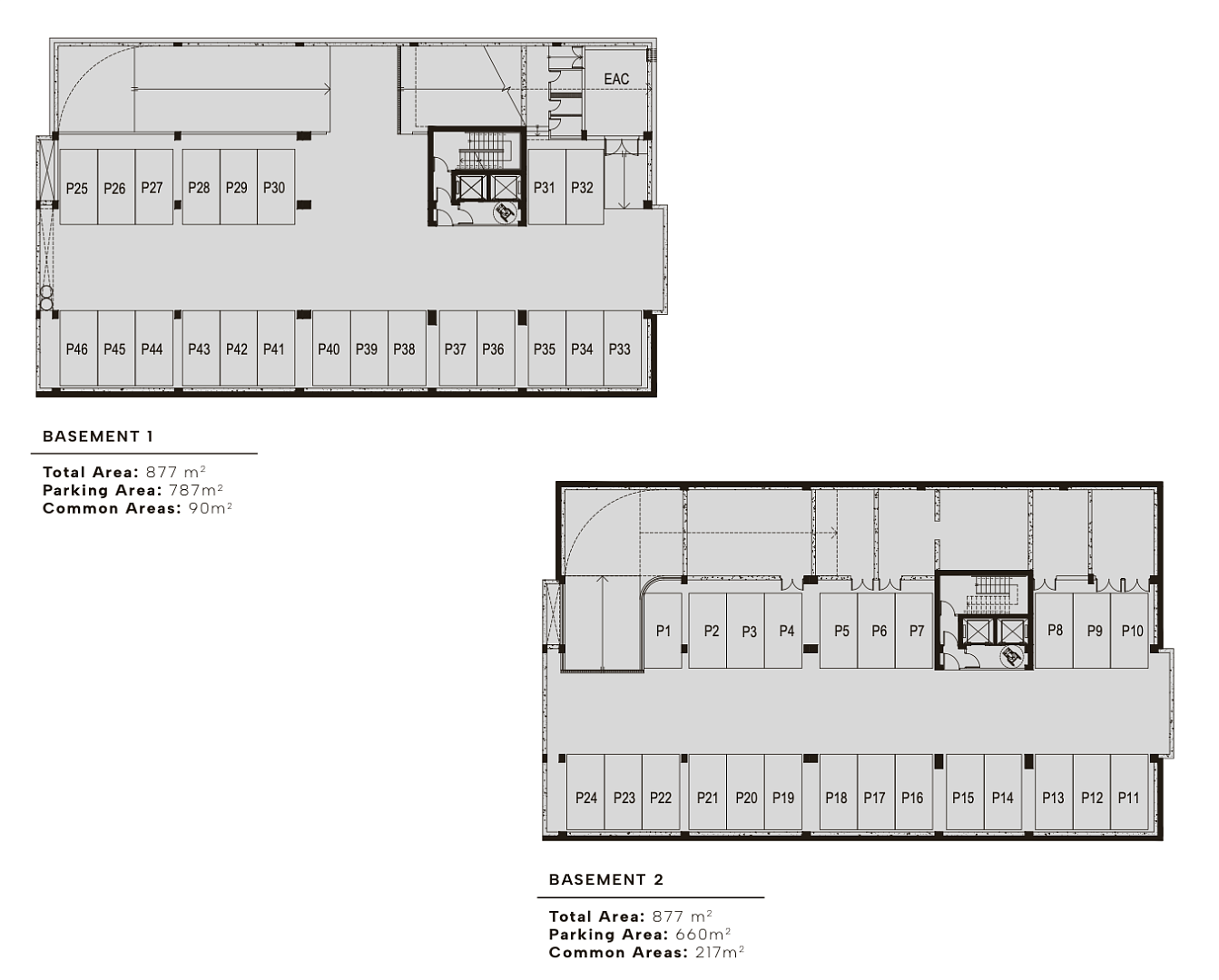
Athalassis white is a new office building in Strovolos, Nicosia. This unique building consists of seven office floors, two basement floors, 59 parking spaces and a terraced roof garden with a communal living room on the eighth floor. Each room in the building is designed to reduce environmental impact and energy consumption through the use of advanced methods, tools and solutions in the field of environmentally friendly construction in accordance with the latest standards in the field of environmental protection and sustainable development. An astute approach to open-plan design provides unparalleled flexibility, allowing each office space to be adapted to meet any unique requirements. The lobby on the ground floor and all office premises are equipped with a centralized DAIKIN VRV air conditioning system.

Read more
City
Nicosia
Area
Strovolos
Updated
29.04.2026
Floors
7
Area of objects, m2
from 218 to 218
Energy class
A
Cost of rent, EUR:
from 5 600 to 5 600
Learn more:
Anna Hrozina
Objects
Table
List
Add a comment
Leave a comment
Компания «Dom Real Estate» Контакты:
Адрес: Limassol, Cyprus,
Телефон:+357 25 212 212, Электронная почта: info@dom.com.cy