Oroklini 532

Description:

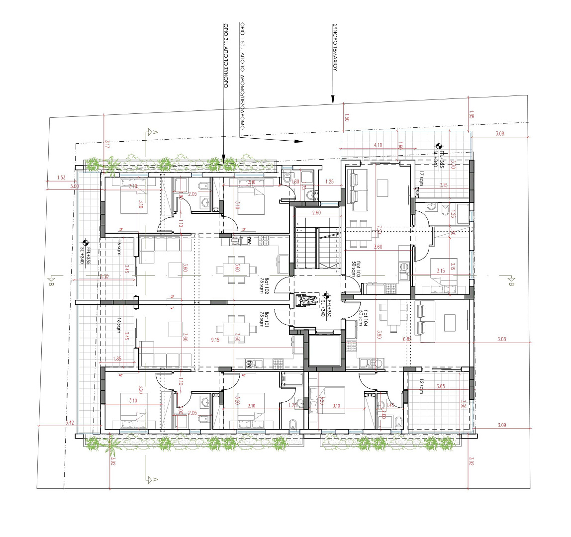
A new residential complex in the Oroklini area, Larnaca, is located in a quiet residential area with convenient access to urban infrastructure and the coastal area. The project is characterized by high-quality construction, modern engineering solutions and thoughtful layouts, which makes it attractive both for your own residence and for investment purposes.

The building is made of reinforced concrete construction in compliance with antiseismic standards, ensuring reliability and durability of operation. High-quality materials are used in the decoration, including ceramic floor coverings, marble and granite surfaces, as well as modern wooden interior elements, built-in wardrobes and functional kitchen solutions.

The complex is equipped with modern engineering systems, including high-quality electrical infrastructure, UPVC or aluminum windows, modern kitchen areas with marble or granite work surfaces, and photovoltaic systems that ensure a high level of energy efficiency and living comfort.

This complex is a modern and functional solution in one of the promising areas of Larnaca, combining comfort, quality of construction and convenient location.

Read more
City
Larnaca
Area
Oroklini
Updated
29.04.2026
Floors
2
Number of bedrooms
from 1 to 2
Area of objects, m2
from 62 to 161
Distance to the sea, m
2300
Energy class
A
Cost of purchase, EUR:
from 143 000 to 245 000
Learn more:
Irina Diomina
Objects
Table
List
https://dom.com.cy/upload/resize_cache/uf/220/1088_820_2/05ge3pie09mn1ieq2xna2adqdl7v7wdb.jpg
№ 203552
Total area: 62 m2
Bedrooms: 1
147 000 EUR+VAT
2 371 EUR/m2
https://dom.com.cy/upload/resize_cache/uf/f6d/1088_820_2/3g9a6b32qid7b1ghfwq89htuyt1f2eon.jpeg
№ 203551
Total area: 161 m2
Bedrooms: 2
237 000 EUR+VAT
1 472 EUR/m2
https://dom.com.cy/upload/resize_cache/uf/b97/1088_820_2/uknhzidy95eatmvkpsbo9xyh4wx25ho5.jpg
№ 203550
Total area: 161 m2
Bedrooms: 2
245 000 EUR+VAT
1 522 EUR/m2
https://dom.com.cy/upload/resize_cache/uf/b09/1088_820_2/tocm67zvh8lvb23g2juki58apa2o4pdu.jpg
№ 203549
Total area: 62 m2
Bedrooms: 1
143 000 EUR+VAT
2 306 EUR/m2
https://dom.com.cy/upload/resize_cache/uf/5b1/1088_820_2/sps0asmvfh0b6eq9c3skaj4qtr5yupzy.jpeg
№ 203548
Total area: 91 m2
Bedrooms: 2
197 000 EUR+VAT
2 165 EUR/m2
Add a comment
Leave a comment
Компания «Dom Real Estate» Контакты:
Адрес: Limassol, Cyprus,
Телефон:+357 25 212 212, Электронная почта: info@dom.com.cy