Ariadne

Description:

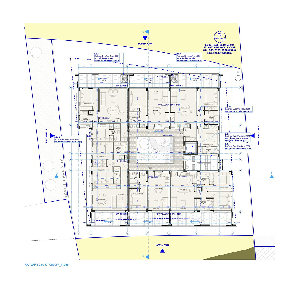
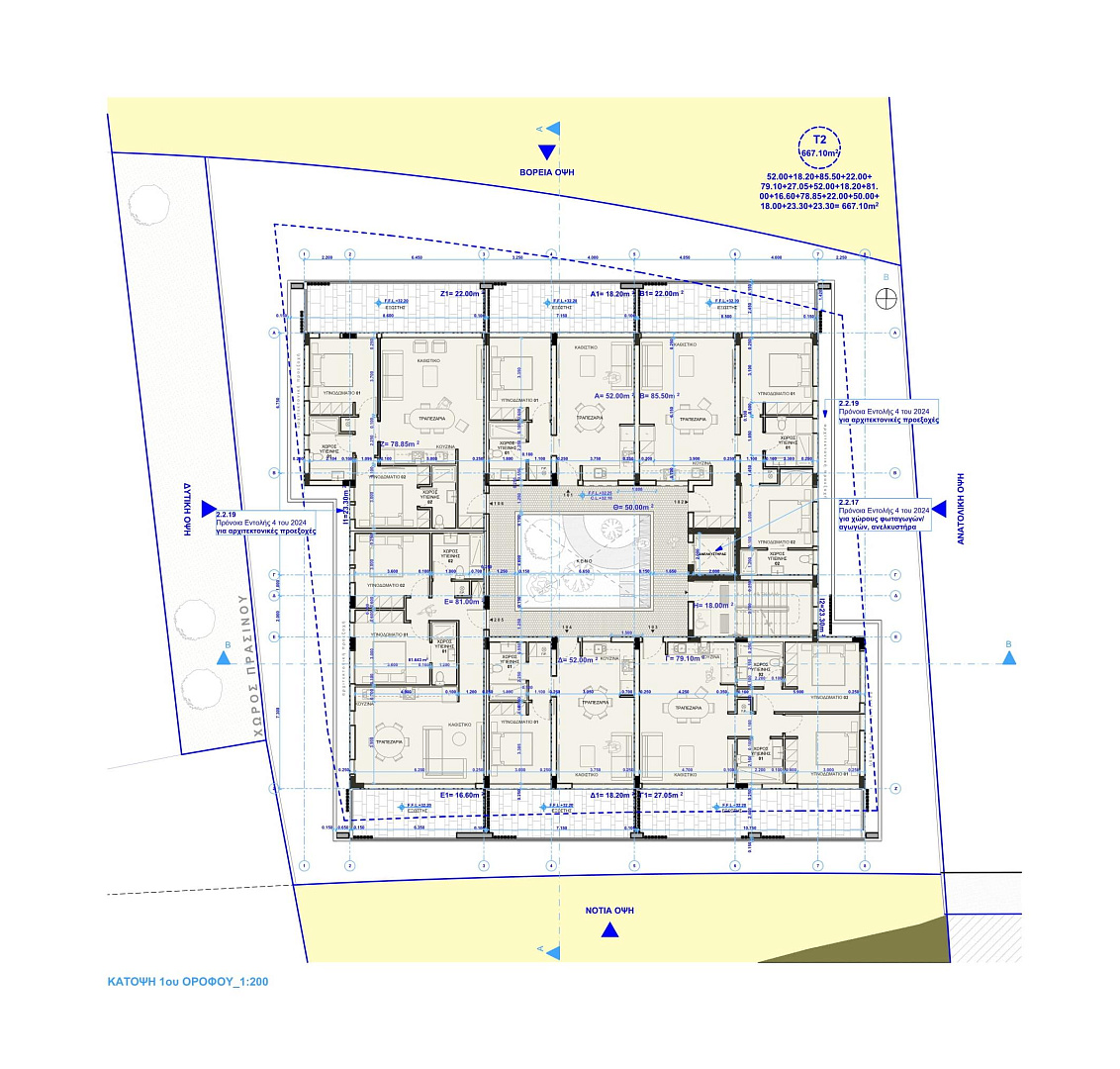
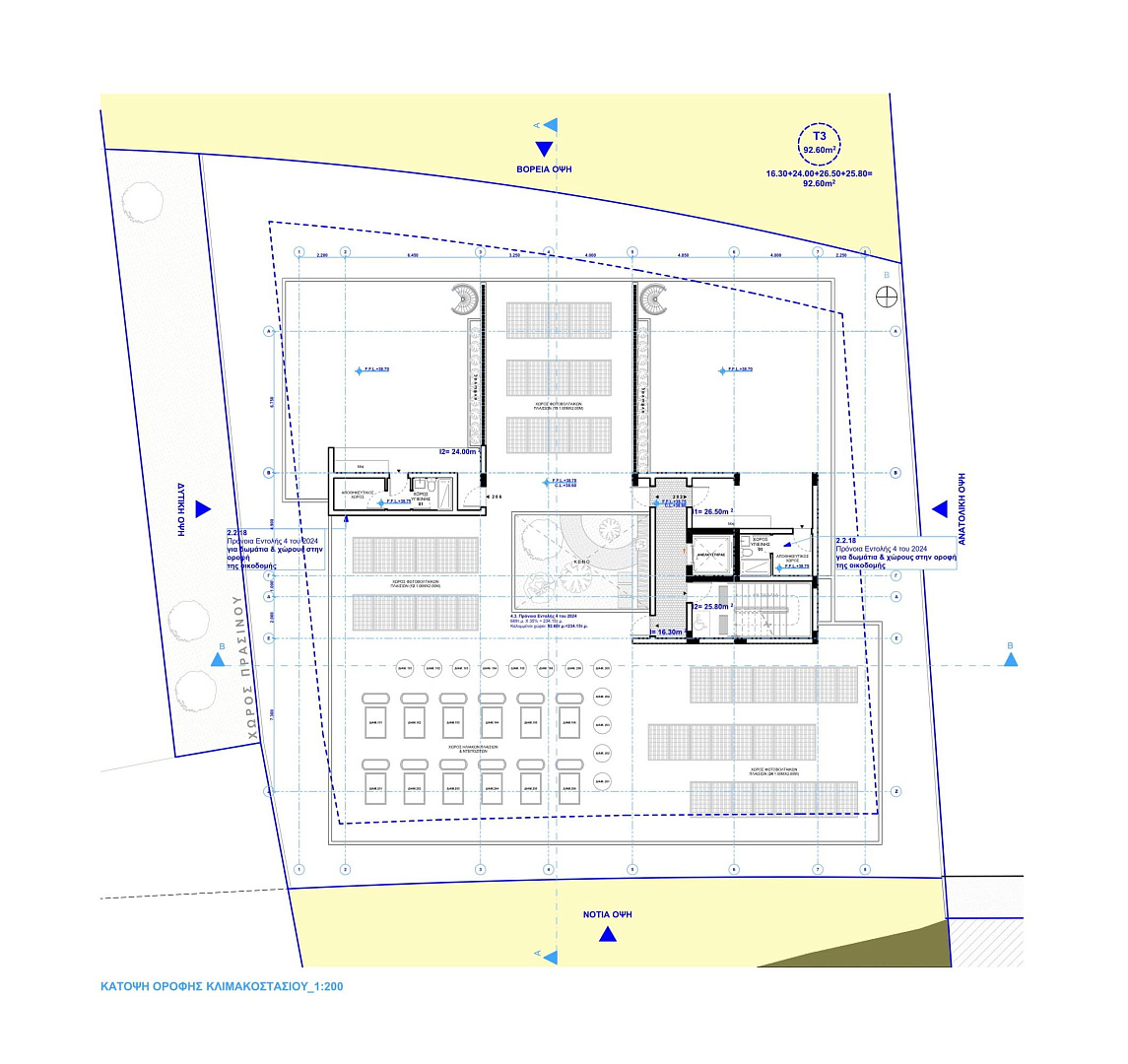
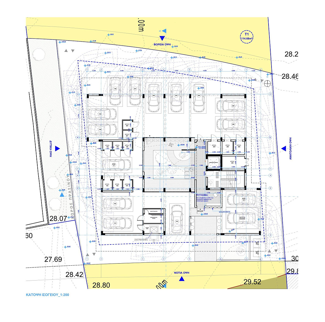
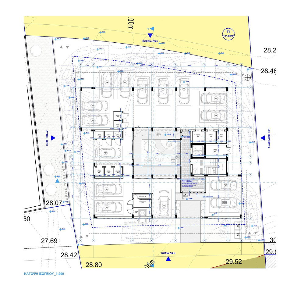
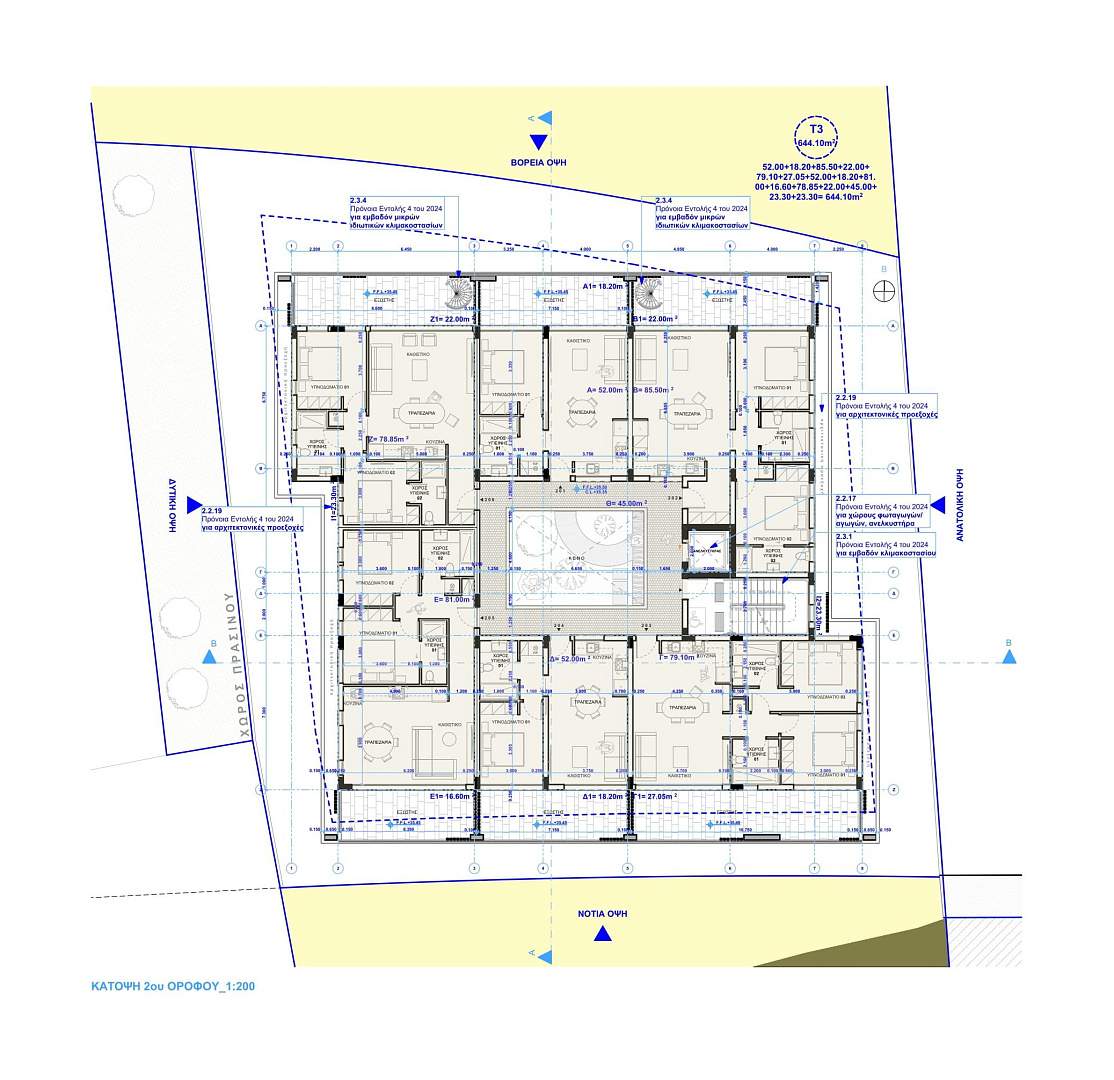
Modern complex in the Livadia area, Larnaca. The two-storey complex has a total of 12 apartments with 1 and 2 bedrooms. Each apartment is designed taking into account modern requirements for comfort and functionality.

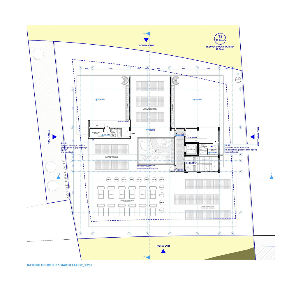
The apartment has an open plan kitchen and living room, as well as a covered veranda. Each apartment also has its own parking space and storage room, which will provide additional convenience for storing things. The penthouses have their own roof garden.

Livadia area is famous for its peaceful atmosphere and proximity to the sea and the center of Larnaca. This is an ideal place for those who appreciate peace and privacy, but at the same time want to stay within walking distance of urban amenities.

Read more
City
Larnaca
Updated
24.11.2025
Add a comment
Leave a comment
Компания «Dom Real Estate» Контакты:
Адрес: Limassol, Cyprus,
Телефон:+357 25 212 212, Электронная почта: info@dom.com.cy