
New 1-bedroom apartment in Famagusta / Agia Napa №44942




SOLD
1
Additional:
Pantry
Parking
Pool
Description:
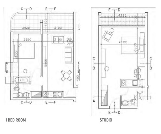
Studio for sale in a complex in the modernizing lively center of Ayia Napa. The project is an existing two-storey building, which is being restored using the most modern technologies. From the windows of all apartments there will be a beautiful view of the sea. Project features 28 high-end studios Entrance lobby Breakfast area with beautiful sea view Outdoor swimming pool Kiosk / bar Manicured gardens
Object
№44942
Type:
Apartment
City:
District:
Complex:
Developer:
Bedrooms count:
1
Bathrooms:
1
Total area:
60 m²
Living area:
37 m²
Floor:
1
Floors:
2
Construction year:
07/2022
Distance to sea:
1000 м
Energy class:
A
€286,000+ VAT
€4,767 / m²
DOM Real Estate
+357 23 020 609











