
4-bedroom house in Limassol / Agia Fyla №38214




SOLD
3
Description:
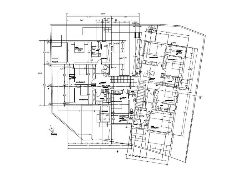
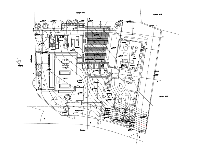
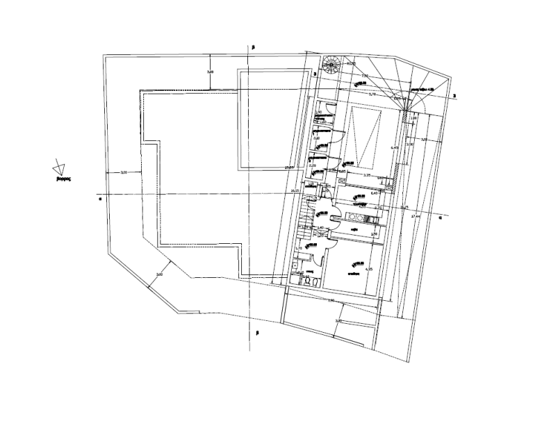
For sale 2 incomplete houses in Agia Fyla, Limassol. The construction comprises of two semi-detached four-bedroom houses and a common pool. The houses are in the very early stages of construction. The asset falls within residential planning zone Κα7, with a building density coefficient of 80%, coverage coefficient of 45%, 3 floors and a maximum height of 13,5m. There are: title deed for the plot, building and planning permit and architectural plan.
Object
№38214
Type:
House / Villa
City:
District:
Complex:
Developer:
Bedrooms count:
4
Bathrooms:
3
Land area:
636 m²
Floors:
2
Distance to sea:
2500 м
€210,000+ VAT
DOM Real Estate
+357 25 059 358




