
New 3-bedroom house in Nicosia / Lakatameia №198318




SOLD
4
Additional:
Pantry
Parking
Description:
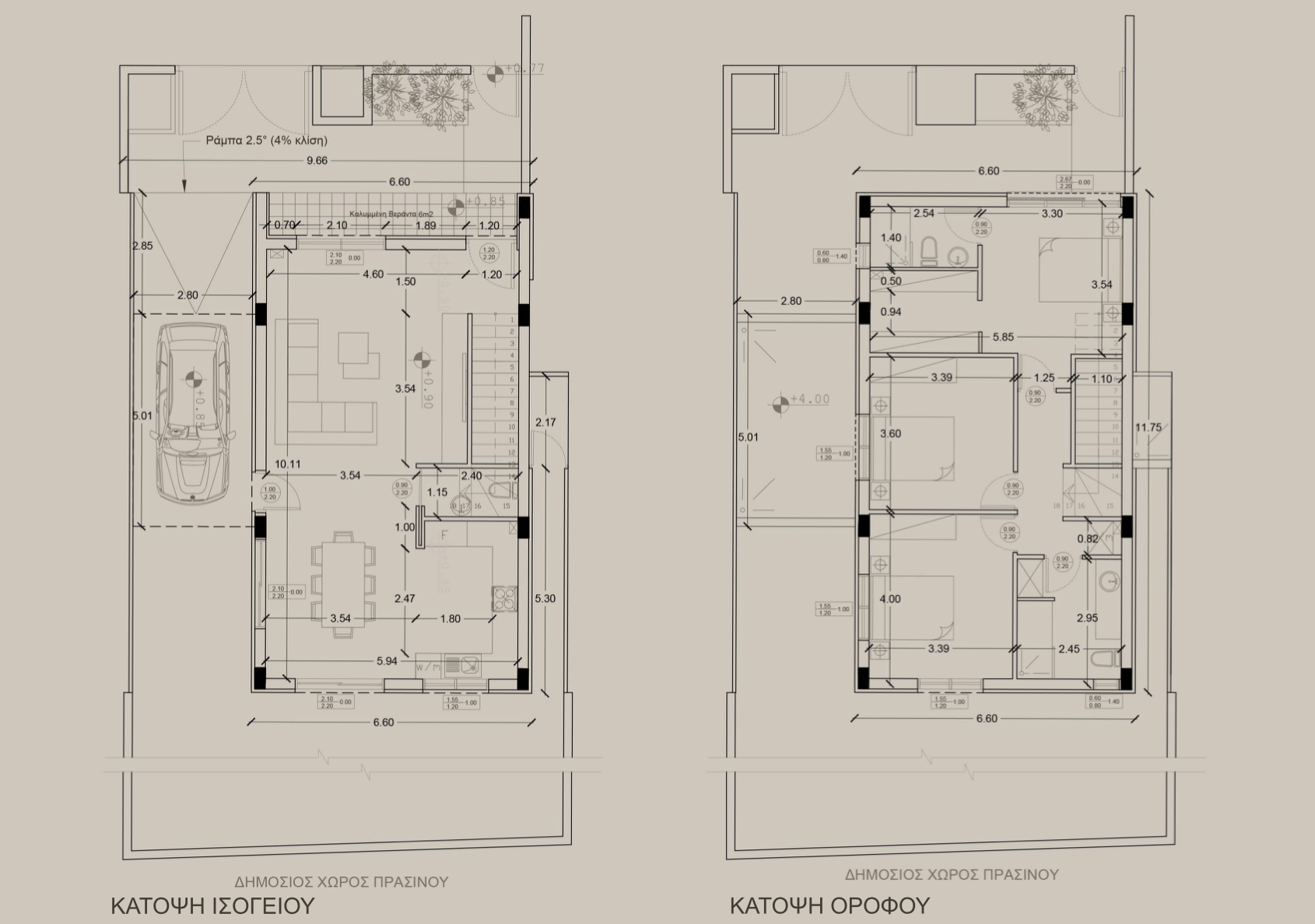
3 bedroom house for sale in a new project in the heart of Lakatamia, Nicosia, in an area combining tranquility and direct access to the city. The project includes 12 3 and 4 bedroom residences, ideal for modern families looking for a warm, functional and ergonomic space. Energy efficiency class A. Spacious living rooms, modern kitchens and ergonomic bedrooms.Private outdoor areas and covered parking. Quiet area with easy access to schools and services.
Object
№198318
Type:
House / Villa
City:
District:
Complex:
Developer:
Bedrooms count:
3
Bathrooms:
3
Total area:
180 m²
Living area:
150 m²
Land area:
226 m²
Floors:
2
Construction year:
07/2026
Energy class:
A
€278,000+ VAT
€1,544 / m²

Kristina Acheriotou
+357 22 03 06 78











