New 2-bedroom penthouse in Larnaca № 192019
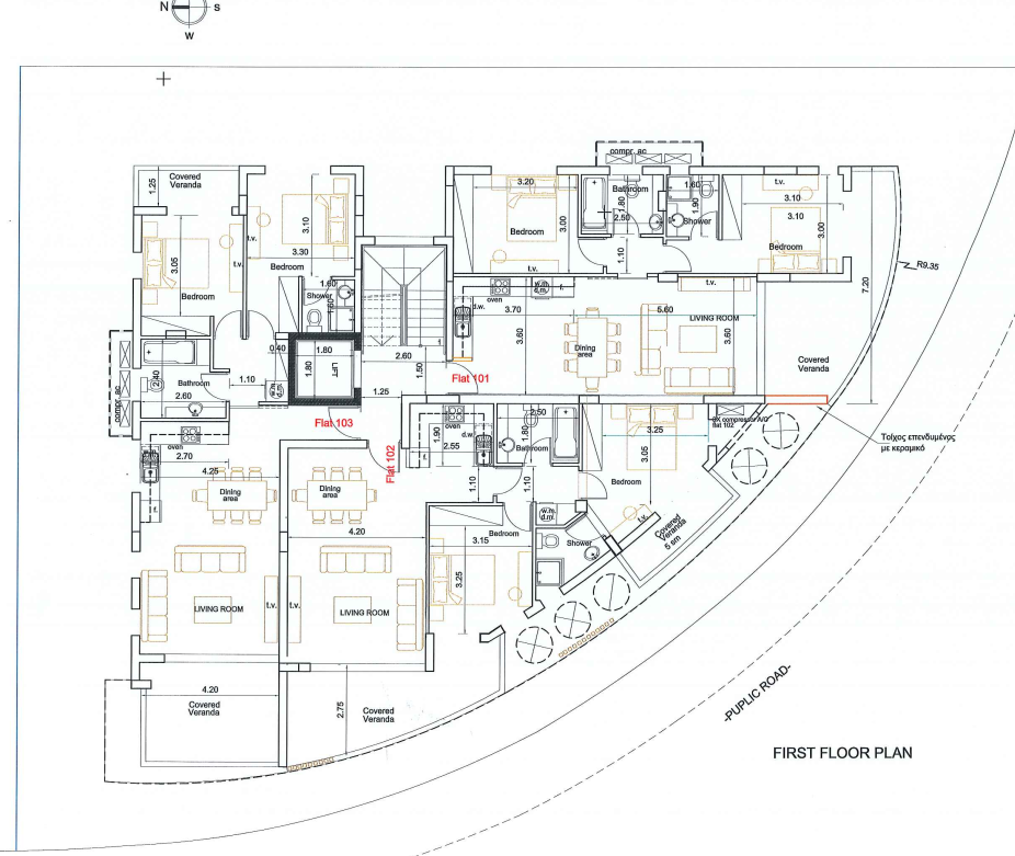
Penthouse for sale in Livadia, 300 meters from the sea, with excellent return on investment potential. A unique project located in an excellent area with high rates of growth and development in the near future. The complex is located on a corner plot, combines a calm relaxing atmosphere with easy access to all amenities such as shops, restaurants and a shopping center. The penthouse consists of 2 bedrooms, 2 bathrooms, a covered veranda of 17 m2, a roof garden of 61 m2, a storage room and parking. There is a separate exit to the private roof garden with panoramic sea views and a barbecue area, as well as an additional room, toilet, shower and storage room. The two apartments on the top floor will have meters, a photovoltaic system, a Jacuzzi bar and 3-phase electricity. Each apartment is designed in such a way as to provide privacy and comfort to its residents. All apartments have spacious verandas with beautiful views. Distances: Larnaca International Airport is a 15-minute drive from the complex, the American Academy School and the private English language school Med High are a 5-minute drive away. 100 meters to the American University of Cyprus. A 15-minute drive from UCLan Cyprus. 10 minutes to Finikoudes beach. Easy access to the highway connecting all major cities of Cyprus. The south-facing orientation provides a bright and spacious apartment. Energy efficiency of class A.
