
New 2-bedroom apartment in Limassol / Kato Polemidia №186763




2
Additional:
Elevator
Pantry
Parking
Description:
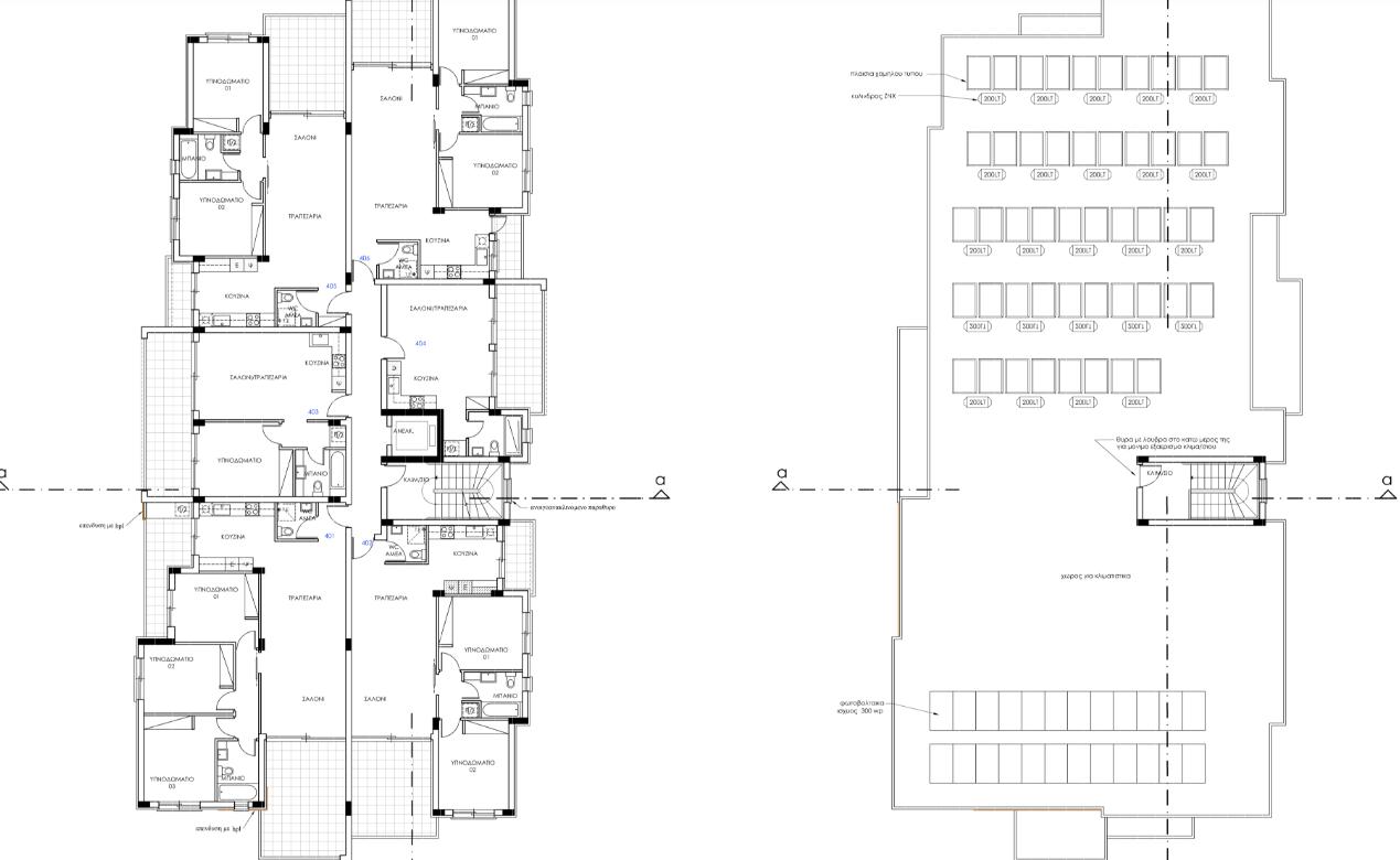
Apartments for sale in a new two-block complex in Kato Polemidia, Limassol. This area is close to the center of Limassol, which provides easy access to the main urban amenities and infrastructure. It also has convenient transport links, being close to major highways and motorways, making it easier to travel around the city and beyond. Each apartment has a covered veranda, covered parking and storage space. The building has an elevator.
Object
№186763
Type:
Apartment
City:
District:
Complex:
Developer:
Bedrooms count:
2
Bathrooms:
2
Total area:
104 m²
Living area:
83 m²
Floor:
5
Floors:
4
Construction year:
07/2027
Distance to sea:
3500 м
€290,000+ VAT
€2,788 / m²
DOM Real Estate
+357 25 056 478











