
New 4-bedroom house in Limassol / Agios Athanasios №181872




Additional:
Description:
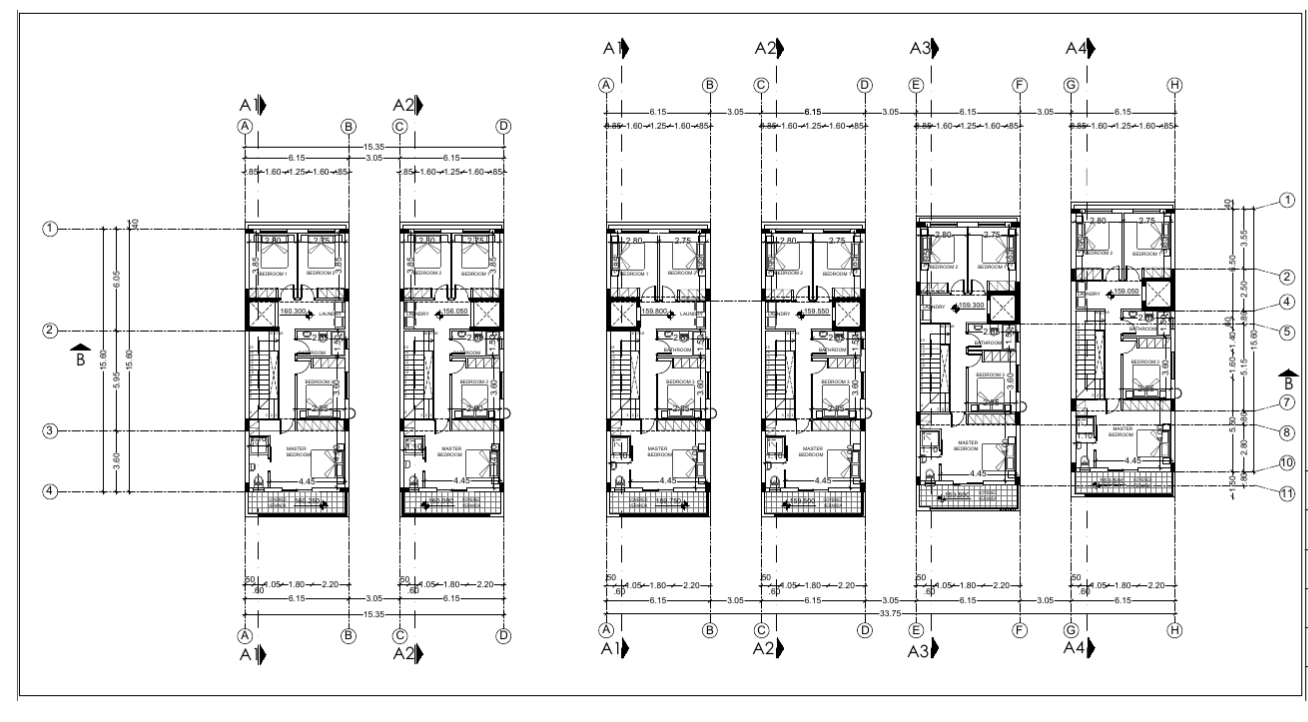
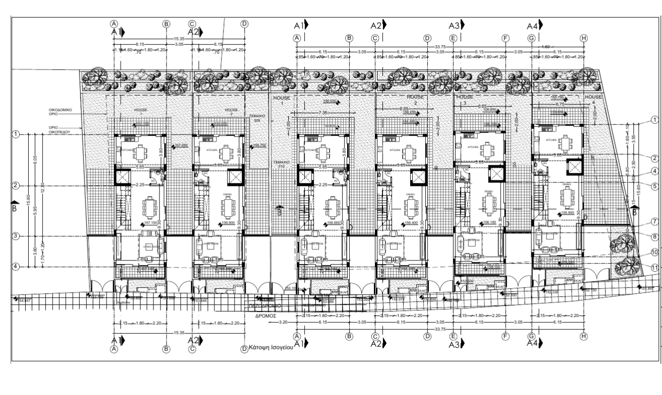
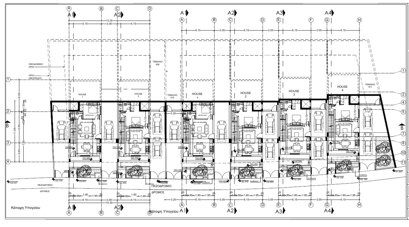
House for sale in a complex under construction in a quiet and peaceful part of Agios Athanasios, Limassol. Project Characteristics: Austrian photovoltaic system 3KW German insulation 10cm (ClimaPlus - Thrakon) German solar panels and Italian pressure pipe Italian manifolds and multilayer pipe-in-pipe system with aluminum layer (Giacomini) Italian waterproofing system (Copernit) Belgian waterproof parquet with a lifetime warranty (Quick-step) Insulated bricks and windows Large budget for plumbing, ceramics and tiles (55 euros / m2) Mounting walls covered with adhesive glue with fibers (Thrakon 410) The interior walls are finished with fiber adhesive and three-layer stucco. Galvanized gates BOSCH Household appliances (refrigerator, washing machine, dryer, microwave oven, built-in oven, induction hob, extractor hood) DAIKIN air conditioner MIDEA Water Filter / Dispenser Automation Solution Sonoff Italian water filtration system for the whole house The choice of a facade made of HPL / stone / wood on an individual order
№181872
House / Villa
City:
District:
Complex:
4
4
315 m²
263 m²
245 m²
2
07/2028
4000 м
A
€2,540 / m²
DOM Real Estate
+357 25 056 478









