New 2-bedroom flat in Larnaca № 180613
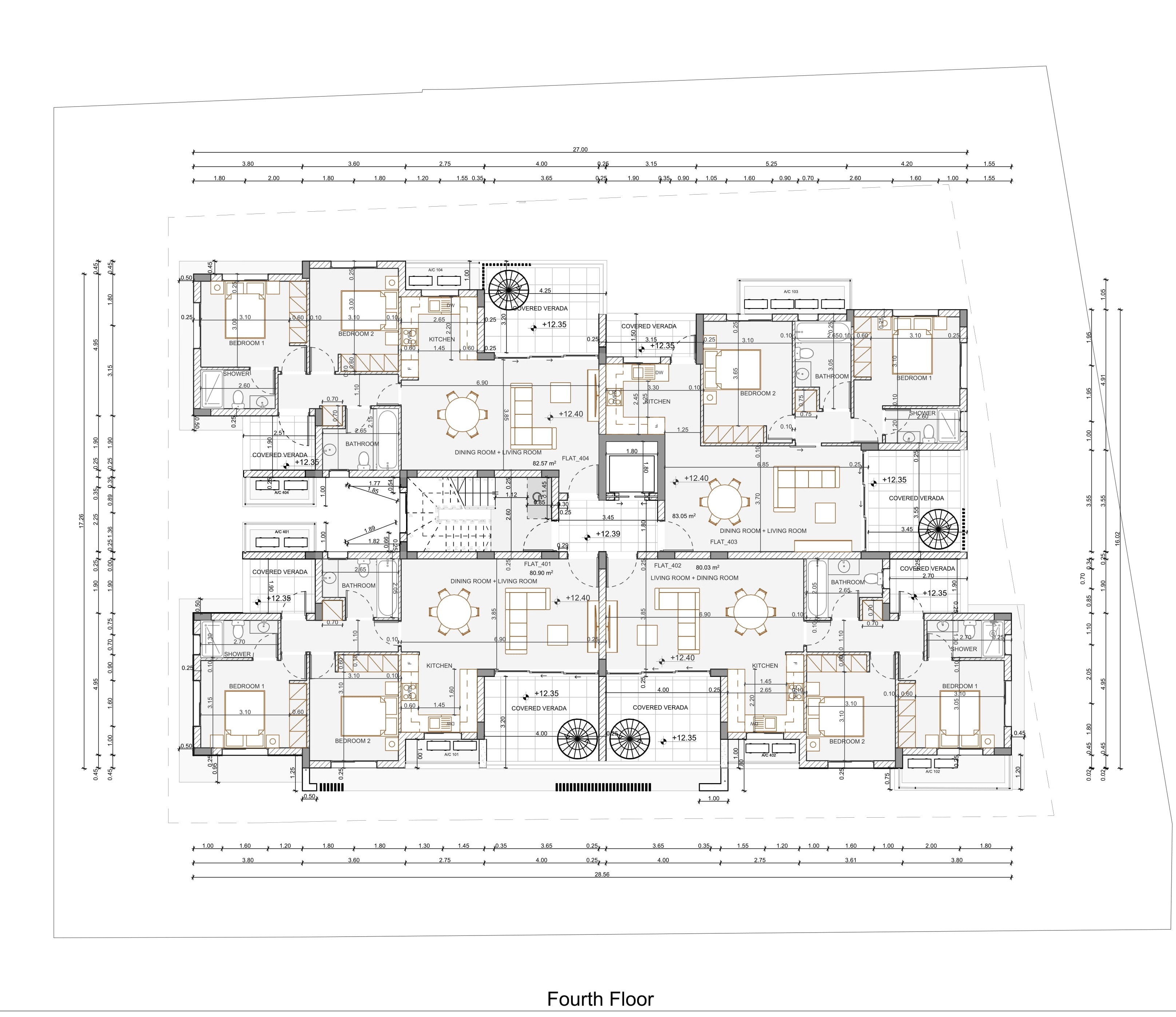
Apartment for sale in a new residential complex in the area of Drosia, Larnaca. The project features twenty—two two-bedroom apartments, all with spacious and modern living areas. The apartments on the fifth floor with two bedrooms and two bathrooms have large covered balconies, as well as two rooms on the roof with three bathrooms, which are accessible only to owners who prefer a luxurious life. It features a large bar and a barbecue area in the rooftop garden, as well as panoramic views of the famous salt lake of Larnaca. Each apartment has one parking space and a storage room on the ground floor.
The modern design perfectly combines elements such as high-quality Italian ceramic finishes, glass balconies and a well-thought-out layout of living spaces, allowing for additional space at will. The project will have energy efficiency class "A", as photovoltaic panels will be installed on the roof.
The complex is located in the very exclusive and prestigious St. George area of Larnaca, overlooking the salt lake of Larnaca, less than 3 kilometers from the Blue Flag beaches of Larnaca. The project is very close to supermarkets, private schools such as the American Academy, and has direct access to highways leading to Nicosia, Limassol, Paphos and Ammohostos. The famous salt lake of Larnaca and the Cineplex entertainment complex are in the immediate vicinity.going to Nicosia, Limassol, Paphos and Ammohostos. The famous salt lake of Larnaca and the Cineplex entertainment complex are in the immediate vicinity.

 
										 
										 
										 
										 
										 
										 
										 
										 
										 
										 
										 
										 
										 
										 
										 
										 
										 
										 
										 
										 
										 
										 
								 
								 
								 
								 
								 
								 
								 
								 
								 
								 
								 
								 
								 
								 
								 
								 
								 
								 
								 
								 
								 
								 
							 
																	 
																	 
																	 
																	 
																	 
																	 
																	 
																	 
																	 
																	 
																	 
																	 
																	 
																	 
																	 
																	 
																	 
																	 
																	 
																	 
																	 
																	 
																	 
																	 
																	 
																	 
																	 
																	 
		 
		 
		 
		 
		 
		 
		 
		 
		 
		 
		 
		