
New 3-bedroom apartment in Larnaca / Metropolis Mall Area №174104




10
Additional:
Elevator
Pantry
Parking
Description:
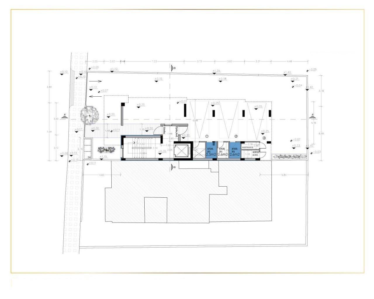
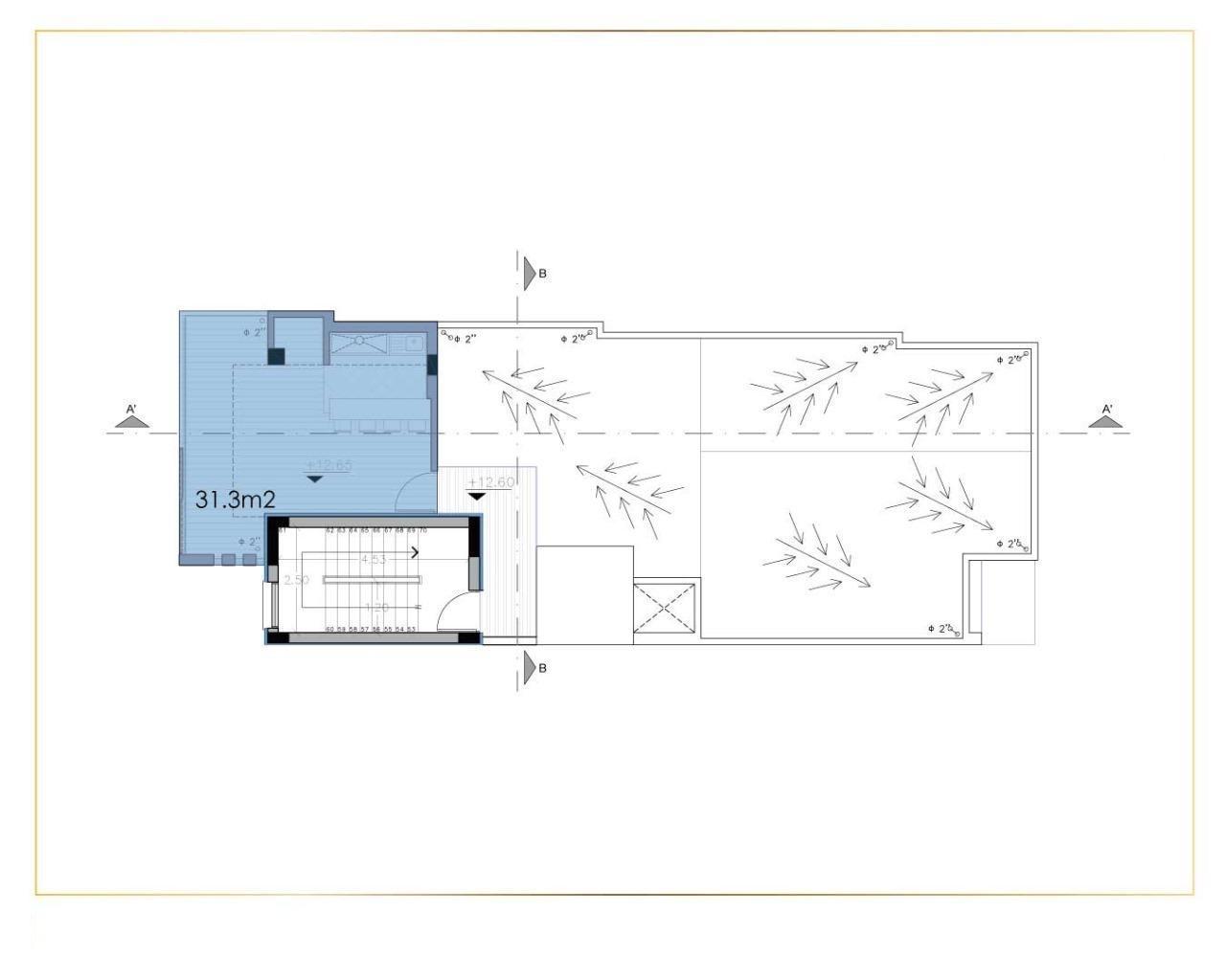
3 bedroom apartment for sale in a new residential complex in the area of Salamina, Larnaca. There are 3 apartments in total, one on each floor. Modern architectural design. Covered parking, storage room. Photovoltaic system for each unit (4 kW). Energy efficiency class A. Close to the Metropolis Shopping Center in Larnaca, with direct access to schools, gyms, shops and highways leading to Nicosia, Limassol and Ayia Napa.
Object
№174104
Type:
Apartment
City:
District:
Complex:
Developer:
Bedrooms count:
3
Bathrooms:
3
Total area:
123 m²
Living area:
104 m²
Floor:
2
Floors:
3
Construction year:
07/2026
Distance to sea:
2800 м
Energy class:
A
€275,000+ VAT
€2,236 / m²
DOM Real Estate
+357 24 023 513









