
New 1-bedroom apartment in Larnaca / Sotiros №174071




1
Additional:
Elevator
Pantry
Parking
Description:
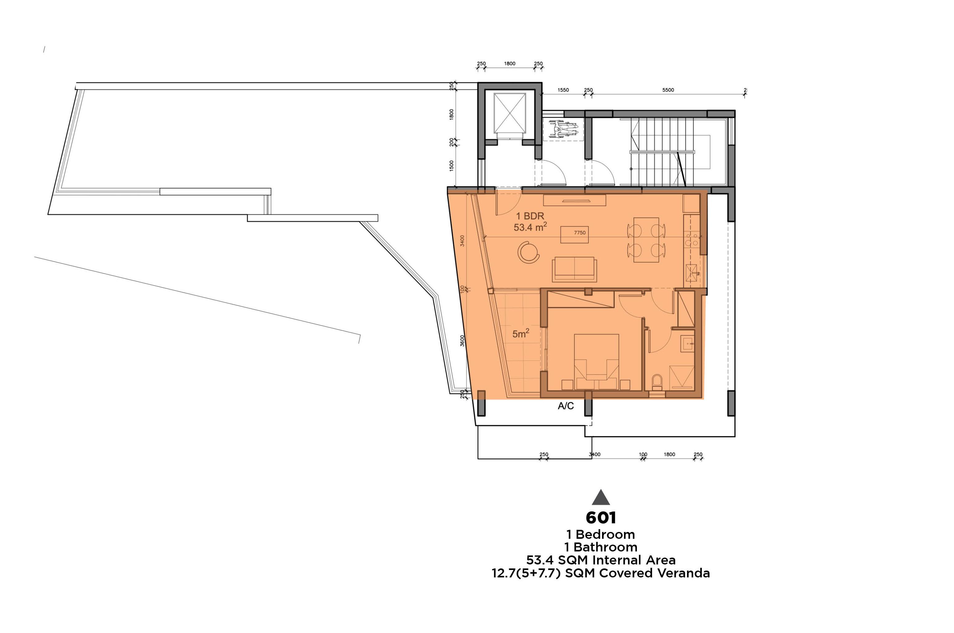
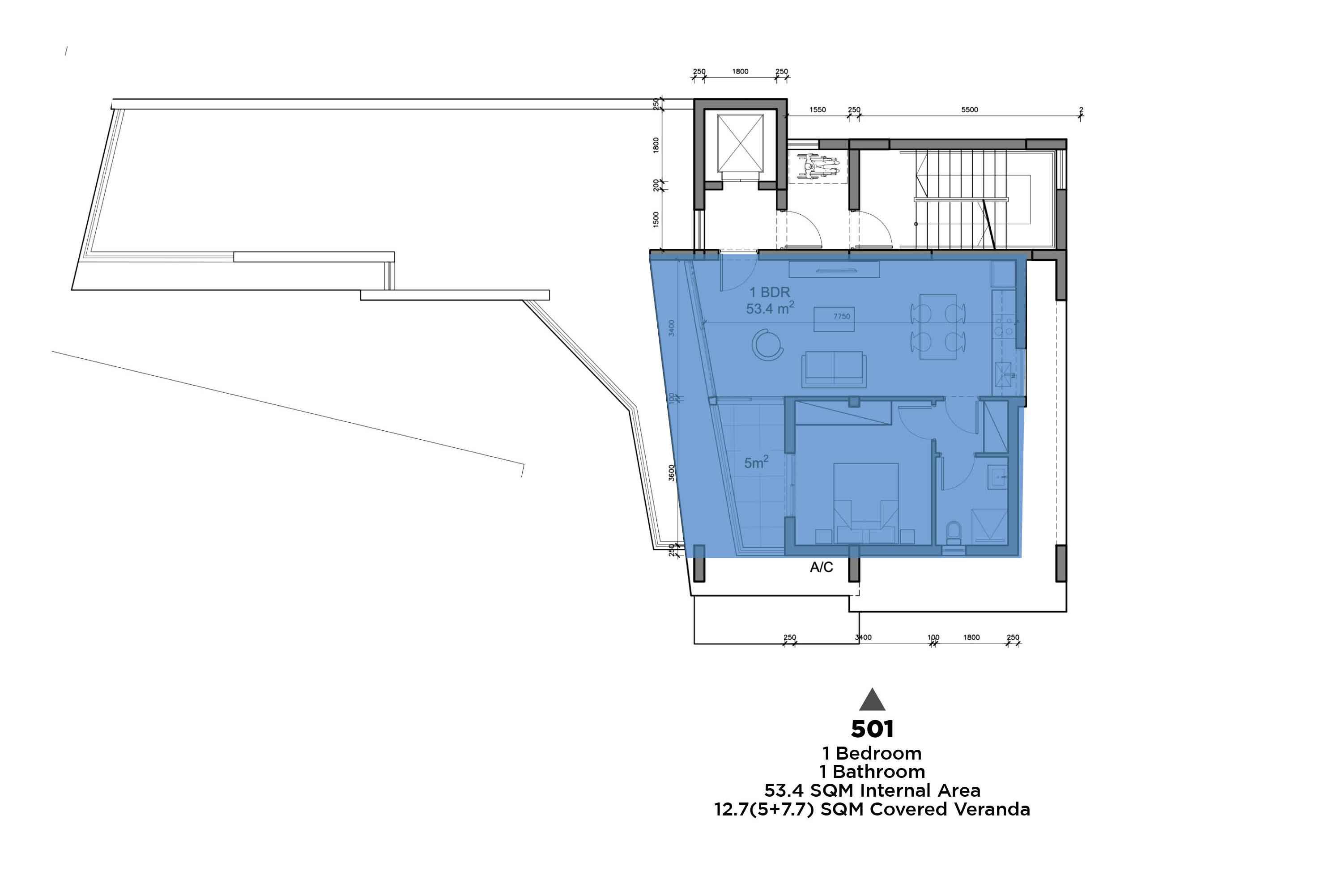
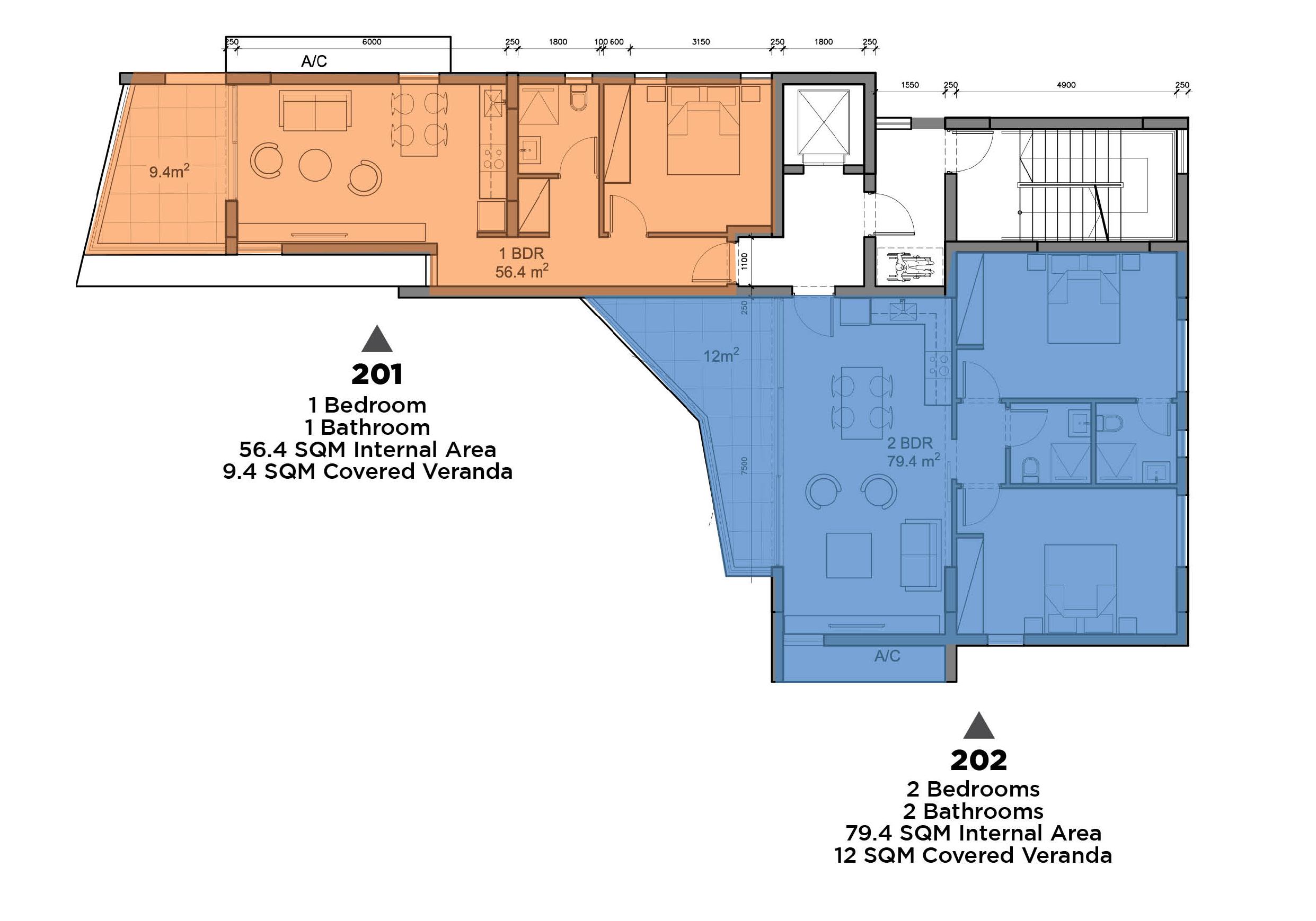
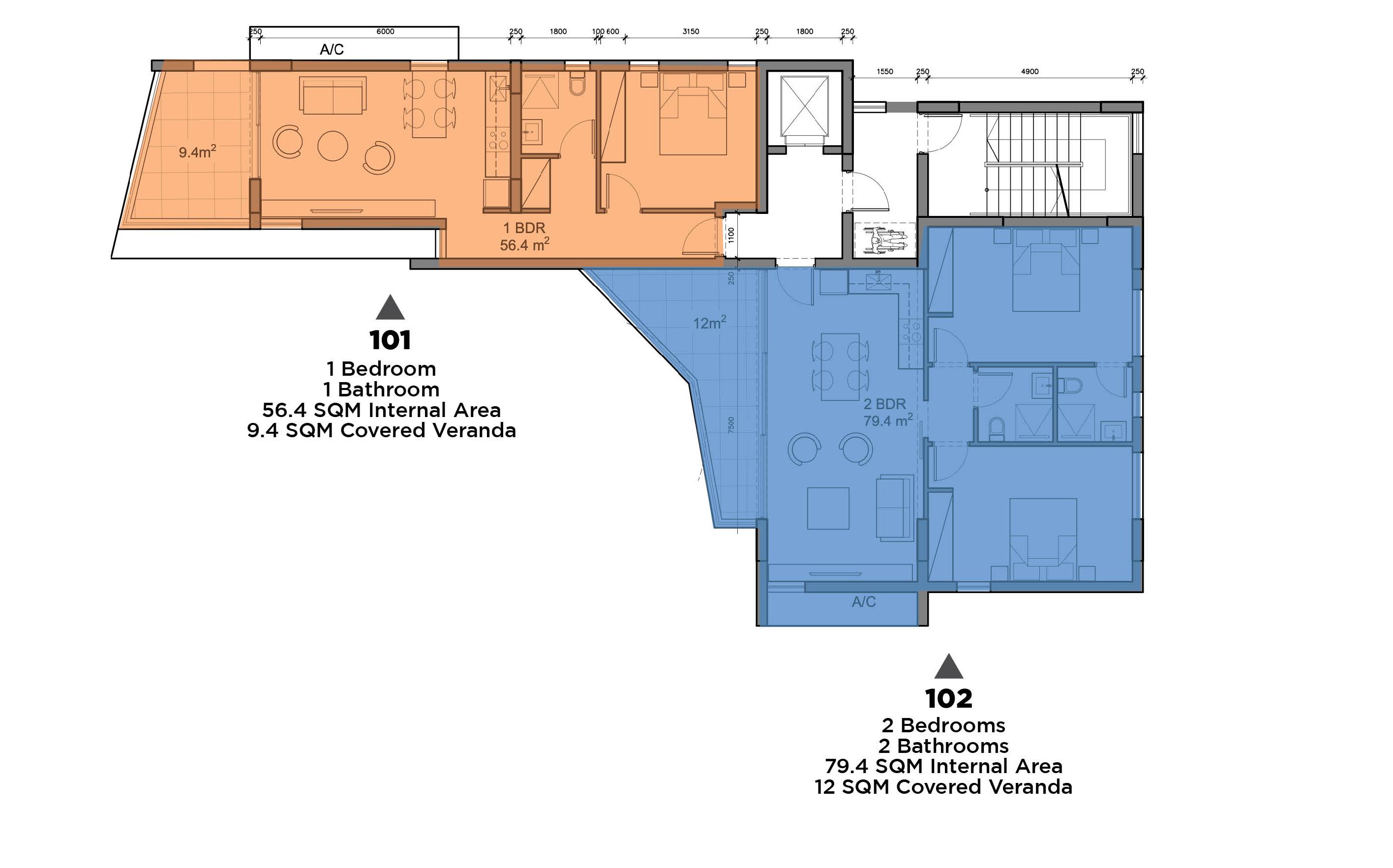
Apartment for sale in a modern complex in the area of Sotiros, Larnaca. The project consists of apartments with 1 and 2 bedrooms. The apartments combine high-end design and the latest trends using high-quality thermal insulation materials, finishes and plumbing. Each apartment in the complex is designed with maximum comfort in mind. The project includes an open-plan living room and kitchen, as well as a spacious veranda. There are convenient storage rooms and parking spaces. The complex is located 200 meters from the American Academy, 4 minutes from Ermou Street and 6 minutes from Finikoudes. It represents an excellent investment opportunity.
Object
№174071
Type:
Apartment
City:
District:
Complex:
Developer:
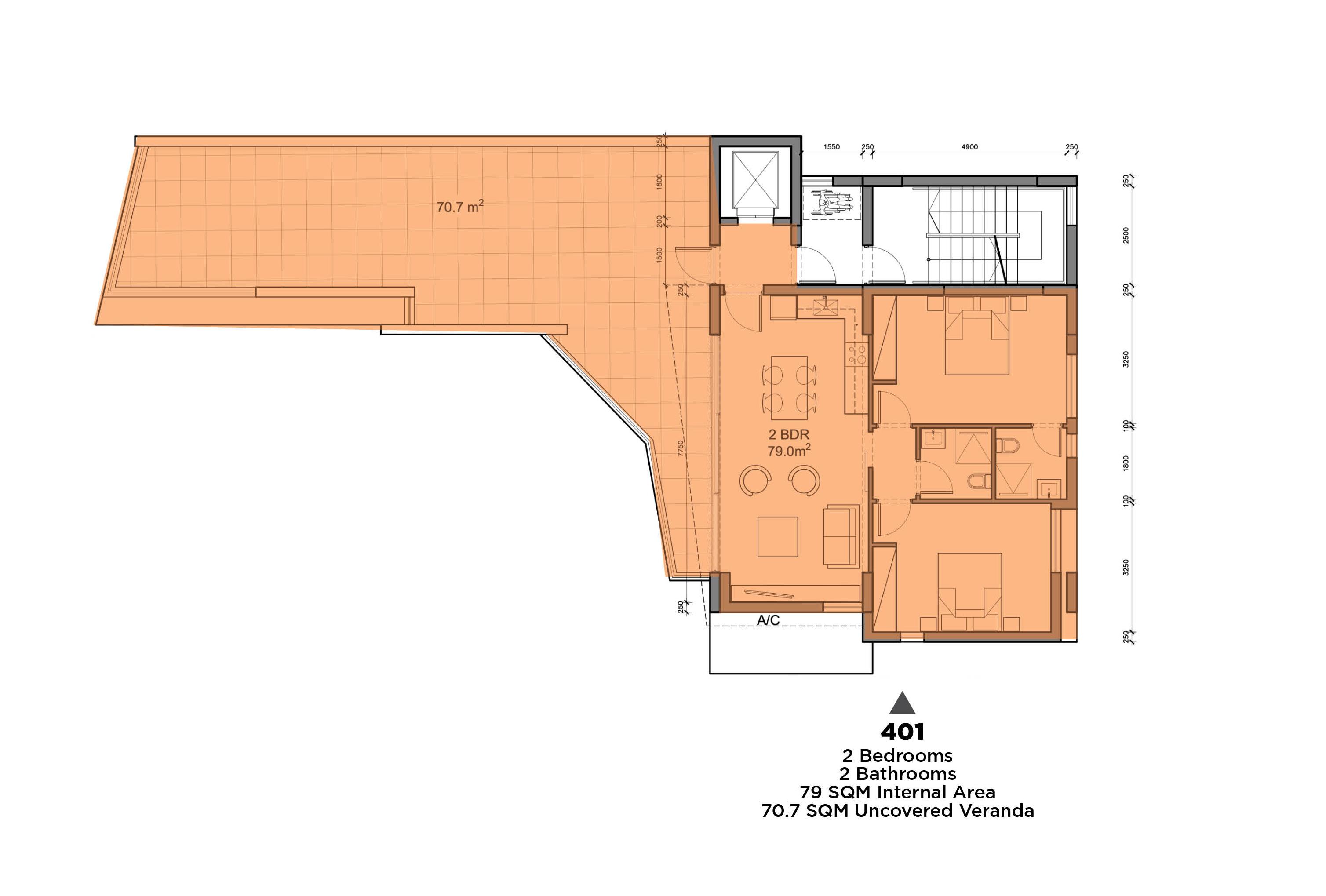
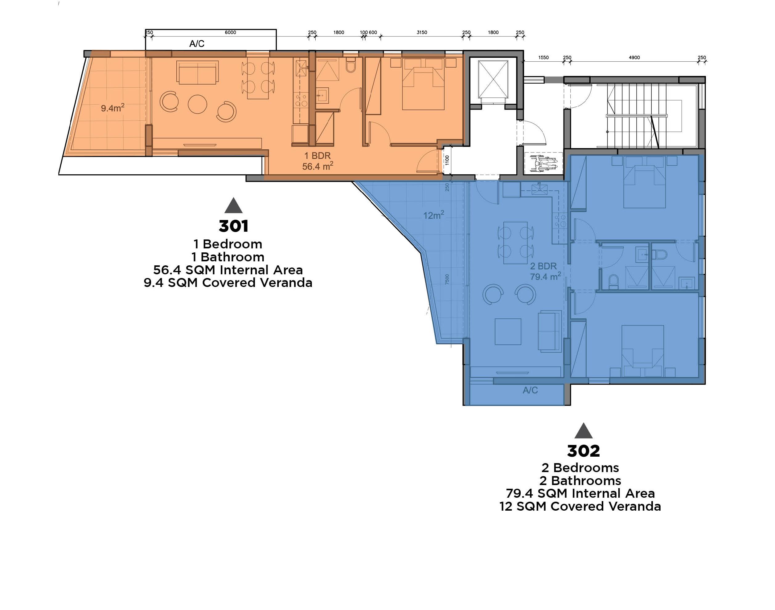
Bedrooms count:
1
Bathrooms:
1
Total area:
66 m²
Living area:
53 m²
Floor:
5
Floors:
6
Construction year:
07/2027
Distance to sea:
1200 м
Energy class:
A
€240,000+ VAT
€3,636 / m²
DOM Real Estate
+357 25 056 478










