
New 2-bedroom apartment in Nicosia / Lakatameia №114770




Additional:
Description:
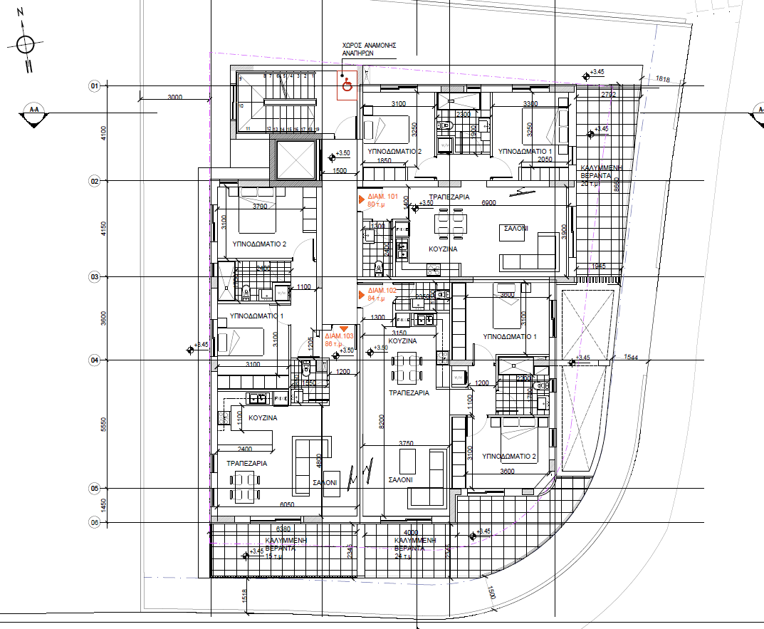
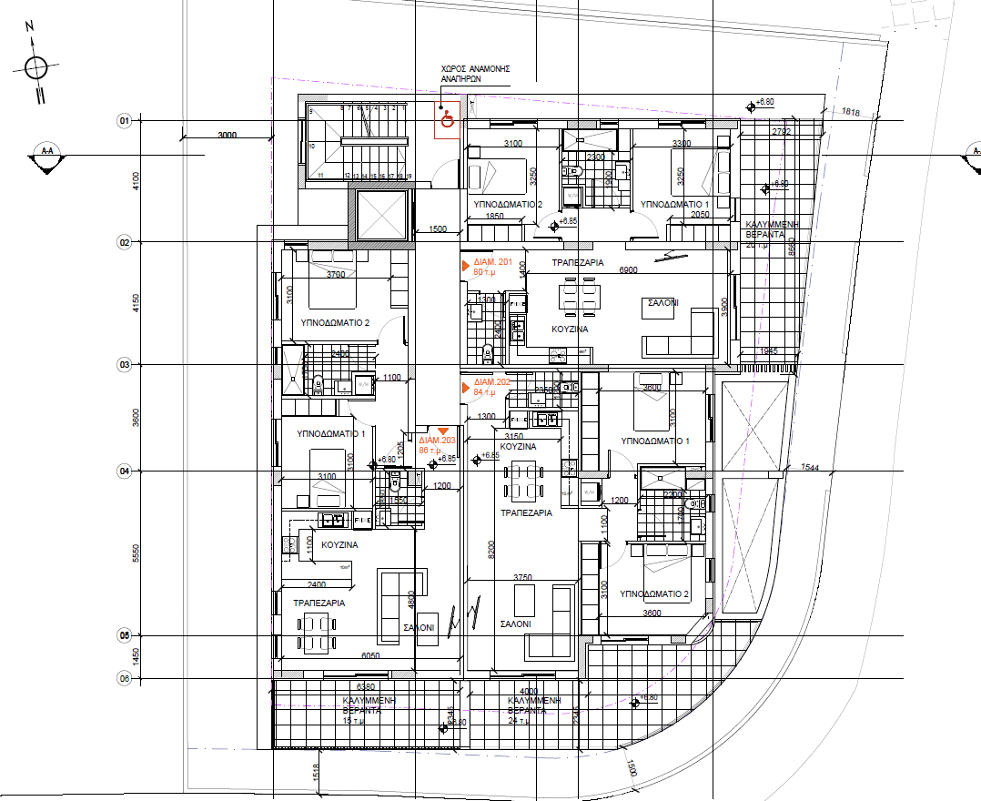
New apartments for sale in Lakatamia, Nicosia. The entire interior of the apartments will be covered with three layers of high-quality paint. In the bathroom areas, the paints will be anti-mold. The kitchen will have a countertop made of techno granite. There is a place for an oven, a gas stove, a deodorizer, a refrigerator and a dishwasher. The closets in the bedrooms have 2 drawers and shelves. Solar water heater. All rooms will have heating and air conditioning. The building is built of reinforced concrete. A photovoltaic system will be installed on the roof of the house. The building is located next to all necessary amenities. A great option for both living and investment.
№114770
Apartment
City:
District:
Complex:
2
2
104 m²
86 m²
1
2
07/2026
A
€2,010 / m²
DOM Real Estate
+357 22 030 670










