
New 3-bedroom apartment in Nicosia / Aglantzia №206399




1
Additional:
Elevator
Pantry
Parking
Description:
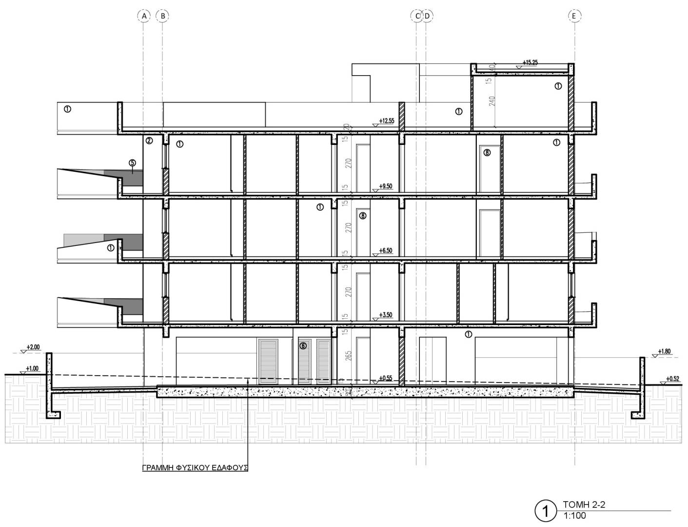
An apartment for sale in a new complex in the area of Aglantzia, Nicosia. The complex is made using high quality materials and offers modern design, functional layouts and a good location. Each apartment in the complex has cozy bedrooms, a spacious open-plan kitchen-living room, bathrooms and verandas. There is also a parking space and a storage room for each apartment. The building has an elevator. The complex is located in the center of the Platy Aglantzia district, in a quiet non-drivable street on a hill, with beautiful views of the city and mountains.
Object
№206399
Type:
Apartment
City:
District:
Complex:
Developer:
Bedrooms count:
3
Bathrooms:
2
Total area:
120 m²
Living area:
100 m²
Floor:
2
Floors:
3
Construction year:
07/2026
Price on request
DOM Real Estate
+357 25 056 478










