
New 2-bedroom apartment in Larnaca / Mackenzie №202206




2
Additional:
Parking
Description:
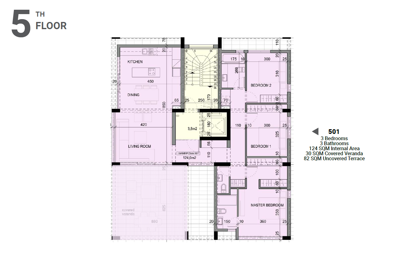
Apartment for sale in a new complex in the Mackenzie area, Larnaca. The complex consists of 5 floors and offers apartments with 2 bedrooms and an apartment on the 5th floor with 3 bedrooms. The complex is made using high-quality materials and offers modern design, functional layouts and a good location. Each apartment in the complex has cozy bedrooms, a spacious open-plan kitchen-living room, bathrooms and verandas. There is also a parking space for each apartment. The complex is located in a popular area with developed infrastructure, close to various amenities, not far from the beach.
Object
№202206
Type:
Apartment
City:
District:
Complex:
Developer:
Bedrooms count:
2
Bathrooms:
2
Total area:
101 m²
Living area:
79 m²
Floor:
4
Floors:
5
Construction year:
07/2026
Distance to sea:
200 м
Energy class:
A
€446,000+ VAT
€4,416 / m²
DOM Real Estate
+357 24 030 083











