
New 2-bedroom apartment in Larnaca / Oroklini №201818




1
Additional:
Elevator
Pantry
Parking
Pool
Gym
Description:
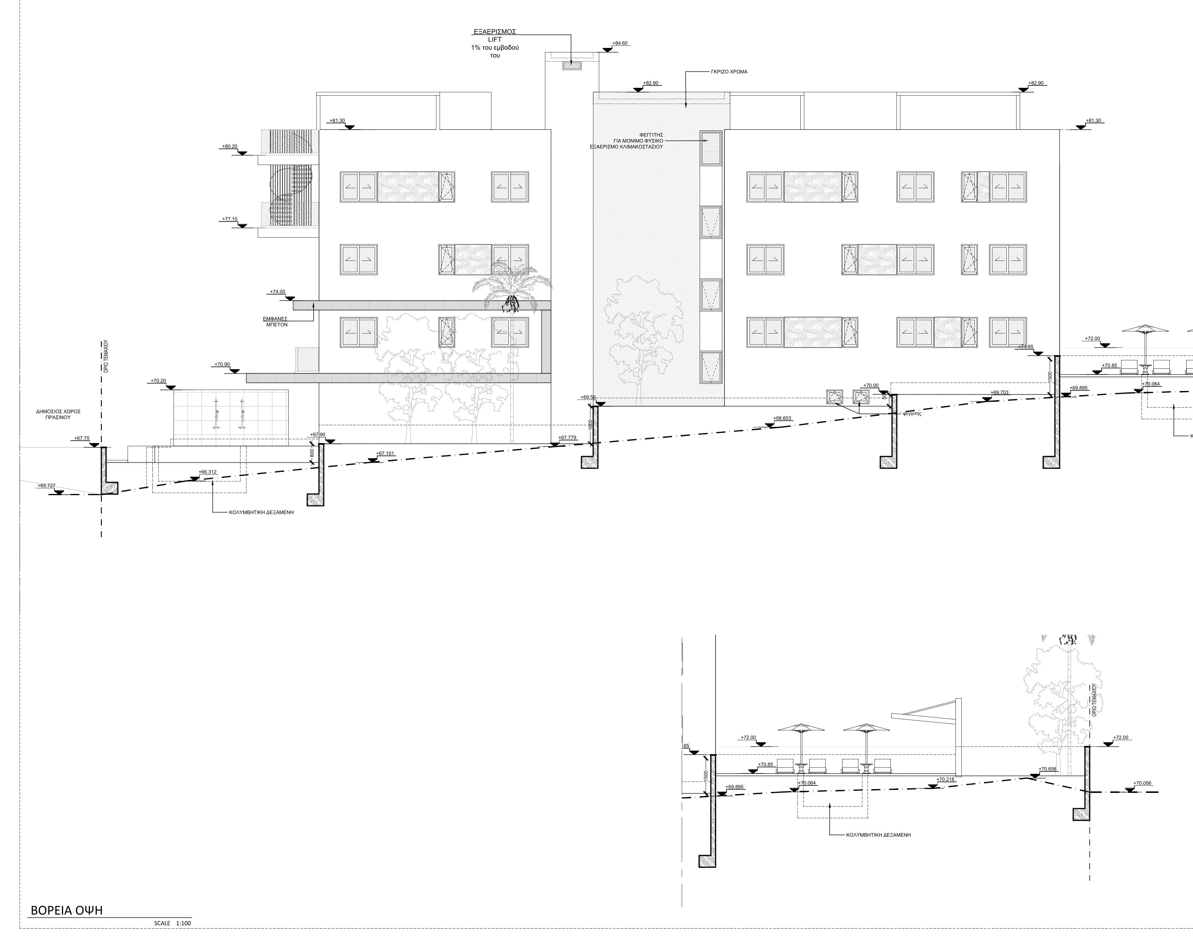
Apartment for sale in a new residential complex in the area of Oroklini, Larnaca. The complex consists of three floors and includes a total of 9 apartments: 4 triple and 5 double. Each apartment has an open-plan kitchen and living room, as well as a spacious veranda. Only high-quality modern materials and plumbing are used in construction and decoration. This energy-efficient complex is rated "A", which significantly reduces utility costs. The project also provides parking and a storage room for each apartment. The complex has a modern gym, a swimming pool and a barbecue area.
Object
№201818
Type:
Apartment
City:
District:
Complex:
Developer:
Bedrooms count:
2
Bathrooms:
2
Total area:
112 m²
Living area:
83 m²
Floor:
2
Floors:
3
Construction year:
07/2027
Distance to sea:
2900 м
Energy class:
A
€235,000+ VAT
€2,098 / m²
DOM Real Estate
+357 24 030 083








