
Land in Nicosia / Kakopetria №178983




4
Additional:
Титул
Description:
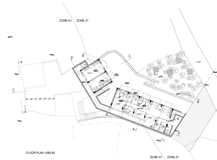
Seven residential plots with a total area of 847 m² are for sale in the Kakopetria area, Nicosia. The project includes complete architectural plans for a boutique hotel with all necessary infrastructure. Building permits are in the final stage of approval. The plots are located in a quiet, green area popular with tourists, making them ideal for agritourism development. An excellent investment opportunity to realize a unique hotel project in one of the most picturesque mountain villages of Cyprus.
Object
№178983
Type:
Land
City:
District:
Complex:
Developer:
Total area:
847 m²
Land area:
847 m²
Distance to sea:
23000 м
Zone:
H1,Z1
Building density:
70
Coverage ratio:
40
Utilities connected:
No
€400,000
€472 / m²
DOM Real Estate
+357 23 030 253


