
Seafront Restaurant on first line in Limassol / Neapolis №195809




2
First line
Additional:
Pantry
Toilet
Parking
Household appliances
Air conditioner
Heating
Furniture
Description:
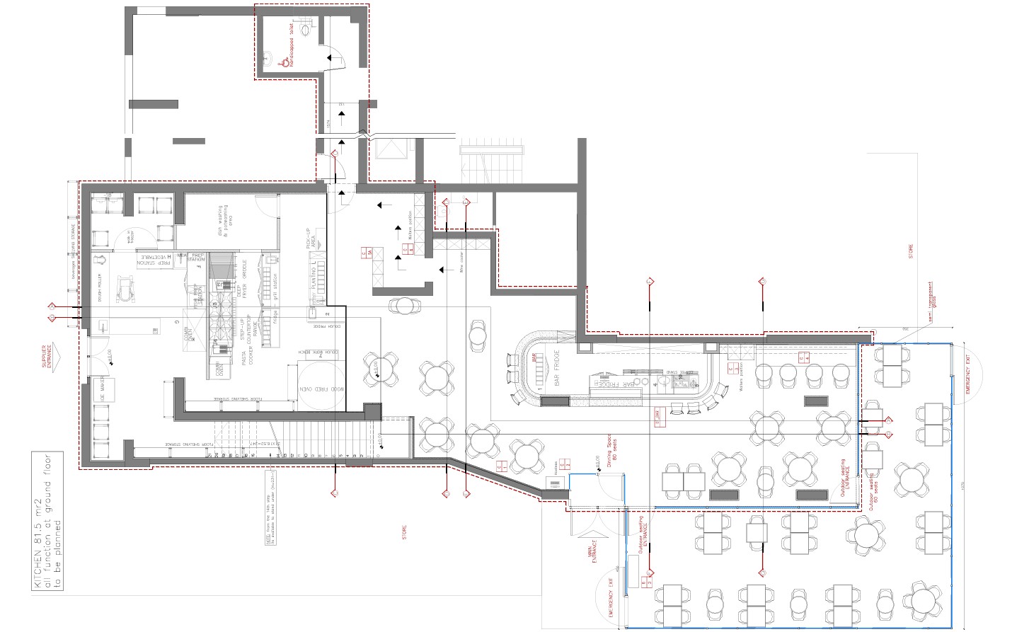
A beachfront restaurant in Limassol. The property features 150 seats indoors and 90 on the sea-view terrace. The restaurant is licensed for food, alcohol, and music. The elegant interior features high ceilings and a spacious bar area, as well as a professionally equipped 81.5 sq. m kitchen. Three-phase electricity and gas are available. Over 100 on-site parking spaces, direct beach access, and stunning views of the Mediterranean Sea are available. For more information, please contact us.
Object
№195809
Type:
Commercial
City:
District:
Complex:
Developer:
Total area:
480 m²
Floors:
1
Construction year:
07/2012
Distance to sea:
20 м
€590,000
€1,229 / m²
DOM Real Estate
+35725654274







