Primus Villas 2

Описание:

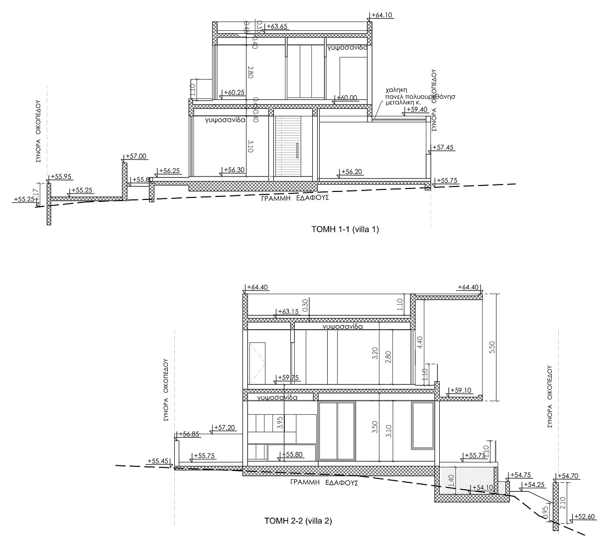
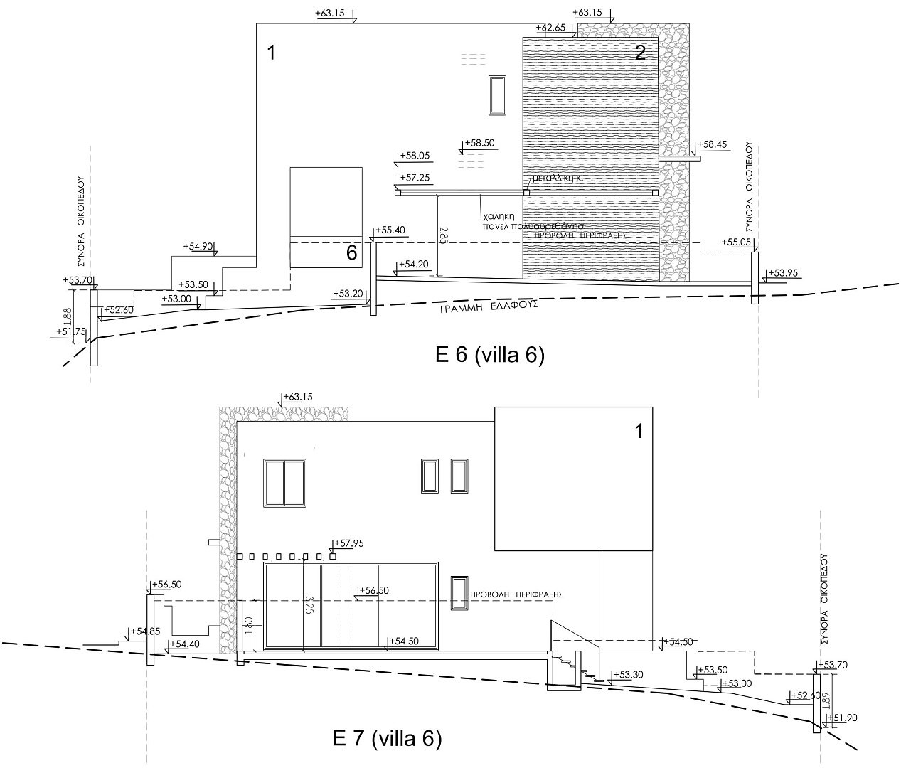
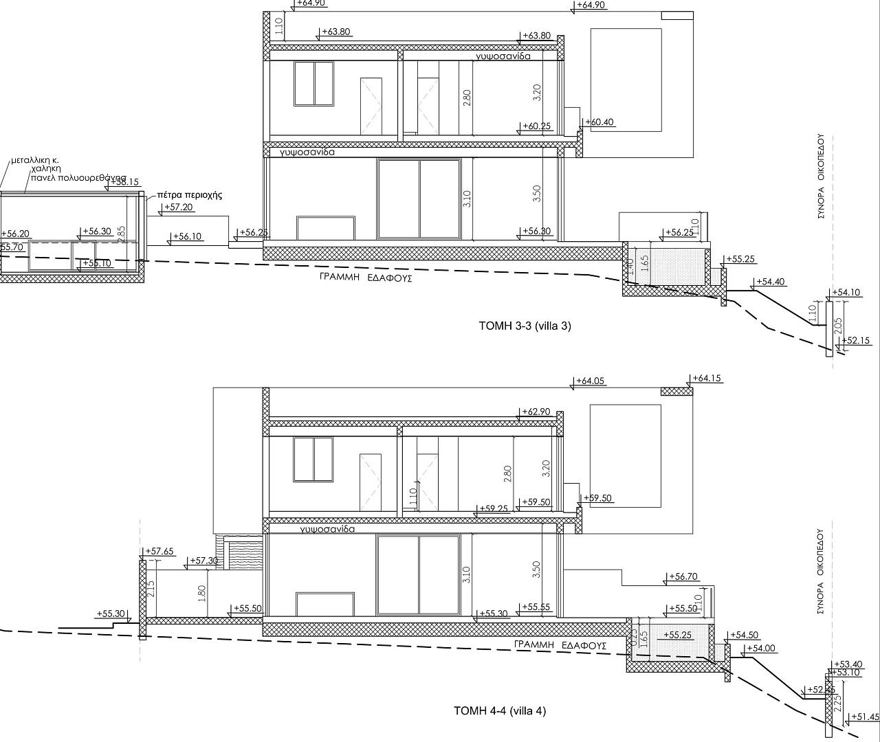
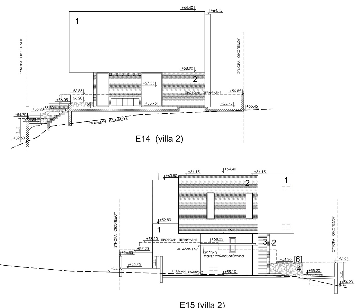
Жилой комплекс вилл в районе Kissonerga, Paphos.В комплексе будет всего 12 вилл. Для строительства используются только современные материалы. На участке есть частный бассейн, полупарковая площадка с металлической перголой, зона барбекю. Установлен тепловой насос и кондиционеры, фотоэлектрические панели 3 кВ на крыше, подвесные потолки. Комплекс расположен в шаговой доступности до пляжа, супермаркета и автобусной остановки.

Читать далее
Город
Пафос
Район
Киссонерга
Обновлен
27.01.2026
Этажность
2
Расстояние до моря, м
500
Класс энергоэффективности
A
Узнать больше:
Niv Tzvi Michover
Объекты
Таблицей
Списком
Добавить комментарий
Оставить комментарий


Компания «Dom Real Estate» Контакты:
Адрес: Limassol, Cyprus,
Телефон:+357 25 212 212, Электронная почта: info@dom.com.cy