Ruby

Описание:

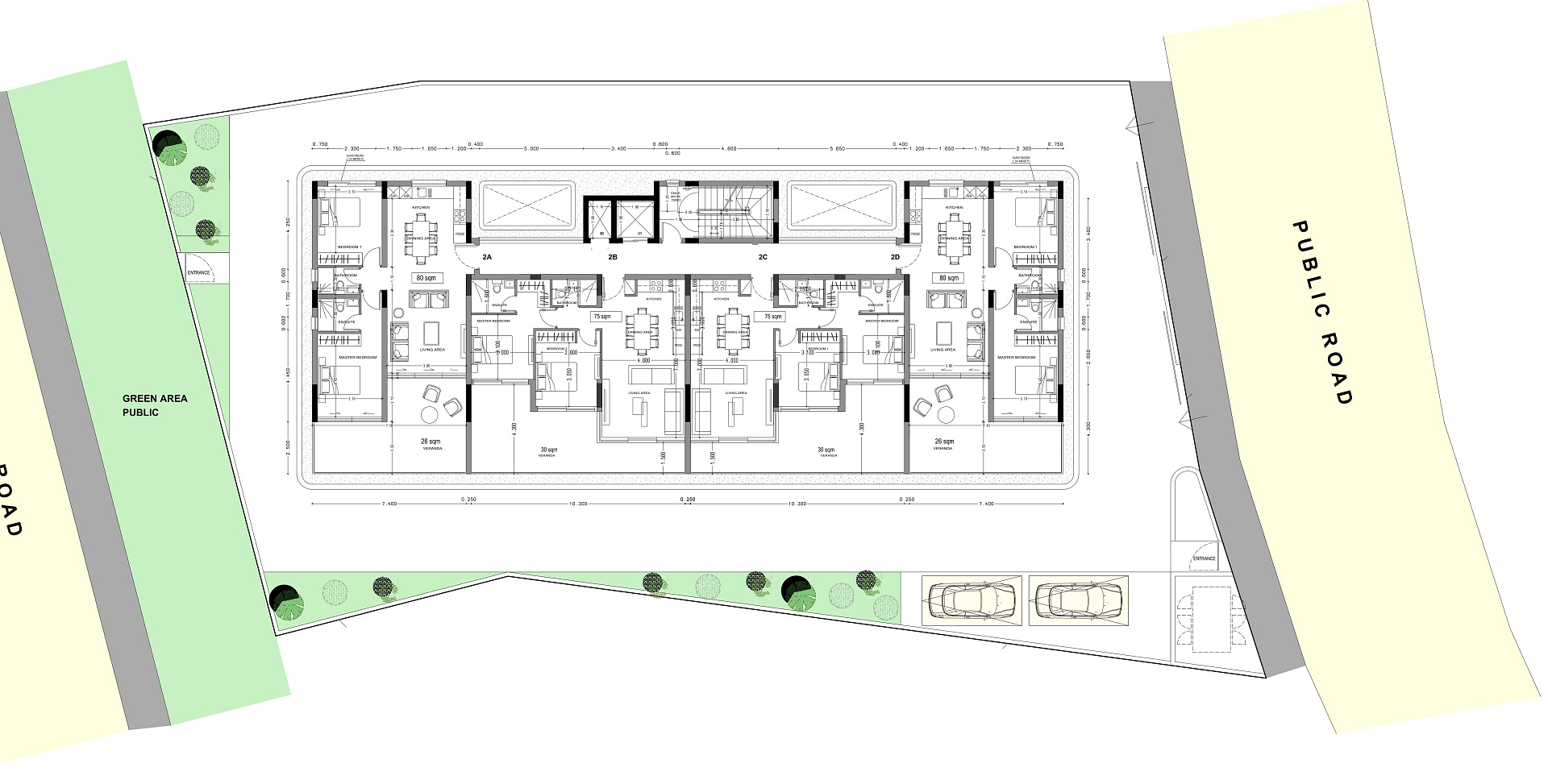
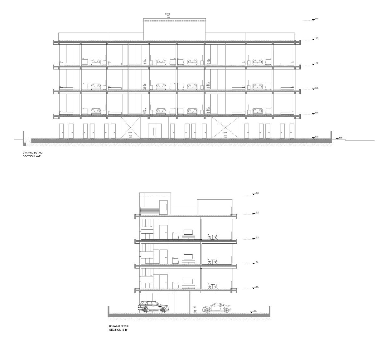
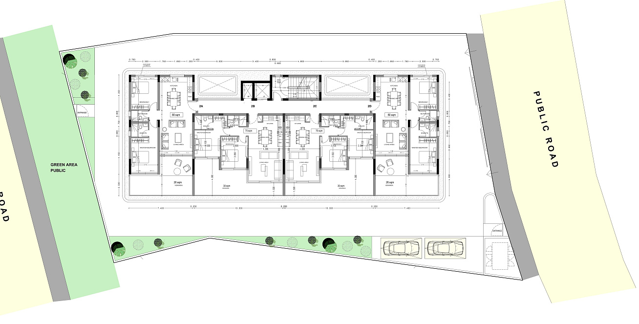
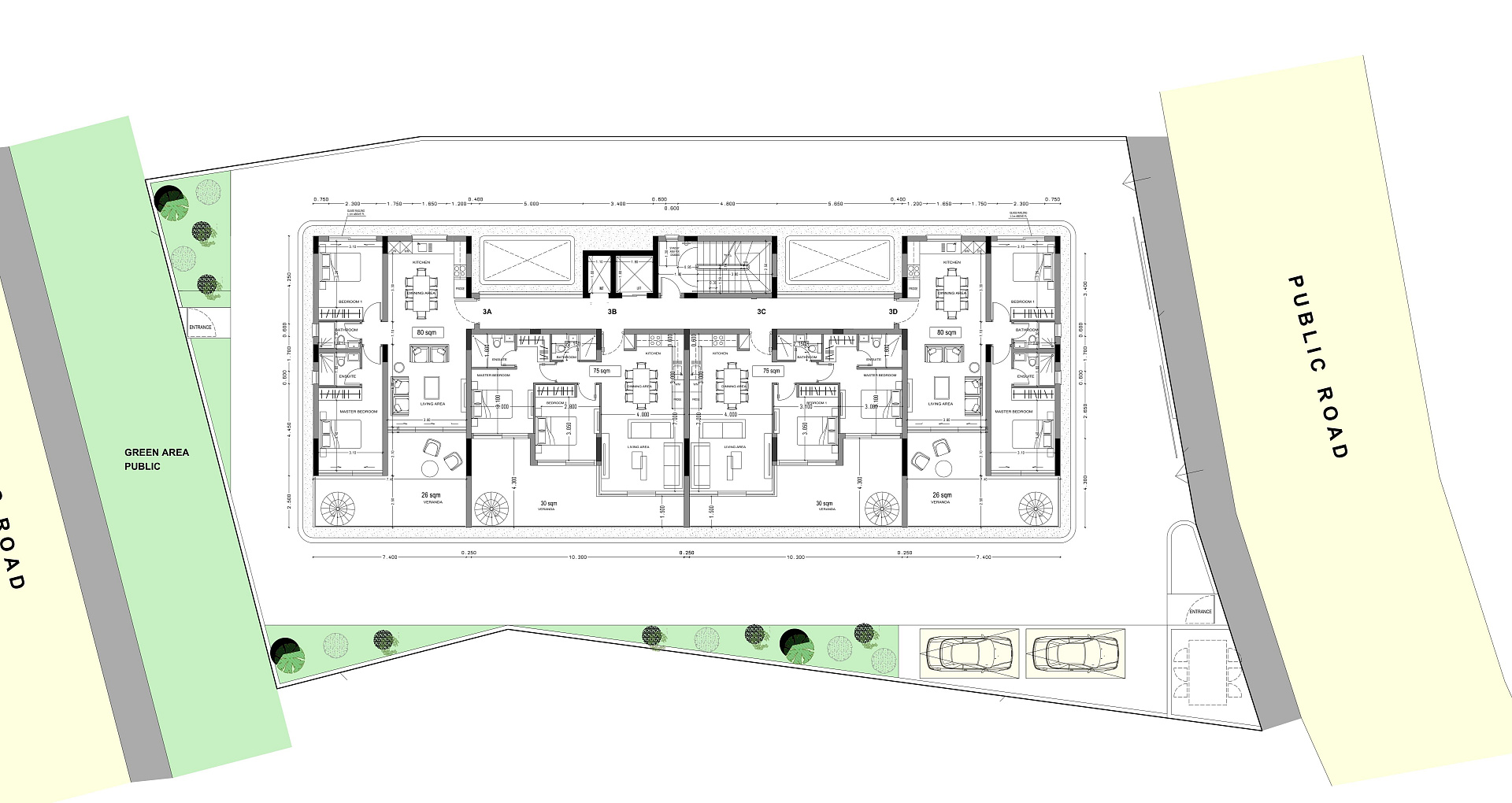
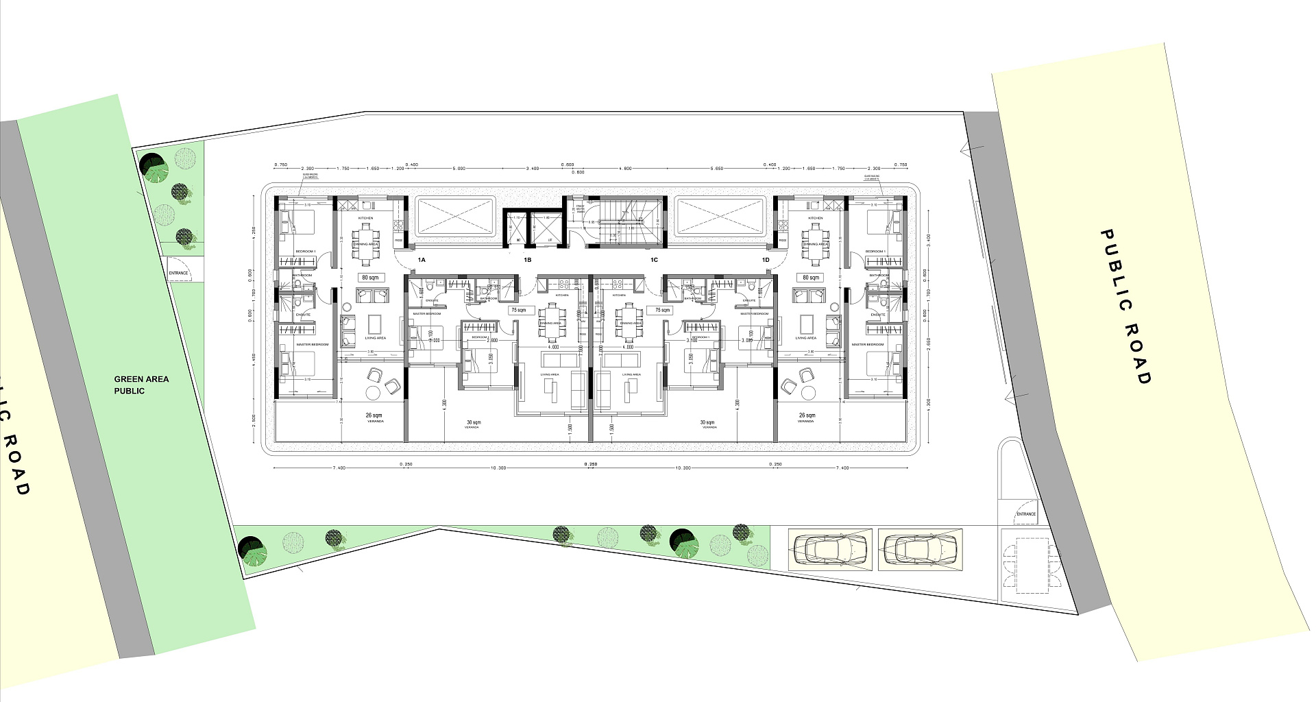
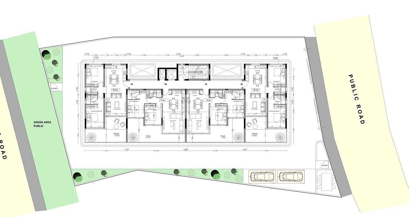
Новый жилой комплекс в районе Agios Athanasios, Limassol — это современный проект, сочетающий элегантную архитектуру, качество и комфорт. Комплекс расположен в спокойном и благоустроенном районе с удобным доступом к центру города и основным автомагистралям. Здание выполнено с использованием современных технологий строительства и энергоэффективных материалов. Просторные квартиры отличаются продуманными планировками, высококачественной отделкой и панорамными видами. В комплексе предусмотрены парковочные места и благоустроенная территория, что делает его идеальным выбором для постоянного проживания или инвестиций.

Читать далее
Город
Лимассол
Обновлен
29.04.2026
Этажность
3
Расстояние до моря, м
3200
Класс энергоэффективности
A
Узнать больше:
Diana Shyshko
Объекты
Таблицей
Списком
Добавить комментарий
Оставить комментарий


Компания «Dom Real Estate» Контакты:
Адрес: Limassol, Cyprus,
Телефон:+357 25 212 212, Электронная почта: info@dom.com.cy