Eclipse Residences

Описание:

Новый жилой комплекс в районе Kolossi, Limassol.

Современный проект выполнен в стиле минимализма и элегантности, с использованием актуальных цветов и качественных материалов. Все квартиры подключены к фотовольтаической системе, а здания обладают классом энергоэффективности А, что обеспечивает низкие эксплуатационные расходы и поддержку экологичного образа жизни.

Комплекс расположен в спокойном и уютном районе Колосси, где сочетаются преимущества пригородной тишины и близость к инфраструктуре Лимассола. В шаговой доступности находятся школы, детские площадки, супермаркеты, кофейни, рестораны и пабы — всё, что нужно для комфортной повседневной жизни.

Удобная транспортная развязка позволяет быстро добраться до трассы, центра города, пляжей Курион и Lady’s Mile, а также до курорта City of Dreams Mediterranean — все локации находятся менее чем в 15 минутах езды.

Этот комплекс — отличное решение для тех, кто ценит современную архитектуру, качество и гармоничное окружение для жизни.

Читать далее
Город
Лимассол
Район
Колосси
Обновлен
29.04.2026
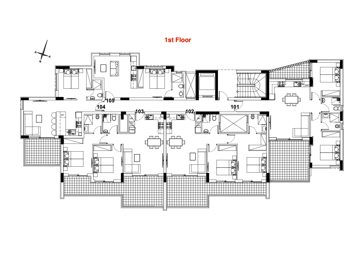
Этажность
2
Количество спален
от 1 до 2
Площадь объектов, м2
от 38 до 100
Расстояние до моря, м
5350
Класс энергоэффективности
A
Стоимость покупки, EUR:
от 155 000 до 243 000
Узнать больше:
Mihail Vidrasco
Объекты
Таблицей
Списком
https://dom.com.cy/upload/resize_cache/uf/fbb/1088_820_2/f561x3k23gdy8wv9mlafieoyeu0svz9a.jpeg
№ 211945
Площадь: 38 м2
Студия
157 000 EUR+VAT
4 132 EUR/м2
https://dom.com.cy/upload/resize_cache/uf/908/1088_820_2/u92zfx9rxxio6pyv0do592o1led5bdcd.JPG
№ 211944
Площадь: 93 м2
Спален: 1
195 000 EUR+VAT
2 097 EUR/м2
https://dom.com.cy/upload/resize_cache/uf/8a1/1088_820_2/mlh0yfpnyx9h2ehm0m3hdmoqk66qm7od.JPG
№ 211943
Площадь: 38 м2
Студия
155 000 EUR+VAT
4 079 EUR/м2
https://dom.com.cy/upload/resize_cache/uf/fbb/1088_820_2/f561x3k23gdy8wv9mlafieoyeu0svz9a.jpeg
№ 211942
Площадь: 59 м2
Спален: 1
175 000 EUR+VAT
2 966 EUR/м2
https://dom.com.cy/upload/resize_cache/uf/aaf/1088_820_2/mvgm0c3jauf3keutf7810pcgboq5tfio.jpeg
№ 211941
Площадь: 97 м2
Спален: 2
239 000 EUR+VAT
2 464 EUR/м2
https://dom.com.cy/upload/resize_cache/uf/8a1/1088_820_2/mlh0yfpnyx9h2ehm0m3hdmoqk66qm7od.JPG
№ 211940
Площадь: 97 м2
Спален: 2
241 000 EUR+VAT
2 485 EUR/м2
https://dom.com.cy/upload/resize_cache/uf/fbb/1088_820_2/f561x3k23gdy8wv9mlafieoyeu0svz9a.jpeg
№ 211939
Площадь: 100 м2
Спален: 2
243 000 EUR+VAT
2 430 EUR/м2
Добавить комментарий
Оставить комментарий


Компания «Dom Real Estate» Контакты:
Адрес: Limassol, Cyprus,
Телефон:+357 25 212 212, Электронная почта: info@dom.com.cy