Perfect Homes 169

Описание:

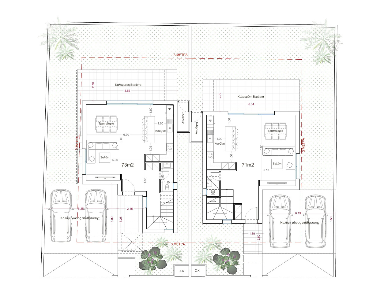
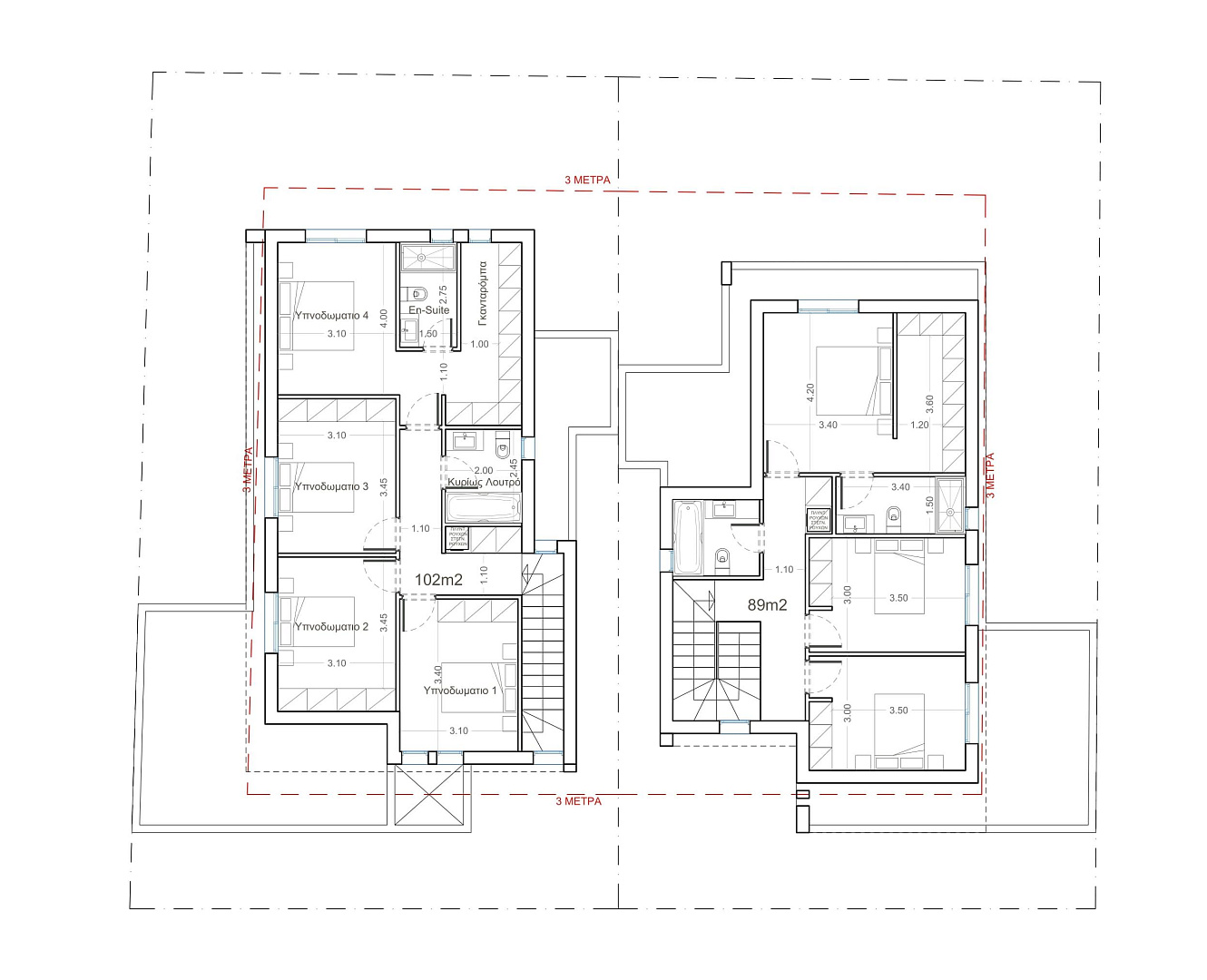
Жилой комплекс из двух современных просторных домом в районе Stelmek, Nicosia. При строительстве и отделке использовались только высококачественные материалы, что гарантирует долговечность и безупречный внешний вид.

Теплоизоляционный фасад, теплоизолированные двери и окна, а также фотоэлектрическая система мощностью 5 кВ обеспечивают высокую энергоэффективность и снижают затраты на коммунальные услуги. Имеется крытая парковка на два автомобиля.

Читать далее
Город
Никосия
Район
Стелмек
Обновлен
18.03.2026
Этажность
2
Количество спален
от 3 до 4
Площадь объектов, м2
от 180 до 220
Класс энергоэффективности
A
Стоимость покупки, EUR:
от 381 000 до 403 000
Узнать больше:
Anna Hrozina
Объекты
Таблицей
Списком
Добавить комментарий
Оставить комментарий


Компания «Dom Real Estate» Контакты:
Адрес: Limassol, Cyprus,
Телефон:+357 25 212 212, Электронная почта: info@dom.com.cy