Panagia 2

Описание:

Новый комплекс домов, расположенный в районе Sopaz, Nicosia, находится в благоустроенной жилой зоне с удобным доступом к широкой городской инфраструктуре. Проект выполнен в современном архитектурном стиле с акцентом на комфорт, функциональность и энергоэффективность, что делает его отличным выбором как для собственного проживания, так и для долгосрочной инвестиции.

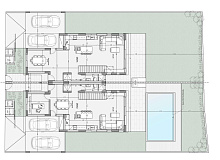
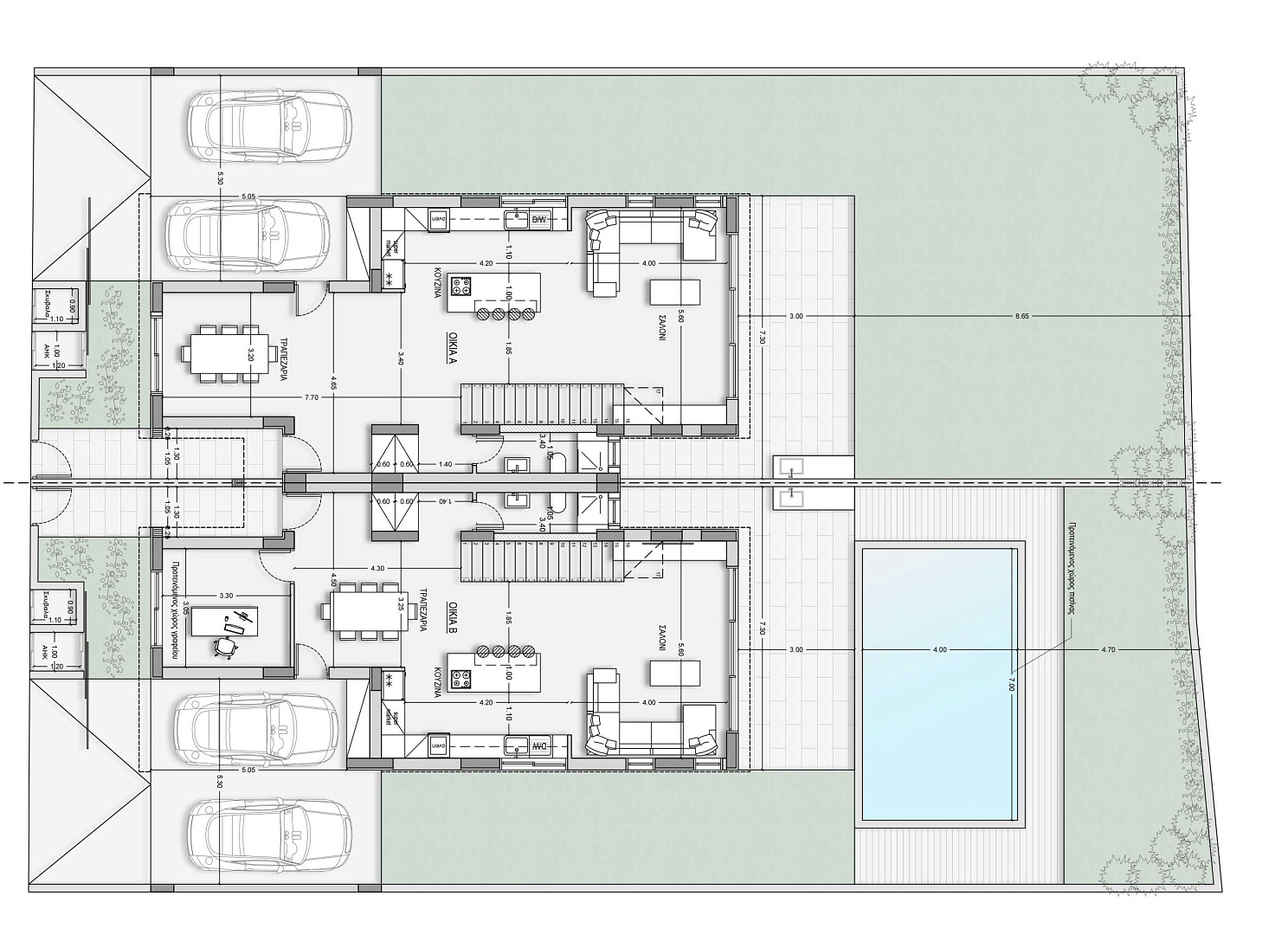
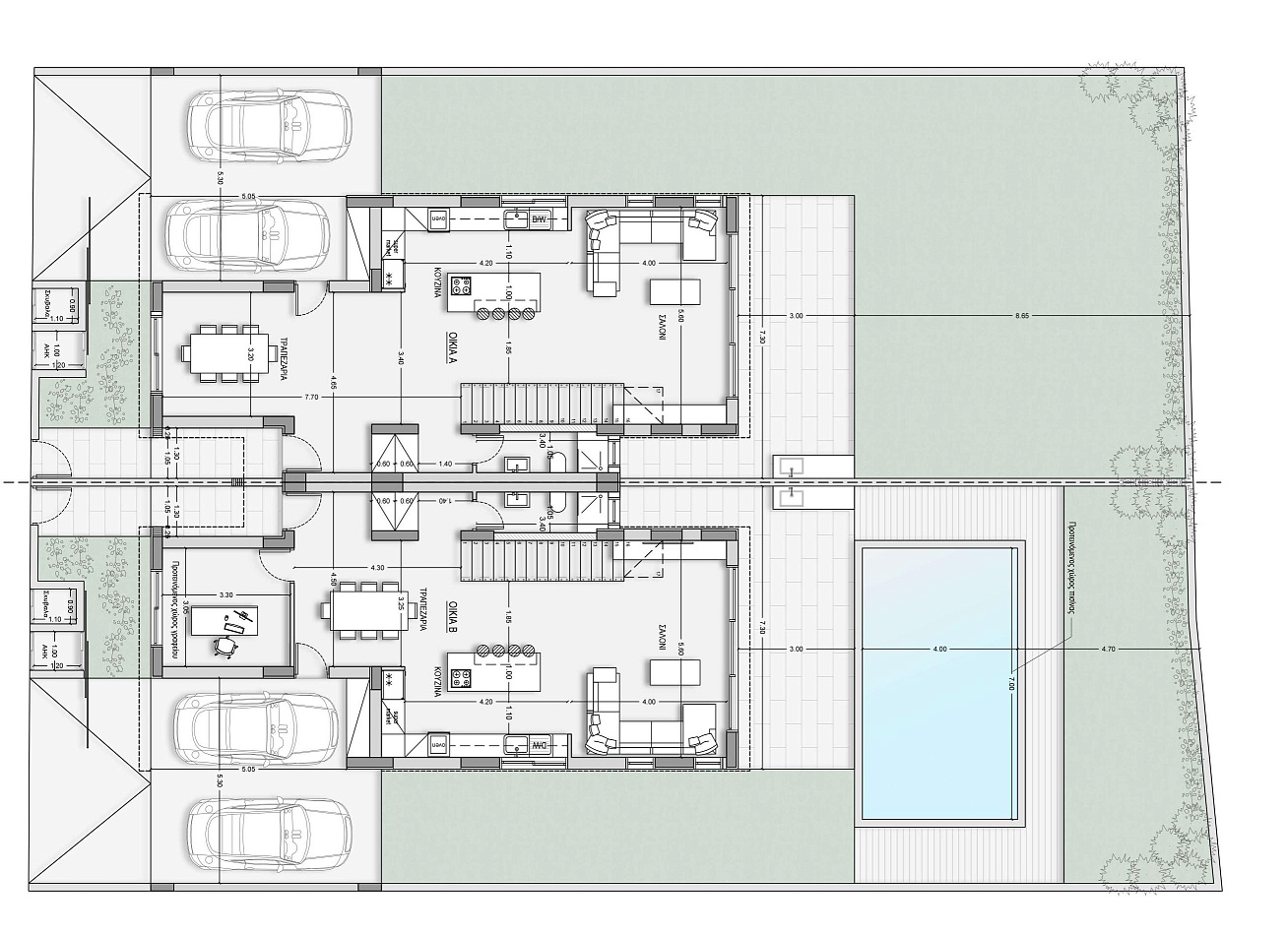
На первом этаже каждого дома расположены просторная гостиная, кухня и столовая, гостевой туалет с душем, а также двойной крытый гараж. По желанию покупателя возможно обустройство отдельного офисного помещения, что особенно удобно для работы из дома. Планировка первого этажа продумана таким образом, чтобы обеспечить максимальный комфорт в повседневной жизни.

На втором этаже находятся три спальни, включая главную спальню с собственной душевой, основная ванная комната, дополнительная кухня и выход на террасу, создающую дополнительное пространство для отдыха. Предусмотрено место для строительства частного бассейна.

Дома оснащены системой кондиционирования воздуха, системой водоснабжения под давлением, а также предусмотрена подготовка для установки камер видеонаблюдения и зарядной станции для электромобиля. На первом этаже предусмотрено отдельное пространство для стиральной и сушильной машин. Внутренний двор с частным садом создаёт уютное и приватное пространство для отдыха и приёма гостей.

Дополнительным преимуществом комплекса является установленная фотоэлектрическая система мощностью 3 кВт, позволяющая существенно снизить расходы на электроэнергию. Комплекс расположен в хорошем районе, рядом с ключевыми объектами инфраструктуры, и имеет сертификат энергоэффективности класса A, подтверждающий высокий уровень качества строительства и энергоэффективности.

Читать далее
Город
Никосия
Район
Каймакли
Обновлен
29.04.2026
Этажность
2
Количество спален
от 3 до 3
Площадь объектов, м2
от 212 до 212
Класс энергоэффективности
A
Стоимость покупки, EUR:
от 415 000 до 415 000
Узнать больше:
Kristina Acheriotou
Объекты
Таблицей
Списком
https://dom.com.cy/upload/resize_cache/uf/ff5/1088_820_2/de1f9m1o25qwjdz60hpy15hjge3xrnda.jpg
№ 201551
Площадь: 212 м2
Спален: 3
Участок: 320 м2
415 000 EUR+VAT
1 958 EUR/м2
Добавить комментарий
Оставить комментарий


Компания «Dom Real Estate» Контакты:
Адрес: Limassol, Cyprus,
Телефон:+357 25 212 212, Электронная почта: info@dom.com.cy