GP Home 36

Описание:

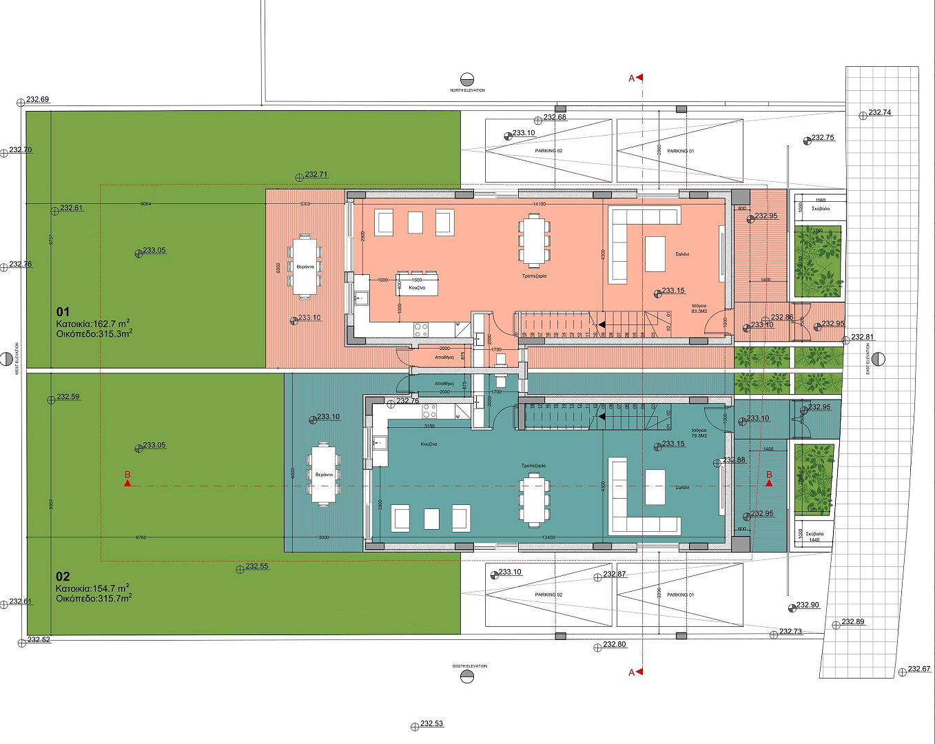
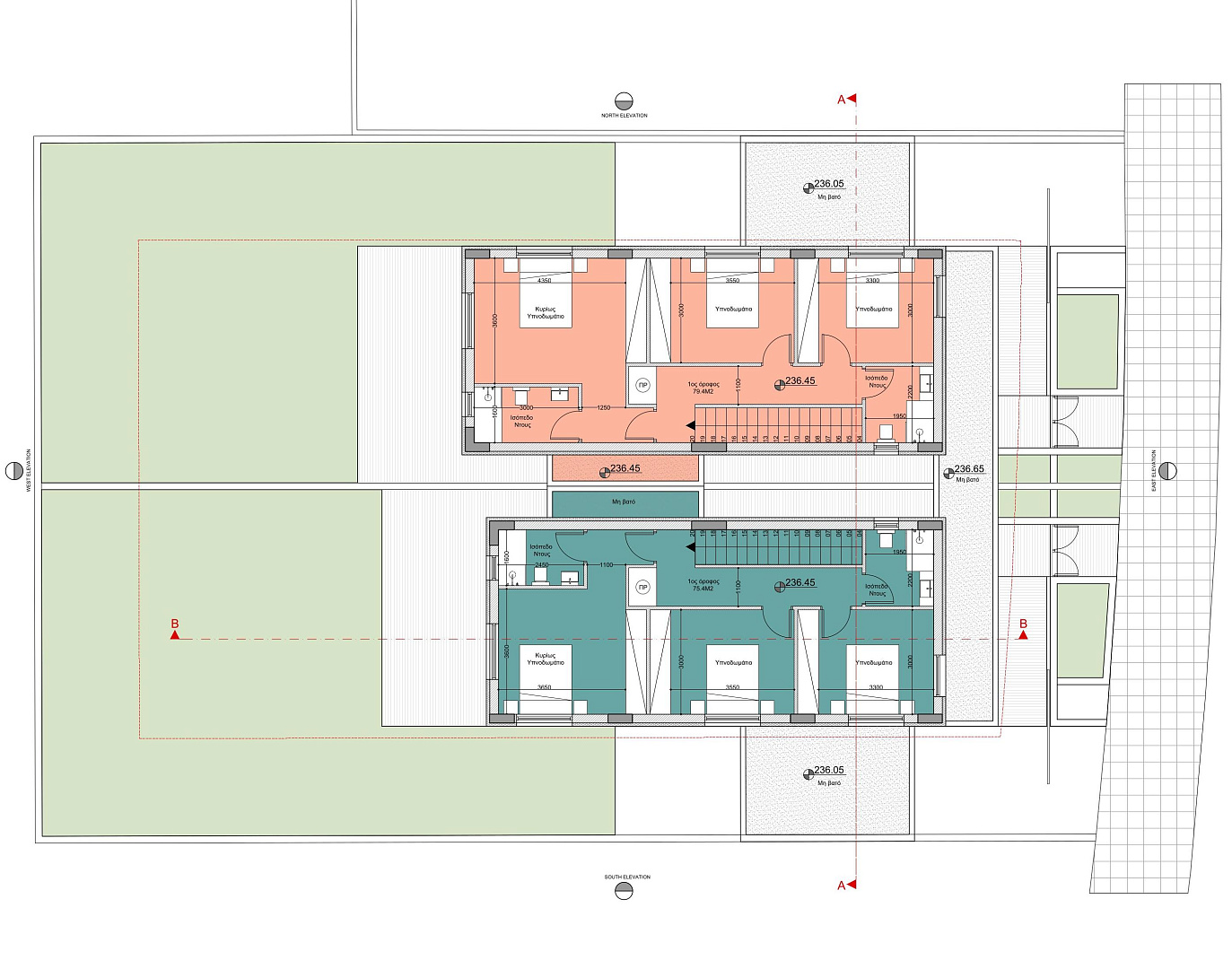
Новый комплекс домов в районе Kokkinotrimithia, Nicosia, расположен в спокойной жилой зоне с удобным доступом к столице и основным транспортным направлениям.

Комплекс разработан с учётом современных стандартов строительства и энергоэффективности. Каждый дом будет оснащён установленной фотоэлектрической системой мощностью 3 кВт, что позволит значительно снизить расходы на электроэнергию. Также предусмотрена подготовка для установки систем кондиционирования воздуха и отопления, обеспечивающая возможность индивидуальной настройки климат-контроля.

В домах предусмотрены крытые парковочные места и кладовые помещения, что делает повседневную жизнь более удобной и организованной. Просторные участки предоставляют возможность обустройства частного сада, зоны отдыха или дополнительного благоустройства по желанию владельца.

Читать далее
Город
Никосия
Район
Коккинотримитья
Обновлен
18.03.2026
Этажность
2
Количество спален
от 3 до 3
Площадь объектов, м2
от 184 до 184
Класс энергоэффективности
A
Стоимость покупки, EUR:
от 265 000 до 265 000
Узнать больше:
Alexandra Kastania
Объекты
Таблицей
Списком
Добавить комментарий
Оставить комментарий


Компания «Dom Real Estate» Контакты:
Адрес: Limassol, Cyprus,
Телефон:+357 25 212 212, Электронная почта: info@dom.com.cy