CSC20

Описание:

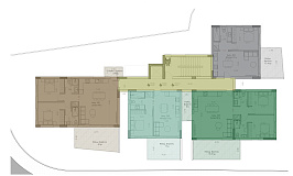
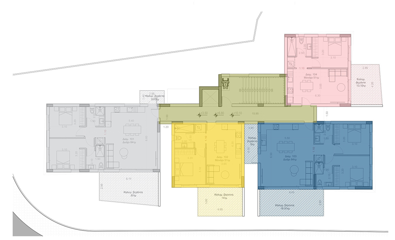
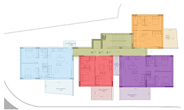
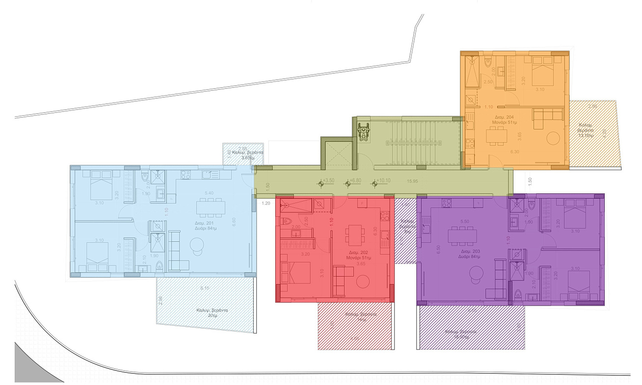
Новый жилой комплекс расположен в районе Lakatamia, Nicosia и является отличным вариантом для комфортного проживания или выгодной инвестиции. Проект представляет собой современное здание, спроектированное с учётом высоких стандартов качества, комфорта и энергоэффективности.

Комплекс включает современные апартаменты с продуманными планировками и высоким уровнем приватности — квартиры не имеют общих стен между собой. В строительстве используются передовые технологии, включая систему термоизоляции и класс энергоэффективности A, что обеспечивает комфортное проживание и сниженные эксплуатационные расходы.

Жилой комплекс оснащён современными инженерными решениями: предусмотрены частные фотоэлектрические системы, кондиционирование (LG / MIDEA), электрические жалюзи в спальнях и видеодомофоны. В интерьере используются подвесные потолки с встроенным освещением в ванных комнатах и качественные отделочные материалы.

Дополнительные преимущества включают подготовку под электрическое отопление, установку полотенцесушителей, зарядку для электромобилей, а также ровные напольные покрытия как внутри, так и снаружи апартаментов.

Благодаря современному оснащению, высокому качеству строительства и удобному расположению, данный жилой комплекс является отличным выбором как для проживания, так и для инвестиции.

Читать далее
Город
Никосия
Район
Лакатамия
Обновлен
29.04.2026
Этажность
3
Количество спален
от 1 до 2
Площадь объектов, м2
от 64 до 108
Класс энергоэффективности
A
Стоимость покупки, EUR:
от 135 000 до 230 000
Узнать больше:
Vitaly Gutsal
Объекты
Таблицей
Списком
https://dom.com.cy/upload/resize_cache/uf/dc0/1088_820_2/l92guoxnvvn4r2d2fzmuw732azffvea3.jpg
№ 212856
Площадь: 64 м2
Спален: 1
150 000 EUR+VAT
2 344 EUR/м2
https://dom.com.cy/upload/resize_cache/uf/b88/1088_820_2/z16uiclqjd4kz54gxu8v04xo618nk0ns.jpeg
№ 212855
Площадь: 65 м2
Спален: 1
150 000 EUR+VAT
2 308 EUR/м2
https://dom.com.cy/upload/resize_cache/iblock/e8c/1088_820_2/bf9j63u8hojznb9fd91lcnx3zqba9mi6.jpg
№ 212854
Площадь: 108 м2
Спален: 2
230 000 EUR+VAT
2 130 EUR/м2
https://dom.com.cy/upload/resize_cache/iblock/76a/1088_820_2/3bpdcksu11fownpvk6p8j07nrjbvpmx5.jpg
№ 212853
Площадь: 108 м2
Спален: 2
230 000 EUR+VAT
2 130 EUR/м2
https://dom.com.cy/upload/resize_cache/uf/bc3/1088_820_2/uxc756dglwwf91gch01mc5uhko36w5v5.jpeg
№ 212852
Площадь: 64 м2
Спален: 1
140 000 EUR+VAT
2 188 EUR/м2
https://dom.com.cy/upload/resize_cache/iblock/032/1088_820_2/li8gmk30ccwim7ykzxq3c4egftdwz97x.jpg
№ 212851
Площадь: 108 м2
Спален: 2
220 000 EUR+VAT
2 037 EUR/м2
https://dom.com.cy/upload/resize_cache/uf/b88/1088_820_2/z16uiclqjd4kz54gxu8v04xo618nk0ns.jpeg
№ 212850
Площадь: 65 м2
Спален: 1
140 000 EUR+VAT
2 154 EUR/м2
https://dom.com.cy/upload/resize_cache/uf/dc0/1088_820_2/l92guoxnvvn4r2d2fzmuw732azffvea3.jpg
№ 212849
Площадь: 64 м2
Спален: 1
135 000 EUR+VAT
2 109 EUR/м2
https://dom.com.cy/upload/resize_cache/iblock/032/1088_820_2/li8gmk30ccwim7ykzxq3c4egftdwz97x.jpg
№ 212847
Площадь: 108 м2
Спален: 2
220 000 EUR+VAT
2 037 EUR/м2
https://dom.com.cy/upload/resize_cache/uf/81d/1088_820_2/iyx9t58plfojqcgrz0k4gpswypls0oeh.jpg
№ 212846
Площадь: 108 м2
Спален: 2
215 000 EUR+VAT
1 991 EUR/м2
https://dom.com.cy/upload/resize_cache/uf/901/1088_820_2/mb06rz4d0o39unxx3dotpn993v1g3umh.jpg
№ 212845
Площадь: 65 м2
Спален: 1
135 000 EUR+VAT
2 077 EUR/м2
https://dom.com.cy/upload/resize_cache/uf/b88/1088_820_2/z16uiclqjd4kz54gxu8v04xo618nk0ns.jpeg
№ 212844
Площадь: 108 м2
Спален: 2
215 000 EUR+VAT
1 991 EUR/м2
Добавить комментарий
Оставить комментарий


Компания «Dom Real Estate» Контакты:
Адрес: Limassol, Cyprus,
Телефон:+357 25 212 212, Электронная почта: info@dom.com.cy