CSC17

Описание:

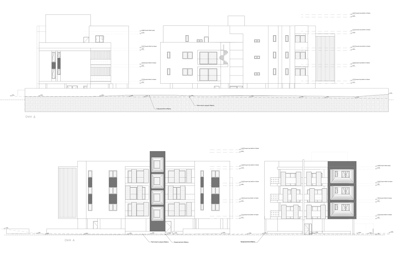
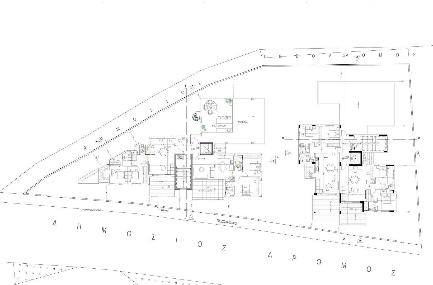
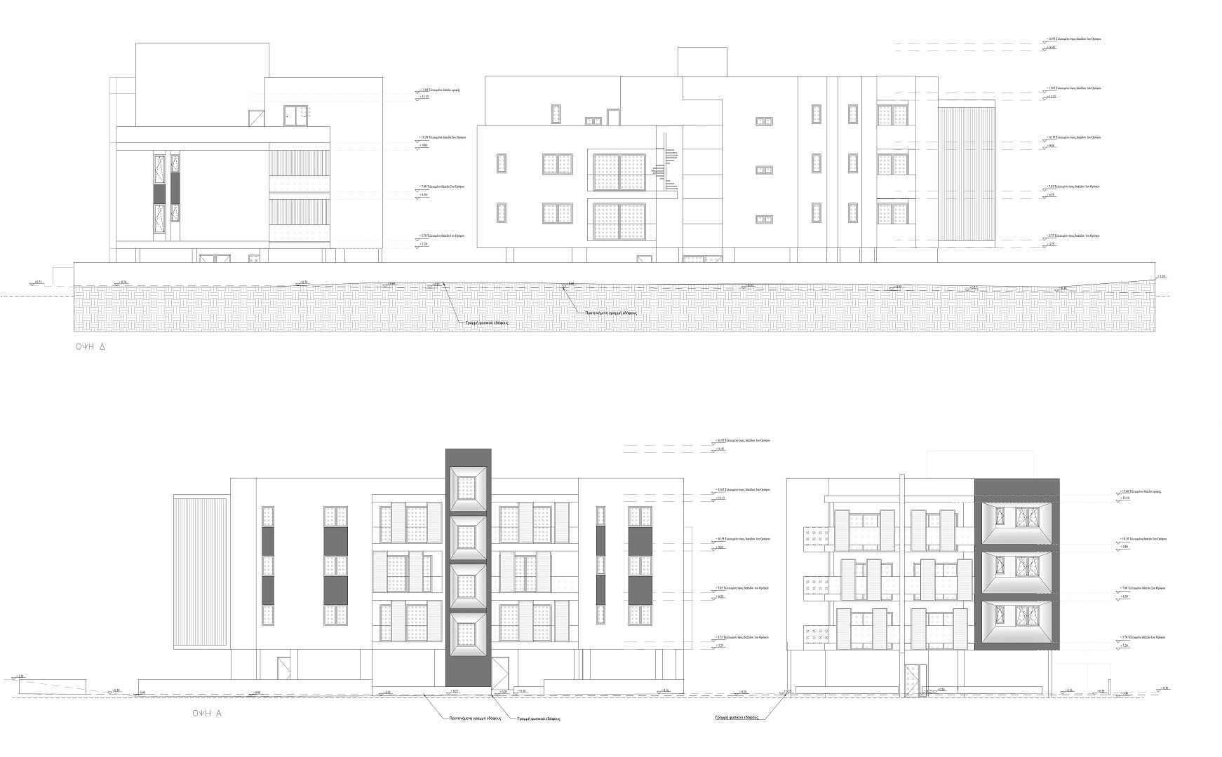
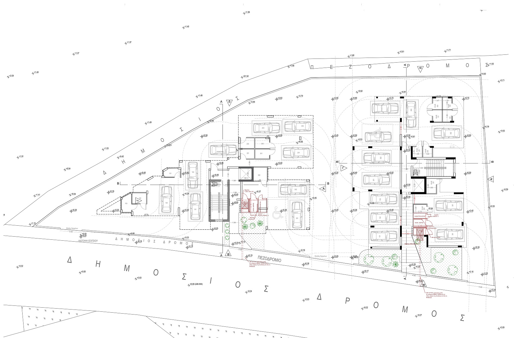
Новый жилой комплекс, расположенный в районе Lakatamia, Nicosia, находится в спокойной и благоустроенной жилой зоне с удобным доступом к городской инфраструктуре. Проект разработан с акцентом на комфорт, функциональность и энергоэффективность, что делает его привлекательным как для собственного проживания, так и для инвестиционных целей.

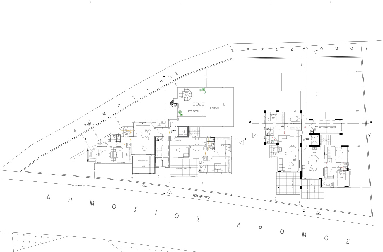
Комплекс включает современные квартиры с продуманными планировками и высоким уровнем технического оснащения. В каждой квартире предусмотрена установка частной фотоэлектрической системы мощностью 2 кВт, современной системы кондиционирования воздуха с кондиционерами марки LG или MIDEA белого цвета, а также электрические жалюзи на всех окнах спален. В ванных комнатах предусмотрены подвесные потолки с тремя точечными светильниками и подготовка для установки электрических полотенцесушителей и душевых кабин.

Дополнительным преимуществом является установка двух раздвижных штор на главных террасах квартир, расположенных на фасаде здания. В комплексе предусмотрена возможность зарядки электромобилей, а также подготовка для установки электроприборов во всех зонах квартир. Для дополнительного комфорта жильцов предусмотрены розетки и телевизионные точки на внешних пространствах, установка видеодомофона и теплоизоляционная фасадная система.

Здание имеет сертификат энергоэффективности класса A, что гарантирует низкое энергопотребление и высокий уровень комфорта проживания. Данный жилой комплекс представляет собой современное и практичное решение на рынке недвижимости Никосии.

Читать далее
Город
Никосия
Район
Лакатамия
Обновлен
29.04.2026
Этажность
3
Количество спален
от 2 до 2
Площадь объектов, м2
от 106 до 113
Класс энергоэффективности
A
Стоимость покупки, EUR:
от 210 000 до 250 000
Узнать больше:
Anna Hrozina
Объекты
Таблицей
Списком
https://dom.com.cy/upload/resize_cache/iblock/316/1088_820_2/n454dui5obrm88tbsnq21kuiezhmzma1.jpeg
№ 211771
Площадь: 113 м2
Спален: 2
250 000 EUR+VAT
2 212 EUR/м2
https://dom.com.cy/upload/resize_cache/uf/713/1088_820_2/8whtbi0iigvupbq8qs208sxpjg9n8y24.jpeg
№ 211770
Площадь: 107 м2
Спален: 2
250 000 EUR+VAT
2 336 EUR/м2
https://dom.com.cy/upload/resize_cache/iblock/4c0/1088_820_2/9sigzptf9cltqdx5lyxq0rqfdjx1i8t0.jpeg
№ 211769
Площадь: 106 м2
Спален: 2
215 000 EUR+VAT
2 028 EUR/м2
https://dom.com.cy/upload/resize_cache/uf/6d1/1088_820_2/1q1gz76zpqv2giwc95jkcoth77s4r9q2.jpeg
№ 211768
Площадь: 113 м2
Спален: 2
220 000 EUR+VAT
1 947 EUR/м2
https://dom.com.cy/upload/resize_cache/uf/515/1088_820_2/15zekdpztzzanc3iot6lhjf6lti0yr0n.jpeg
№ 211767
Площадь: 107 м2
Спален: 2
220 000 EUR+VAT
2 056 EUR/м2
https://dom.com.cy/upload/resize_cache/iblock/4c0/1088_820_2/9sigzptf9cltqdx5lyxq0rqfdjx1i8t0.jpeg
№ 211766
Площадь: 106 м2
Спален: 2
210 000 EUR+VAT
1 981 EUR/м2
https://dom.com.cy/upload/resize_cache/uf/6a9/1088_820_2/t5exlzbrlra8qow934peyhx5ew5py4wj.jpeg
№ 211765
Площадь: 113 м2
Спален: 2
215 000 EUR+VAT
1 903 EUR/м2
https://dom.com.cy/upload/resize_cache/uf/491/1088_820_2/p3n3amw0y1g0gevvg71e3yyxqn563f9m.jpeg
№ 211764
Площадь: 107 м2
Спален: 2
215 000 EUR+VAT
2 009 EUR/м2
Добавить комментарий
Оставить комментарий


Компания «Dom Real Estate» Контакты:
Адрес: Limassol, Cyprus,
Телефон:+357 25 212 212, Электронная почта: info@dom.com.cy