Magnolia

Описание:

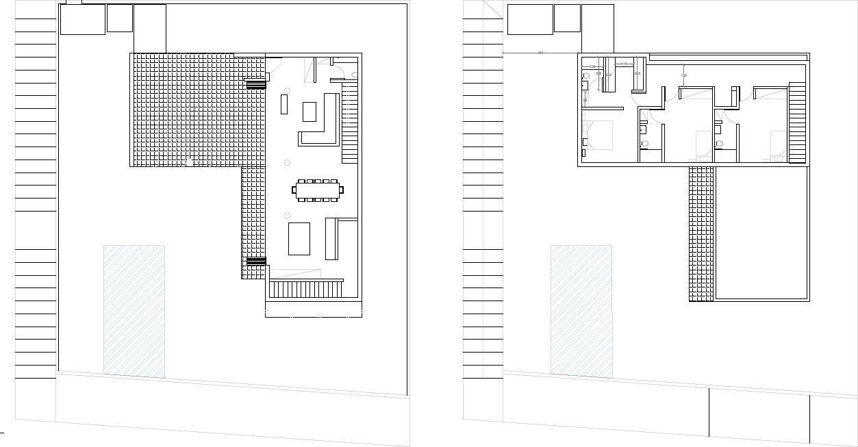
Новый жилой комплекс в районе French Ambassador's Area, Strovolos, Nicosia. Резиденция имеет класс энергоэффективности A, что позволит экономить на коммунальных платежах. Установлена фотоэлектрическая система мощностью 5 кВт. Предусмотрено подключение к кондиционерам (настенные блоки) и системе теплых полов. Дом отличается высококачественной отделкой, выполненной с использованием премиальных материалов. Расположение в районе French Ambassador's Area гарантирует тишину, безопасность и близость ко всей городской инфраструктуре.

Читать далее
Город
Никосия
Район
Строволос
Обновлен
29.04.2026
Этажность
2
Количество спален
от 3 до 3
Площадь объектов, м2
от 250 до 250
Класс энергоэффективности
A
Стоимость покупки, EUR:
от 820 000 до 820 000
Узнать больше:
Alexandra Kastania
Объекты
Таблицей
Списком
https://dom.com.cy/upload/resize_cache/uf/480/1088_820_2/vzoqmx8hlk86vvoyjro1vst1htlpb6p7.jpg
№ 191023
Площадь: 250 м2
Спален: 3
Участок: 530 м2
820 000 EUR+VAT
3 280 EUR/м2
Добавить комментарий
Оставить комментарий


Компания «Dom Real Estate» Контакты:
Адрес: Limassol, Cyprus,
Телефон:+357 25 212 212, Электронная почта: info@dom.com.cy