Livadia 342

Описание:

Новый жилой комплекс в районе Livadia, Larnaca представляет собой современный проект высокого класса, состоящий из небольшого числа эксклюзивных резиденций, что создаёт атмосферу приватности, уюта и комфортного проживания. Район Ливадия отличается удачным расположением — всего несколько минут до моря, рядом школы, магазины и основные городские маршруты, что делает локацию одновременно спокойной и удобной для жизни. Архитектурная концепция комплекса предусматривает большие панорамные окна, просторные веранды и эстетичное сочетание современных материалов, формируя стильный и гармоничный внешний облик. Внутренние пространства тщательно продуманы: светлые помещения, функциональные планировки, современные кухни и элегантные ванные комнаты создают комфортную и сбалансированную жилую среду.

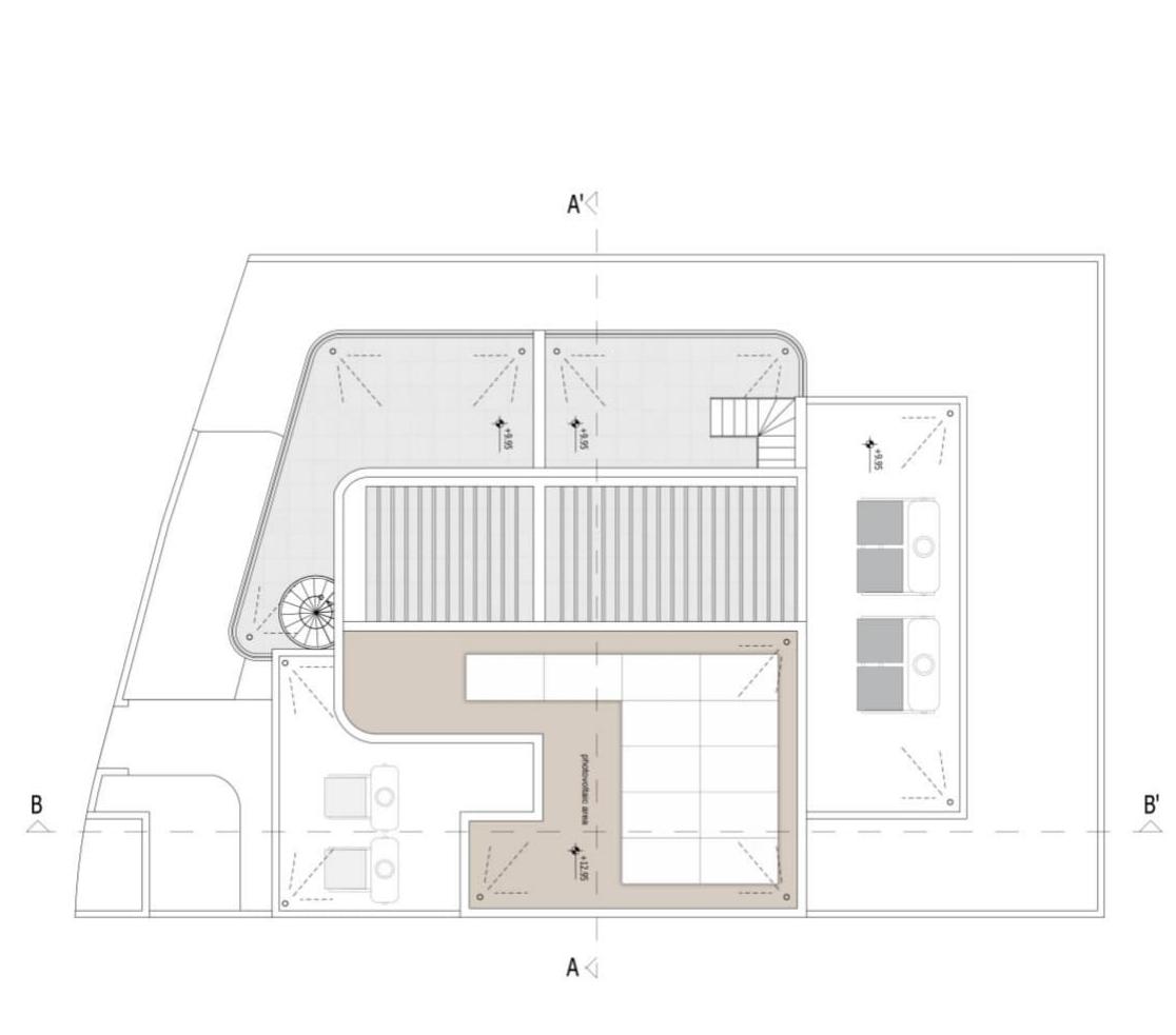
Строительство выполняется по высоким стандартам качества: энергоэффективность класса А, надёжная термо- и гидроизоляция, солнечные панели, система водоснабжения pipe-in-pipe, выводы под кондиционирование, видеодомофон и оптоволоконная связь. Квартиры укомплектованы современными кухнями, встроенными шкафами, а также включают крытое парковочное место и кладовую, что значительно повышает удобство повседневной жизни.

Читать далее
Город
Ларнака
Район
Ливадия
Обновлен
29.04.2026
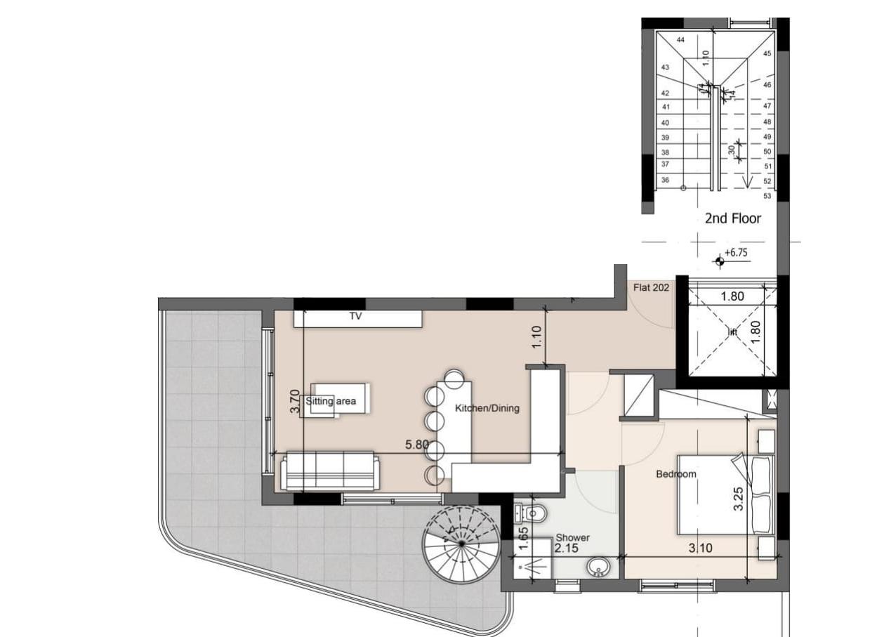
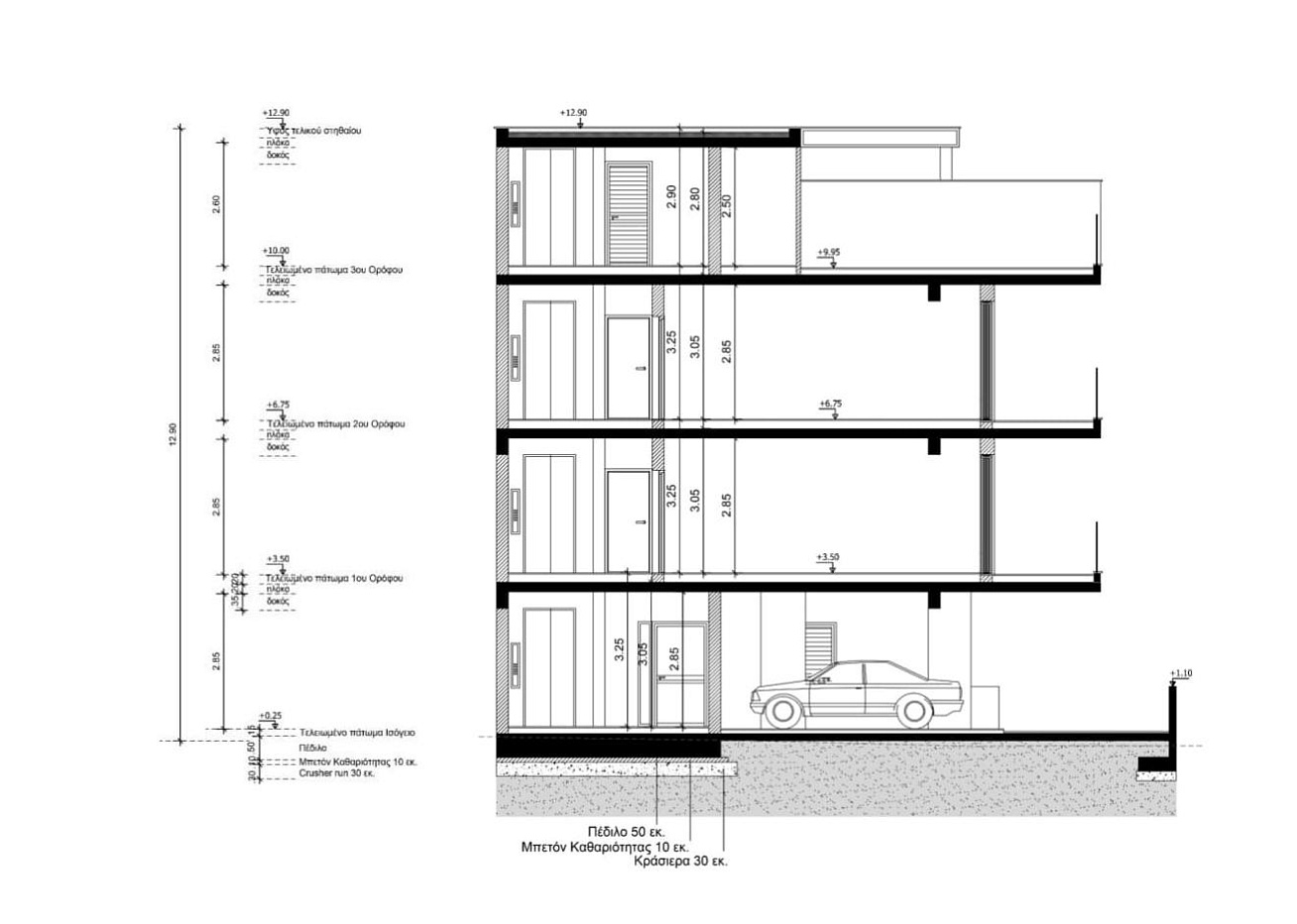
Этажность
2
Количество спален
от 1 до 2
Площадь объектов, м2
от 71 до 413
Расстояние до моря, м
1700
Класс энергоэффективности
A
Стоимость покупки, EUR:
от 185 000 до 840 000
Узнать больше:
Anastasia Stepaniuk
Объекты
Таблицей
Списком
https://dom.com.cy/upload/resize_cache/uf/8be/1088_820_2/od57kl9jdnimvzhvpldbnazw8old45ah.JPG
№ 193585
Площадь: 413 м2
840 000 EUR+VAT
2 034 EUR/м2
https://dom.com.cy/upload/resize_cache/uf/308/1088_820_2/90b2zlc90byh6q3m51uoutmravwc0p23.jpg
№ 193584
Площадь: 116 м2
Спален: 1
200 000 EUR+VAT
1 724 EUR/м2
https://dom.com.cy/upload/resize_cache/uf/d6c/1088_820_2/ui4j2sybk9cj1goh3j7lw267mxf4u30a.jpg
№ 193583
Площадь: 137 м2
Спален: 2
250 000 EUR+VAT
1 825 EUR/м2
https://dom.com.cy/upload/resize_cache/uf/359/1088_820_2/coq3flakvw340rqj2hw1qrmlqzy9rv7m.JPG
№ 193582
Площадь: 71 м2
Спален: 1
185 000 EUR+VAT
2 606 EUR/м2
https://dom.com.cy/upload/resize_cache/uf/c2d/1088_820_2/5bid32gfbi7g5li70781232fmdn71jwl.JPG
№ 193579
Площадь: 90 м2
Спален: 2
205 000 EUR+VAT
2 278 EUR/м2
Добавить комментарий
Оставить комментарий


Компания «Dom Real Estate» Контакты:
Адрес: Limassol, Cyprus,
Телефон:+357 25 212 212, Электронная почта: info@dom.com.cy