Jira

Описание:

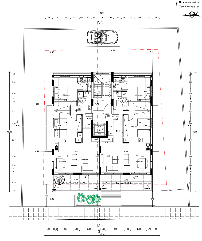
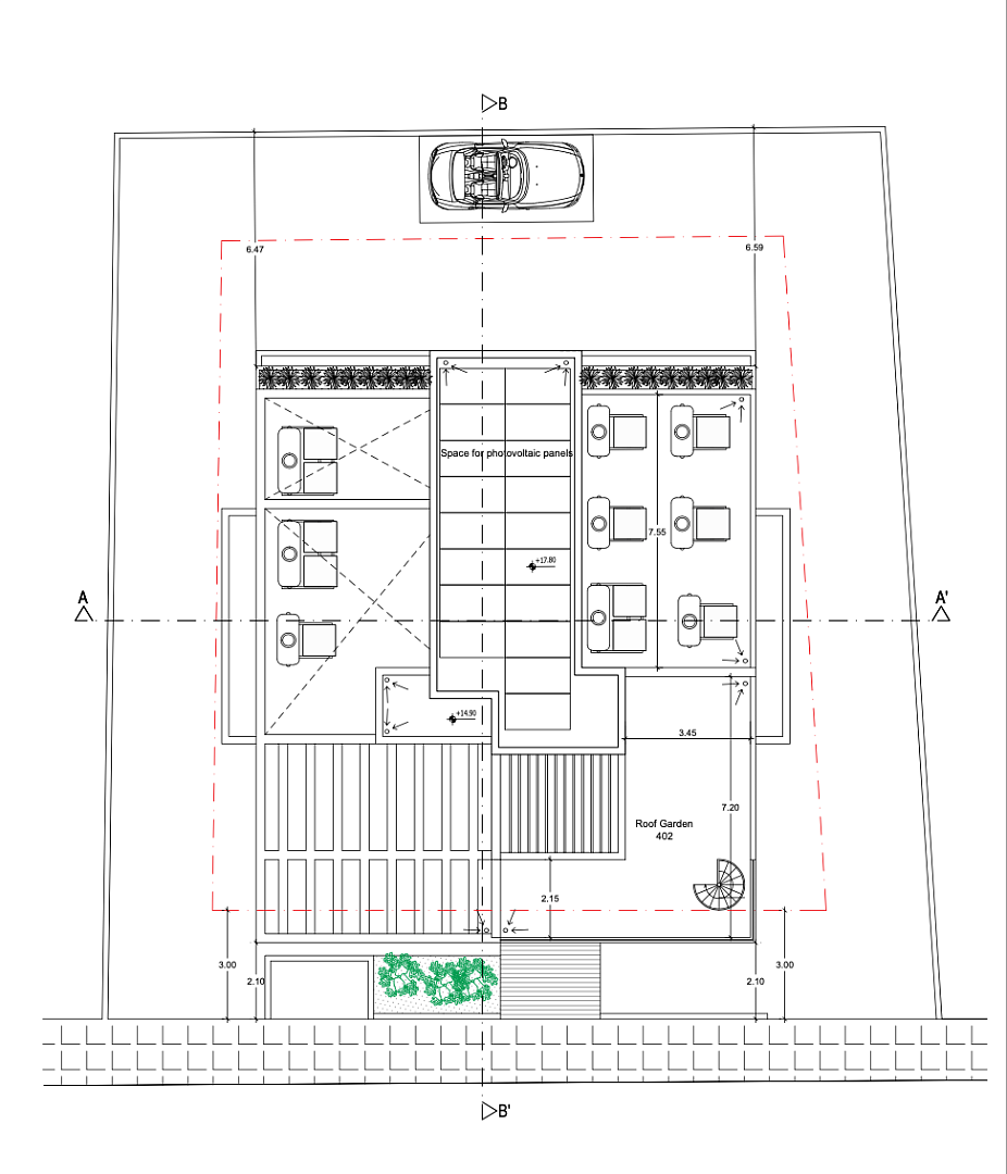
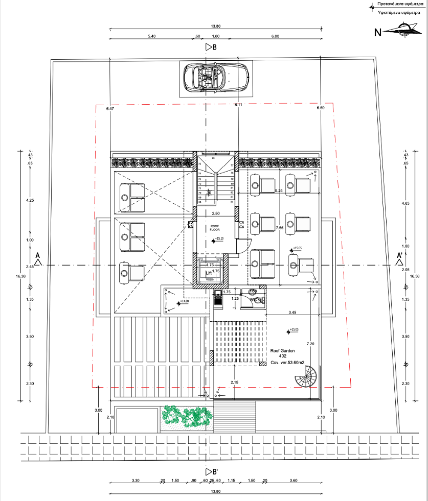
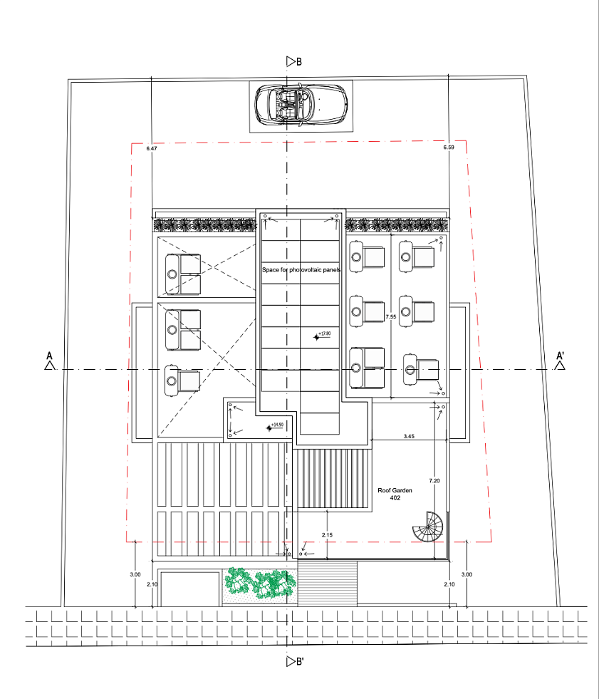
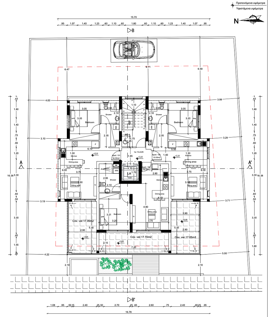
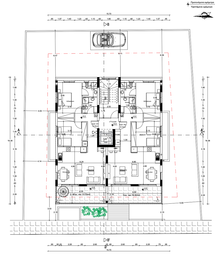
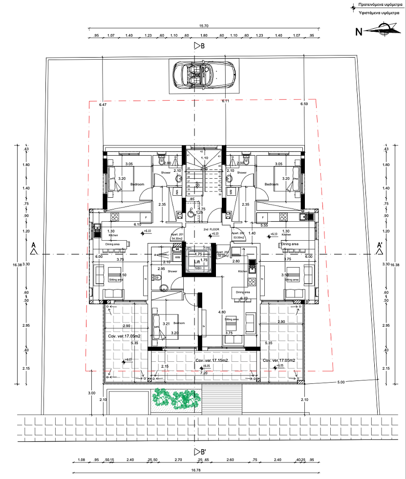
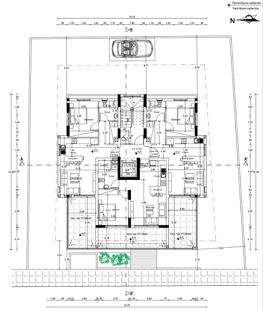
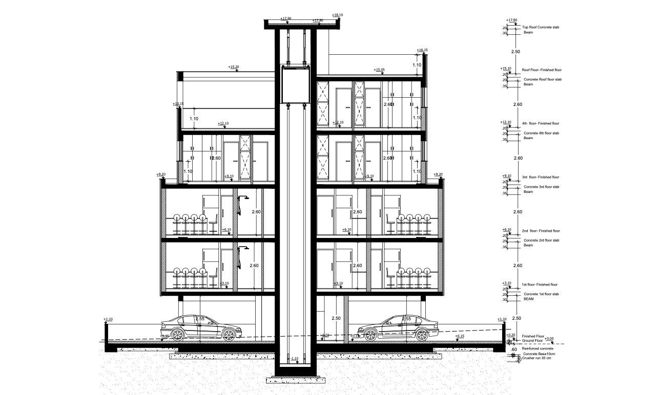
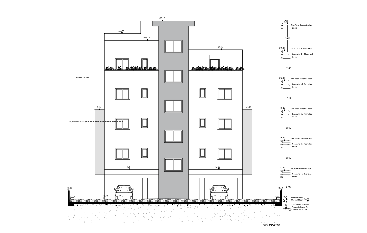
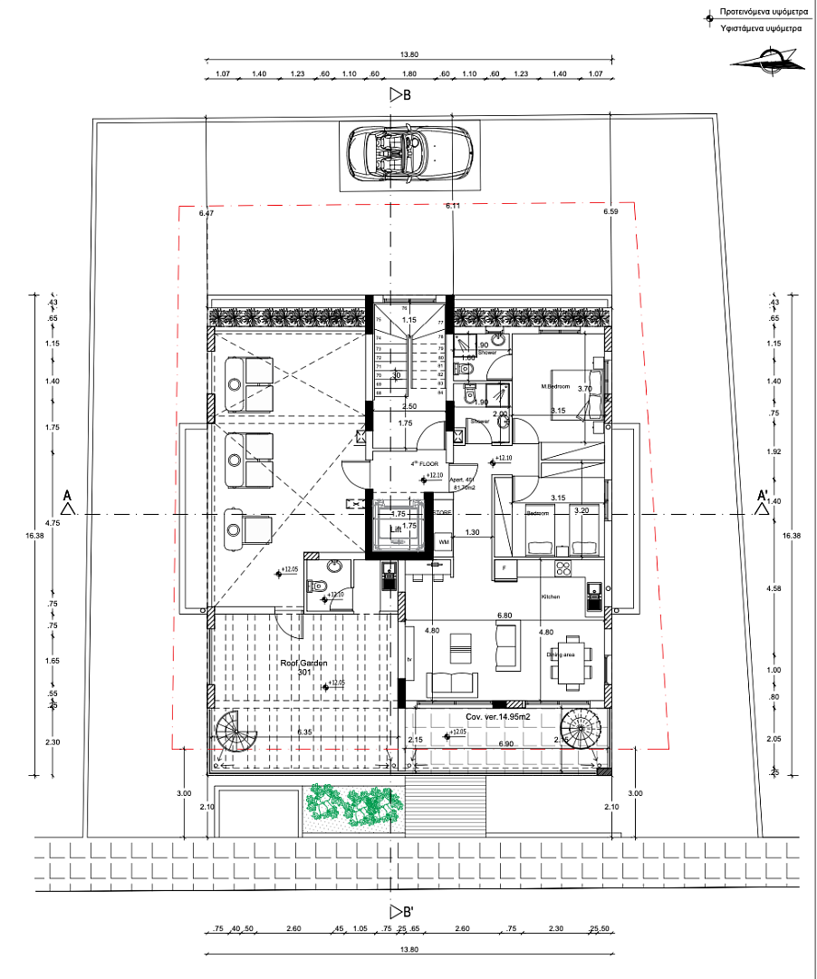
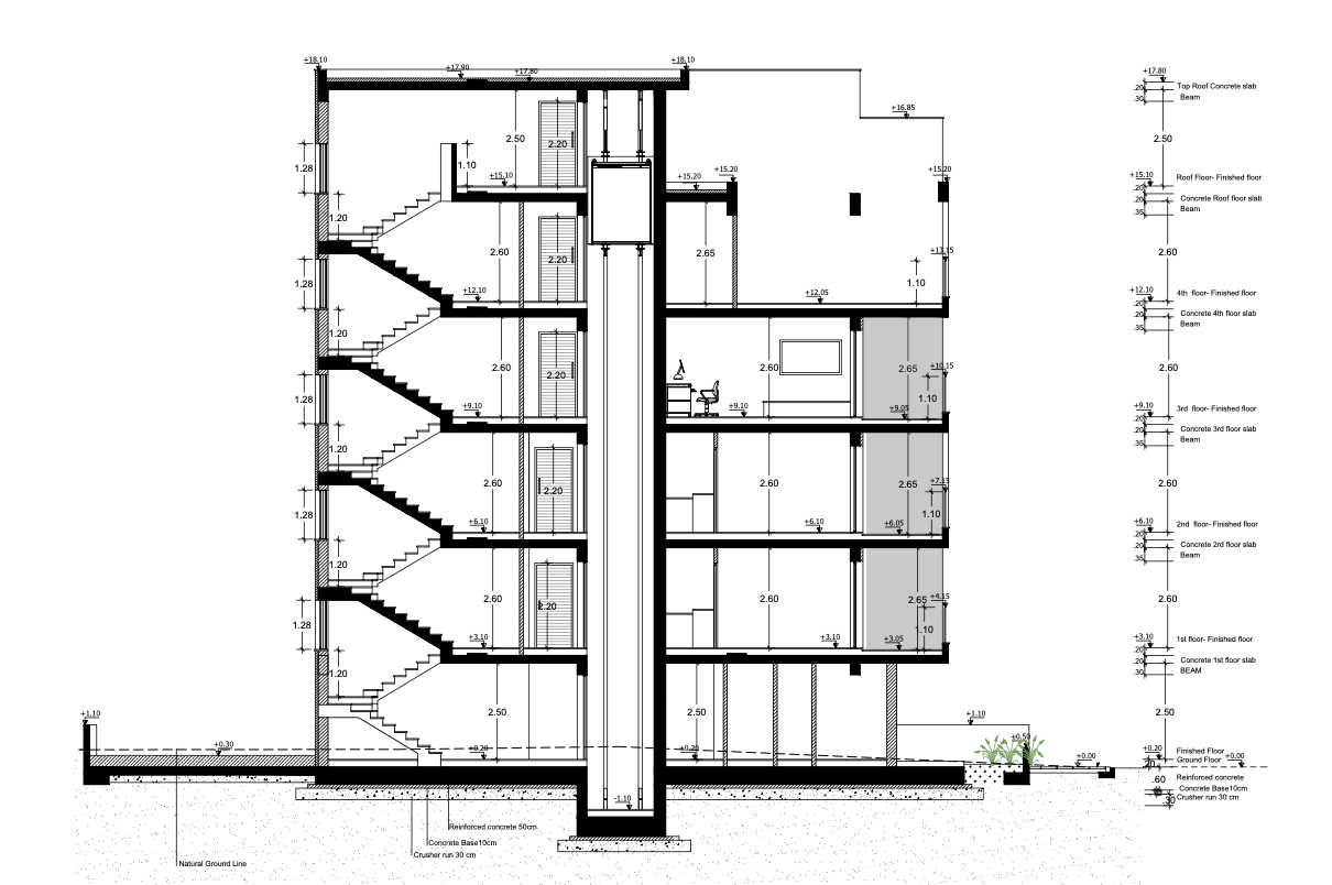
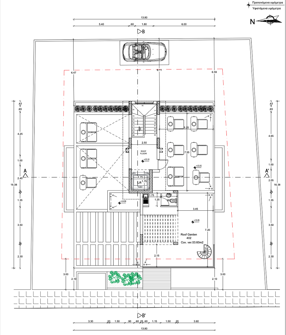
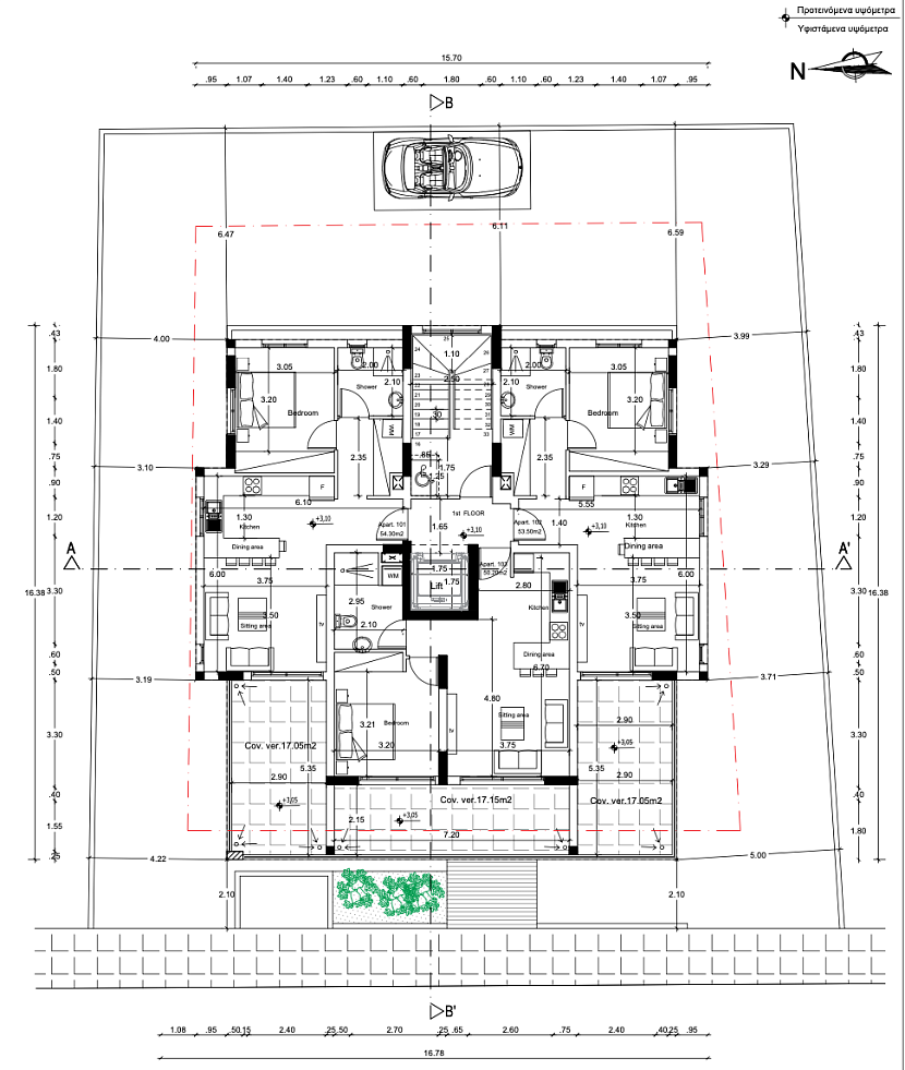
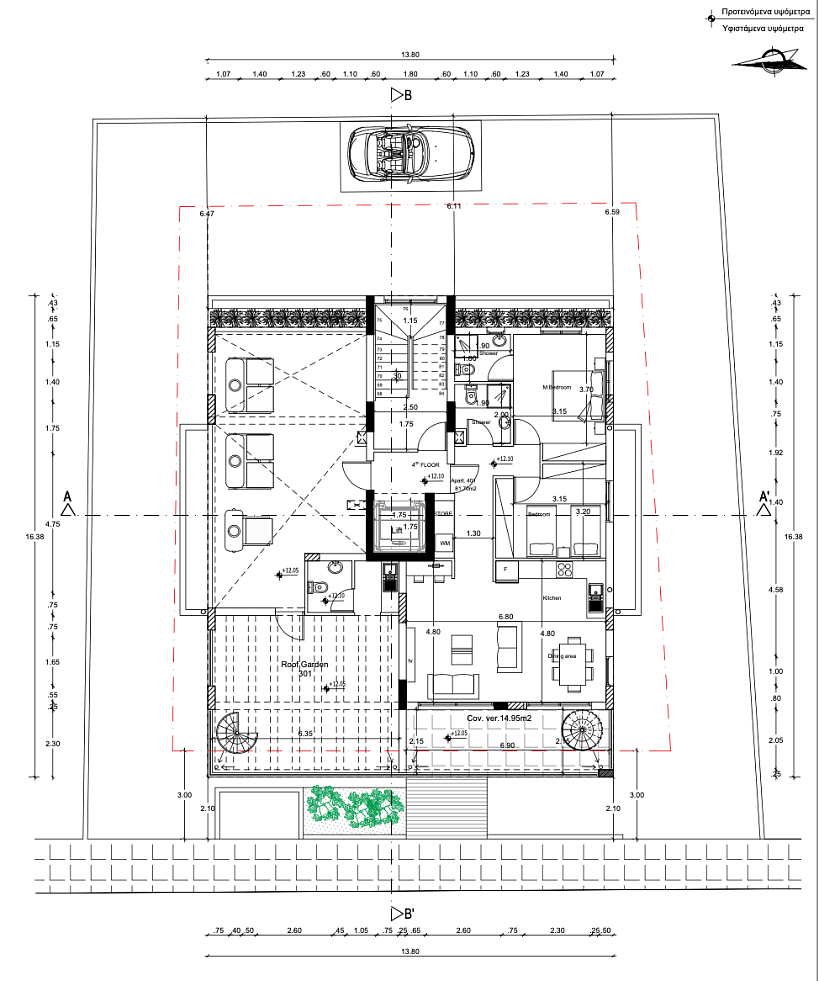
Jira - проект состоит из 4 этажей и 9 квартир: по 3 односпальных квартиры на первом и втором этажах, 2 двухспальные квартиры на третьем этаже, одна из которых с садом на крыше. На четвёртом этаже расположена 1 двухспальная квартира с садом на крыше. При строительстве комплекса использованы высококачественные материалы, закрытая парковка, кладовка и многие другие современные технологии.

Читать далее
Город
Ларнака
Район
Хрисополитисса
Обновлен
29.04.2026
Этажность
4
Расстояние до моря, м
400
Класс энергоэффективности
A
Узнать больше:
Anastasia Stepaniuk
Объекты
Таблицей
Списком
Добавить комментарий
Оставить комментарий


Компания «Dom Real Estate» Контакты:
Адрес: Limassol, Cyprus,
Телефон:+357 25 212 212, Электронная почта: info@dom.com.cy