Ikia Residence

Описание:

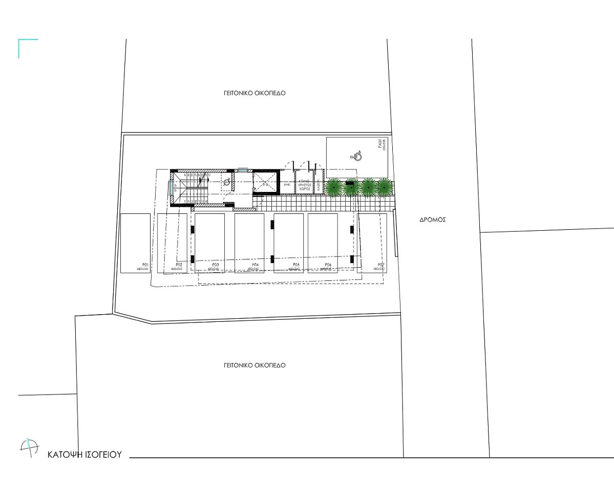
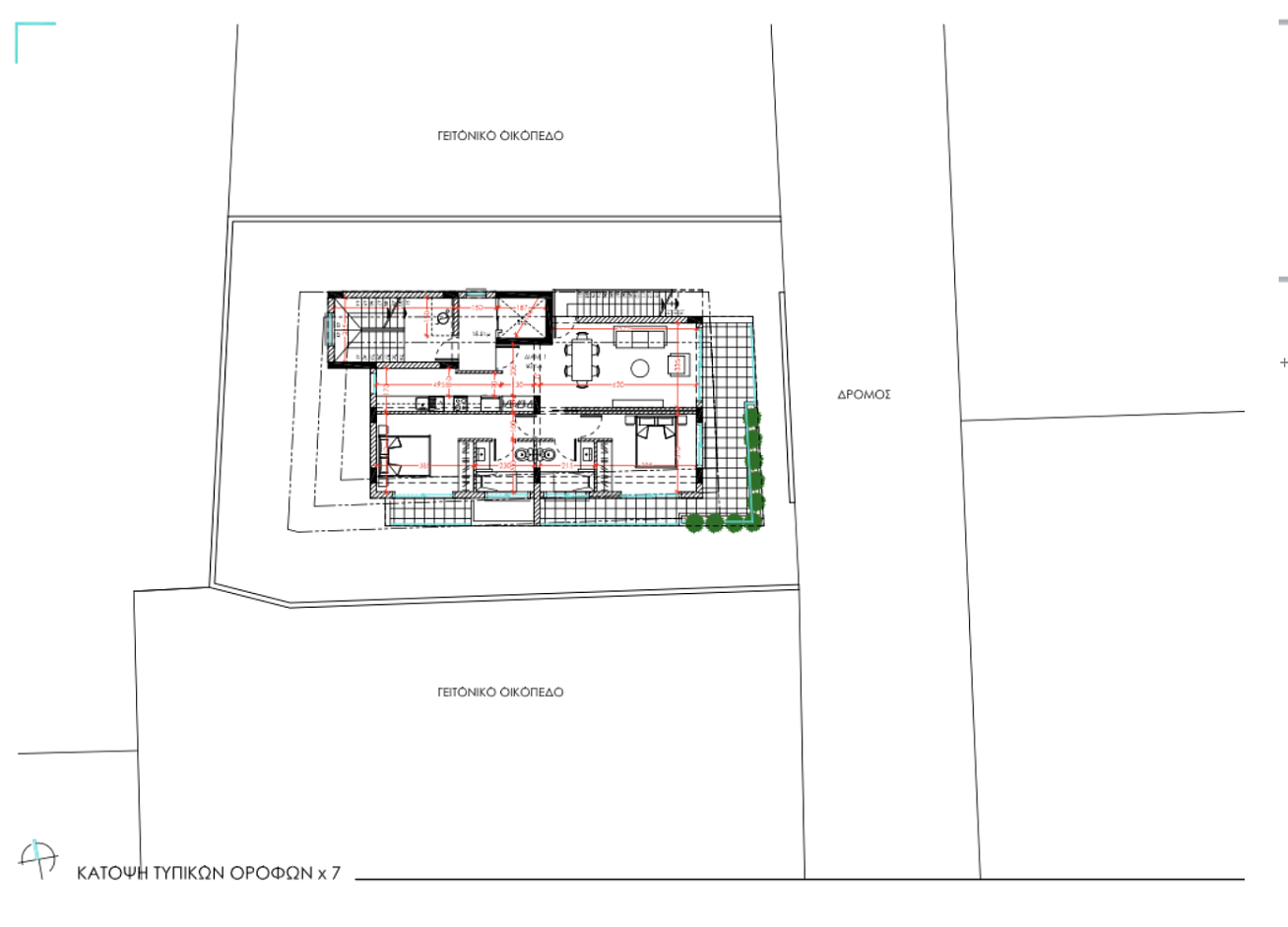
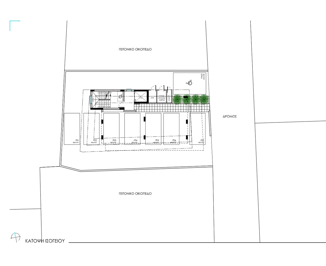
Новый жилой комплекс в центре Larnaca, рядом со входом в порт, представляет собой современный архитектурный проект, созданный для комфортной городской жизни у моря. Комплекс расположен всего в нескольких шагах от набережной и крупнейших инфраструктурных проектов города, что делает его особенно привлекательным для проживания и инвестиций. Здание выполнено в современном стиле с элегантным фасадом и просторными квартирами, отличающимися функциональными планировками, большими окнами и высоким качеством отделки. Из большинства квартир открываются виды на море и город. Для удобства жителей предусмотрены частные парковочные места и благоустроенная территория. Проект соответствует современным европейским стандартам строительства и энергоэффективности класса A, обеспечивая комфорт, стиль и долговечность.

Читать далее
Город
Ларнака
Обновлен
29.04.2026
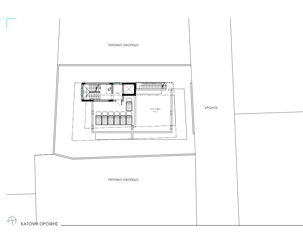
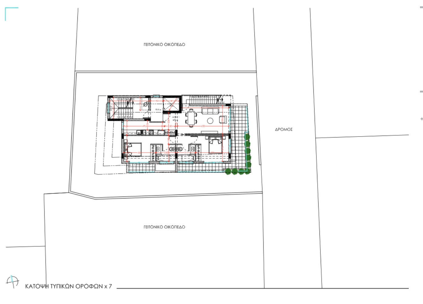
Этажность
7
Количество спален
от 2 до 2
Площадь объектов, м2
от 107 до 147
Расстояние до моря, м
311
Класс энергоэффективности
A
Стоимость покупки, EUR:
от 375 000 до 665 000
Узнать больше:
Dmitrii Krygin
Объекты
Таблицей
Списком
https://dom.com.cy/upload/resize_cache/uf/43a/1088_820_2/su85kc7baqw3or2fh260vcfbii4lpx9z.jpeg
№ 183936
Площадь: 147 м2
Спален: 2
665 000 EUR+VAT
4 524 EUR/м2
https://dom.com.cy/upload/resize_cache/uf/f6c/1088_820_2/ynm3kvw12ml1h3sj4fo7bmmetr23lss6.jpg
№ 183935
Площадь: 107 м2
Спален: 2
475 000 EUR+VAT
4 439 EUR/м2
https://dom.com.cy/upload/resize_cache/uf/b89/1088_820_2/5viy2s7mwxpkq381ka5fdh0hal6zx3ah.jpg
№ 183934
Площадь: 107 м2
Спален: 2
460 000 EUR+VAT
4 299 EUR/м2
https://dom.com.cy/upload/resize_cache/uf/a23/1088_820_2/99n41rd8qow8b2vt8iqbzofuw17vg69d.jpg
№ 183933
Площадь: 107 м2
Спален: 2
435 000 EUR+VAT
4 065 EUR/м2
https://dom.com.cy/upload/resize_cache/uf/43a/1088_820_2/su85kc7baqw3or2fh260vcfbii4lpx9z.jpeg
№ 183932
Площадь: 107 м2
Спален: 2
415 000 EUR+VAT
3 879 EUR/м2
https://dom.com.cy/upload/resize_cache/uf/b89/1088_820_2/5viy2s7mwxpkq381ka5fdh0hal6zx3ah.jpg
№ 183931
Площадь: 107 м2
Спален: 2
395 000 EUR+VAT
3 692 EUR/м2
https://dom.com.cy/upload/resize_cache/uf/f6c/1088_820_2/ynm3kvw12ml1h3sj4fo7bmmetr23lss6.jpg
№ 183929
Площадь: 107 м2
Спален: 2
375 000 EUR+VAT
3 505 EUR/м2
Добавить комментарий
Оставить комментарий


Компания «Dom Real Estate» Контакты:
Адрес: Limassol, Cyprus,
Телефон:+357 25 212 212, Электронная почта: info@dom.com.cy