AKA14

Описание:

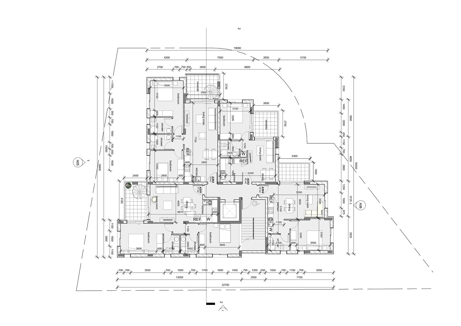
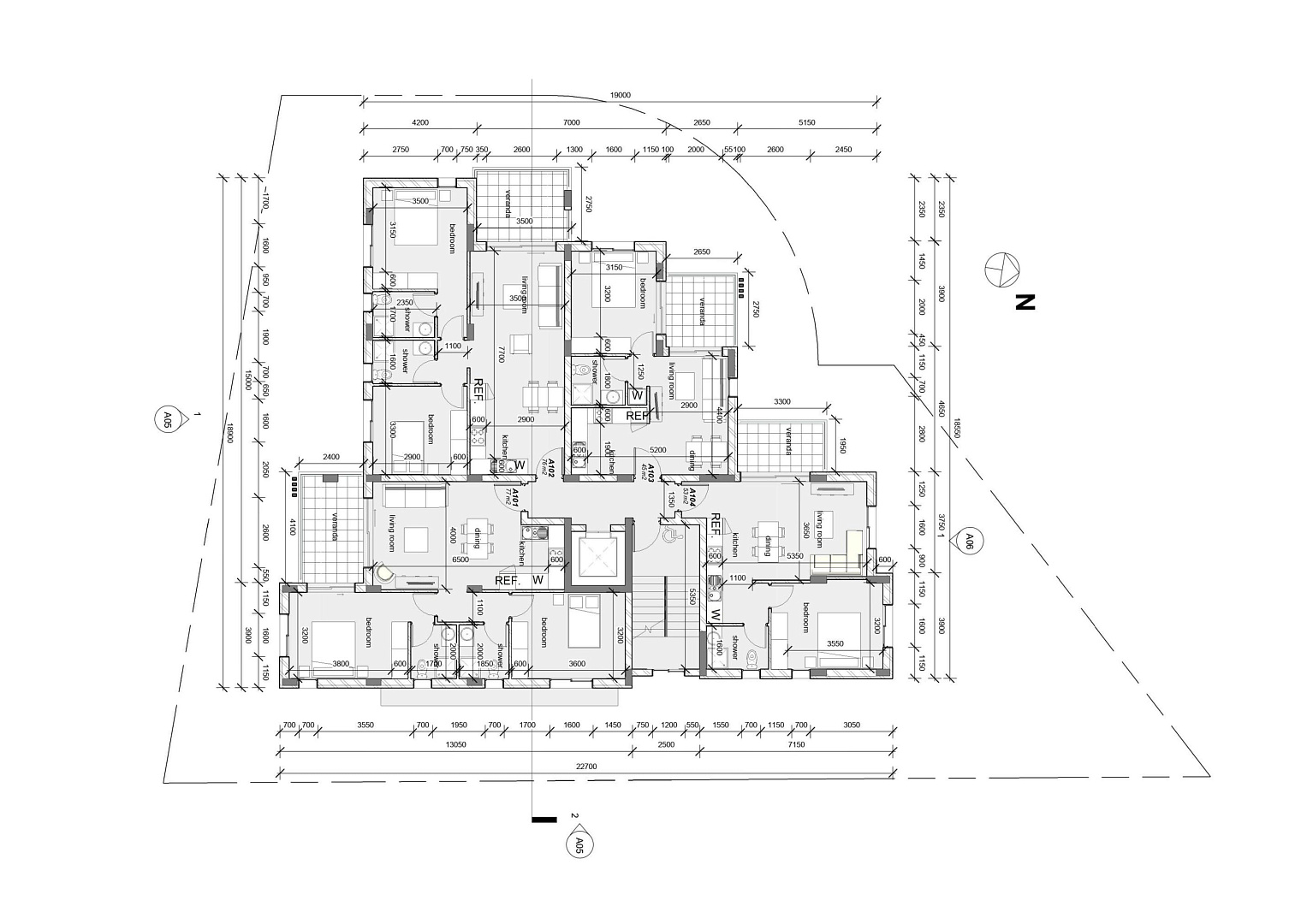
Новый жилой комплекс в районе Oroklini, Larnaca — это современный проект, сочетающий качество строительства, комфорт и энергоэффективность. Комплекс возведён с использованием прочных и экологичных материалов, обеспечивающих надёжную тепло- и звукоизоляцию. Квартиры отличаются продуманными планировками, просторными комнатами, современными ванными и стильными кухнями с термостойкими столешницами. В зданиях установлены алюминиевые окна с термоизоляцией и солнечные системы водонагрева, что обеспечивает комфорт и экономию энергии. Для удобства жителей предусмотрены крытые парковочные места. Комплекс расположен в спокойном и зелёном районе Ороклини, недалеко от моря и всей необходимой инфраструктуры, что делает его идеальным выбором для постоянного проживания или выгодных инвестиций.

Читать далее
Город
Ларнака
Район
Ороклини
Обновлен
18.03.2026
Этажность
2
Количество спален
от 1 до 2
Площадь объектов, м2
от 60 до 87
Расстояние до моря, м
1650
Класс энергоэффективности
A
Стоимость покупки, EUR:
от 135 000 до 185 000
Узнать больше:
Irina Diomina
Объекты
Таблицей
Списком
https://dom.com.cy/upload/resize_cache/uf/cd4/1088_820_2/qwq838uf1iuk3td1415wysp5fl2qliec.jpg
№ 184755
Площадь: 86 м2
Спален: 2
180 000 EUR+VAT
2 093 EUR/м2
https://dom.com.cy/upload/resize_cache/uf/b8a/1088_820_2/duvnork3ri7akgms2019ulskrzaabmmt.jpg
№ 184754
Площадь: 87 м2
Спален: 2
185 000 EUR+VAT
2 126 EUR/м2
Добавить комментарий
Оставить комментарий


Компания «Dom Real Estate» Контакты:
Адрес: Limassol, Cyprus,
Телефон:+357 25 212 212, Электронная почта: info@dom.com.cy