The Department of Environmental Protection of Cyprus has approved the construction of a new commercial multi-story building in Larnaca.
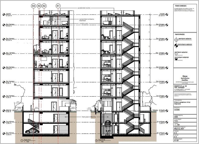
The building, situated on a 347 m² plot, will be erected by the development company CCRSE Real Estate. The office tower will be located on Makarios III Avenue, in the Panagia Chrysopolitissa area.
It is worth noting that the area in which the building will be constructed is quite developed, with a mix of residential, office, and commercial buildings surrounding it.

According to the release, the project falls under the category of "high-rise buildings" and will involve the construction and operation of a 27-meter-high tower, consisting of 6 above-ground floors, a ground floor, and 2 underground floors for parking. The complex will feature extravagant architectural design and captivating panoramic views.
Once completed, the building will be able to accommodate approximately 80 employees. The developer hopes that this commercial project will strengthen the trust of potential international investors and contribute to the future development of Larnaca.