
New 2-bedroom apartment in Nicosia / Agios Andreas №203188









№203188
Apartment
City:
District:
Complex:
2
2
103 m²
85 m²
2
2
07/2027
A
€3,291 / m²
Additional:
Description:
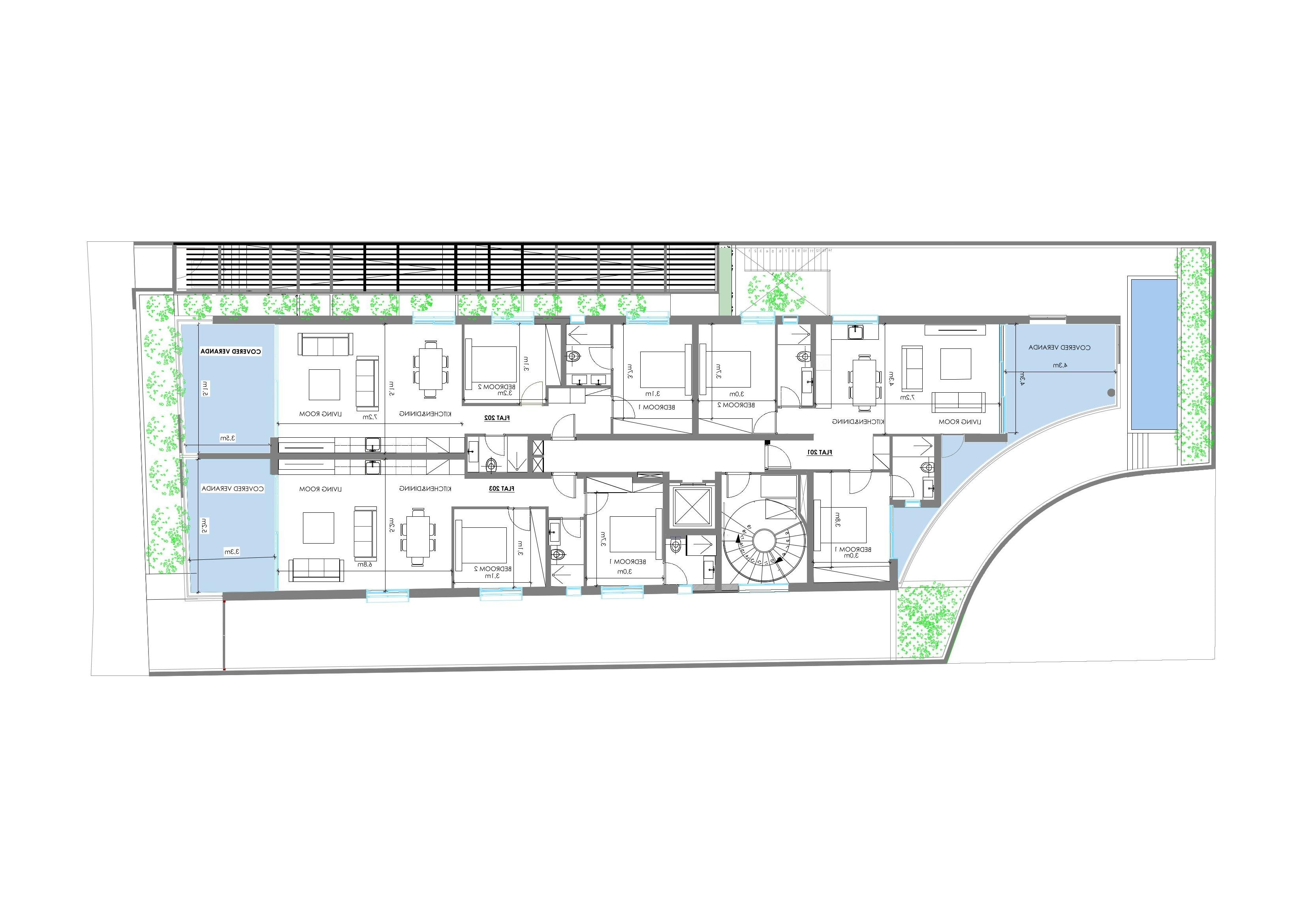
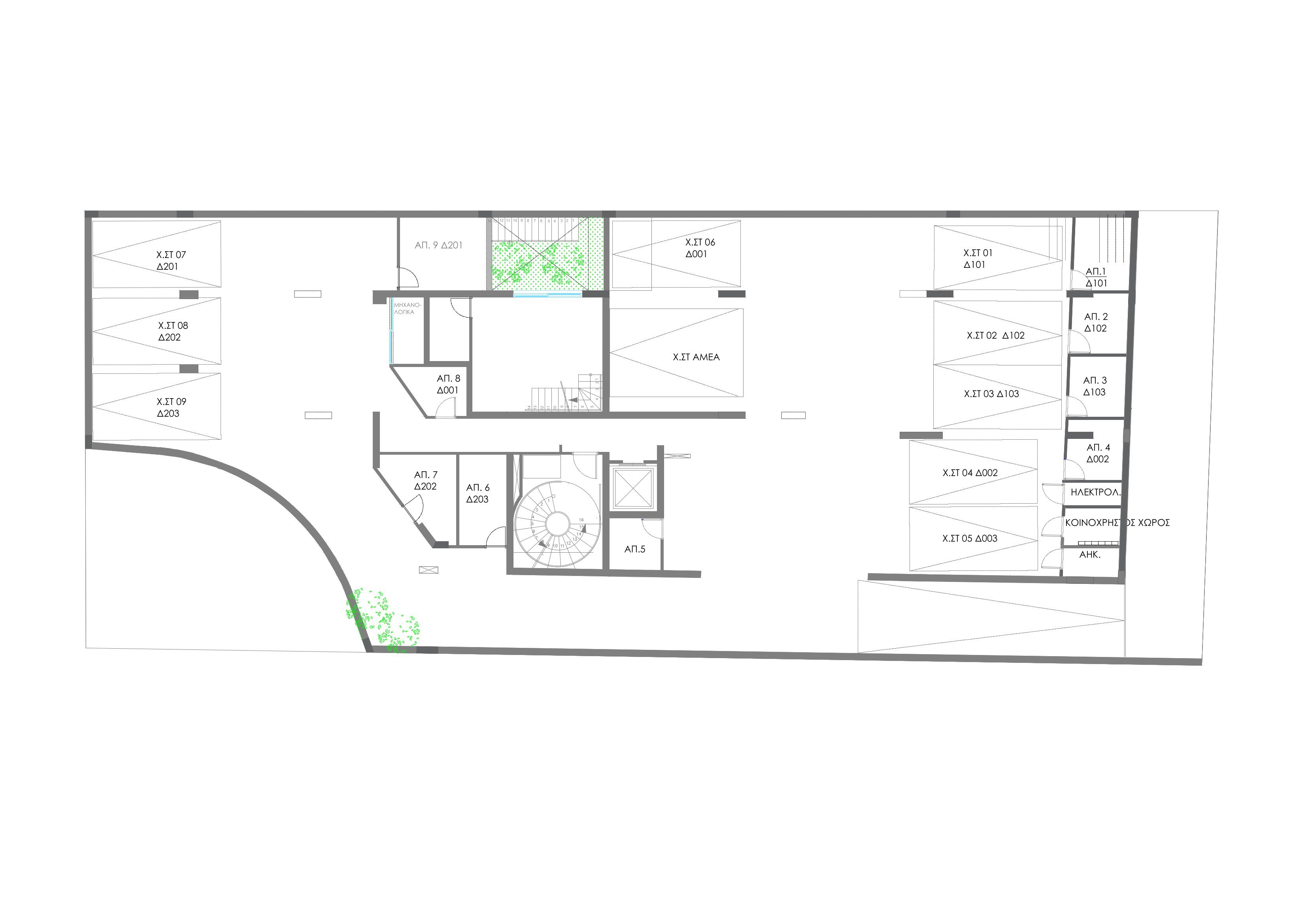
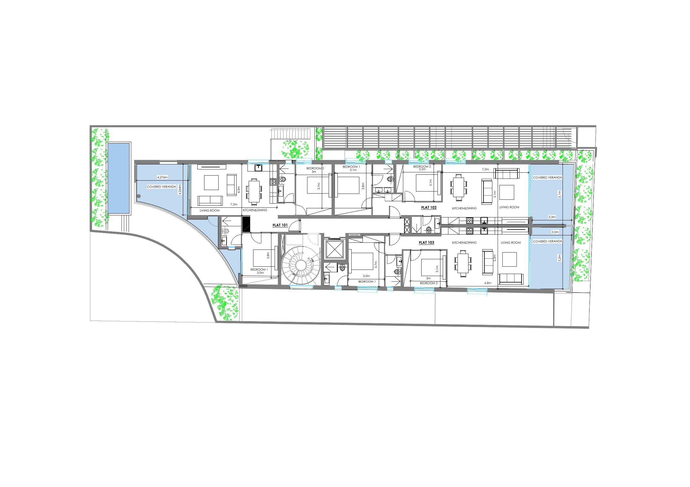
Apartment for sale in the area of Agios Andreas, Nicosia, located in the very center of the city. The unique location on the border of the linear park of Pedios and in close proximity to the historical center of the old town and the central shopping area makes the property especially attractive for connoisseurs of urban life. The apartment is equipped with a underfloor heating system using a modern heat pump and intelligent digital thermostats, as well as a full-fledged air conditioning system of the latest generation with inverter technology and high energy efficiency. The interior is complemented by luxurious Pedini (Fabrica) Italian kitchens, high-quality electric external blinds and premium wooden floor coverings with a soundproof layer. All engineering solutions are aimed at creating maximum comfort and energy efficiency. This apartment is an excellent opportunity to live in the center of the capital or to invest in one of the most prestigious areas of Nicosia.

Kristina Acheriotou
+357 22 03 06 78









Additional:
Description:
Apartment for sale in the area of Agios Andreas, Nicosia, located in the very center of the city. The unique location on the border of the linear park of Pedios and in close proximity to the historical center of the old town and the central shopping area makes the property especially attractive for connoisseurs of urban life. The apartment is equipped with a underfloor heating system using a modern heat pump and intelligent digital thermostats, as well as a full-fledged air conditioning system of the latest generation with inverter technology and high energy efficiency. The interior is complemented by luxurious Pedini (Fabrica) Italian kitchens, high-quality electric external blinds and premium wooden floor coverings with a soundproof layer. All engineering solutions are aimed at creating maximum comfort and energy efficiency. This apartment is an excellent opportunity to live in the center of the capital or to invest in one of the most prestigious areas of Nicosia.
№203188
Apartment
City:
District:
Complex:
2
2
103 m²
85 m²
2
2
07/2027
A
€3,291 / m²

Kristina Acheriotou
+357 22 03 06 78
Similar offers
Similar offers




New 2-bedroom apartment in Nicosia / Agios Andreas
Area:
105 m²
Bedrooms:
2
Bathrooms:
2




New 2-bedroom apartment in Nicosia / Agios Andreas
Area:
104 m²
Bedrooms:
2
Bathrooms:
2




New 2-bedroom apartment in Nicosia / Agios Andreas
Area:
100 m²
Bedrooms:
2
Bathrooms:
2




New 2-bedroom apartment in Nicosia / Agios Andreas
Area:
113 m²
Bedrooms:
2
Bathrooms:
2







