



City
Nicosia
District
Latsia
Updated
30.04.2024
Floors
2
Energy class
A
Objects count
0
Bedrooms range
0 – 0
Apartments area
0 – 0 m²
Materials
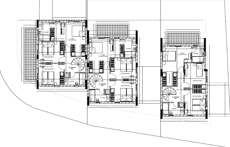
Complex newsDescription
The project consists of 3 modern three-bedroom residences. The minimalist architecture of the project combined with a comfortable, bright and functional interior space are ready to fulfill the dreams of any demanding client. The yard of the site will be landscaped with clean soils and the top layer of class A soil with a thickness of 20 cm will be laid. The fence will be made in the form of a concrete wall up to 1 m high and painted with SANTEX type paint.
DOM Real Estate
+357 22 030 670




Description
The project consists of 3 modern three-bedroom residences. The minimalist architecture of the project combined with a comfortable, bright and functional interior space are ready to fulfill the dreams of any demanding client. The yard of the site will be landscaped with clean soils and the top layer of class A soil with a thickness of 20 cm will be laid. The fence will be made in the form of a concrete wall up to 1 m high and painted with SANTEX type paint.
City
Nicosia
District
Latsia
Updated
30.04.2024
Floors
2
Energy class
A
Objects count
0
Bedrooms range
0 – 0
Apartments area
0 – 0 m²
Materials
Complex newsDOM Real Estate
+357 22 030 670
No properties found for this complex