



City
Limassol
District
Kato Polemidia
Updated
29.03.2026
Floors
6
Energy class
A
Objects count
0
Bedrooms range
0 – 0
Apartments area
0 – 0 m²
Distance to sea
1500 m
Materials
Complex newsDescription
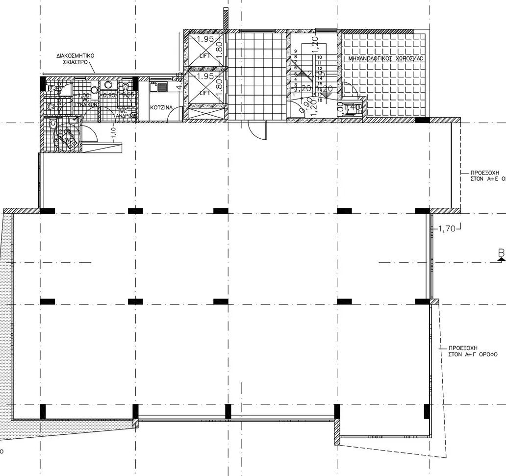
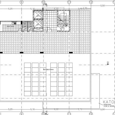
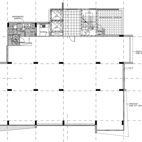
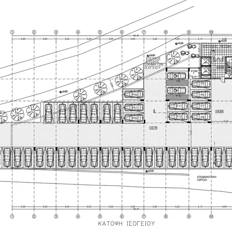
Business center in Kato Polemidia, Limassol. Thanks to its grandiose architecture and exquisite design, our center creates the foundation for success. With 95 parking spaces, convenience is at your fingertips, ensuring an unobstructed visit for you and your customers. Our spacious and versatile premises with an area of more than 2500 m2 provide enough space for your business to flourish. Discover a new level of elegance and productivity in this business center. The business center will be equipped with a VRV system, organically integrated into the design of the raised floor and suspended ceiling. The kitchen and bathroom equipment will be sourced from reputable European suppliers and will offer the perfect combination of durability, functionality and aesthetic appeal. In addition, the common areas will be lined with high-quality ceramic tiles to give the building a general atmosphere and give it elegance.
DOM Real Estate
+35725281893




Description
Business center in Kato Polemidia, Limassol. Thanks to its grandiose architecture and exquisite design, our center creates the foundation for success. With 95 parking spaces, convenience is at your fingertips, ensuring an unobstructed visit for you and your customers. Our spacious and versatile premises with an area of more than 2500 m2 provide enough space for your business to flourish. Discover a new level of elegance and productivity in this business center. The business center will be equipped with a VRV system, organically integrated into the design of the raised floor and suspended ceiling. The kitchen and bathroom equipment will be sourced from reputable European suppliers and will offer the perfect combination of durability, functionality and aesthetic appeal. In addition, the common areas will be lined with high-quality ceramic tiles to give the building a general atmosphere and give it elegance.
City
Limassol
District
Kato Polemidia
Updated
29.03.2026
Floors
6
Energy class
A
Objects count
0
Bedrooms range
0 – 0
Apartments area
0 – 0 m²
Distance to sea
1500 m
Materials
Complex newsDOM Real Estate
+35725281893
No properties found for this complex