



16
City
Nicosia
District
Lakatameia
Updated
29.03.2026
Floors
3
Energy class
A
Objects count
0
Bedrooms range
0 – 0
Apartments area
0 – 0 m²
Materials
Complex newsDescription
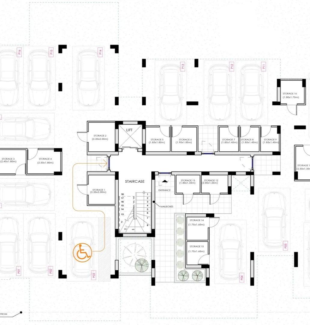
Horizon 1 is a new complex in the heart of Lakatamia, Nicosia. Conveniently located near Lidl and Alfamega. It is located at the beginning of a new road under construction connecting Lakatamia with the A1 Nicosia–Limassol highway. There are five apartments on each floor: four spacious two-bedroom and one comfortable studio, for a total of 15 apartments. Photovoltaics are available for every apartment.

Kristina Acheriotou
+357 22 03 06 78




16
Description
Horizon 1 is a new complex in the heart of Lakatamia, Nicosia. Conveniently located near Lidl and Alfamega. It is located at the beginning of a new road under construction connecting Lakatamia with the A1 Nicosia–Limassol highway. There are five apartments on each floor: four spacious two-bedroom and one comfortable studio, for a total of 15 apartments. Photovoltaics are available for every apartment.
City
Nicosia
District
Lakatameia
Updated
29.03.2026
Floors
3
Energy class
A
Objects count
0
Bedrooms range
0 – 0
Apartments area
0 – 0 m²
Materials
Complex news
Kristina Acheriotou
+357 22 03 06 78
No properties found for this complex