



City
Larnaca
District
Drosia
Updated
29.03.2026
Floors
3
Objects count
4
Bedrooms range
1 – 2
Apartments area
68 – 173 m²
Distance to sea
2600 m
Purchase cost, EUR:
from 170 000 to 320 000
Materials
Complex newsDescription
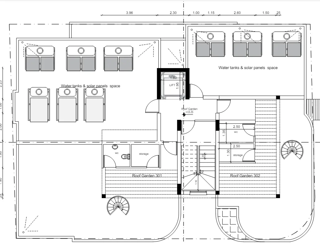
Apartments for sale in a new complex in Larnaca. The project consists of 3 floors, 9 apartments in total: 1 one-bedroom apartment and 2 two-bedroom apartments on the first and second floors. On the third floor there are 2 penthouses with two bedrooms and a roof garden, each of which has access by stairs to a balcony, and 1 one-bedroom apartment. There is a parking space for each apartment.
DOM Real Estate
+357 24 023 513




Description
Apartments for sale in a new complex in Larnaca. The project consists of 3 floors, 9 apartments in total: 1 one-bedroom apartment and 2 two-bedroom apartments on the first and second floors. On the third floor there are 2 penthouses with two bedrooms and a roof garden, each of which has access by stairs to a balcony, and 1 one-bedroom apartment. There is a parking space for each apartment.
City
Larnaca
District
Drosia
Updated
29.03.2026
Floors
3
Objects count
4
Bedrooms range
1 – 2
Apartments area
68 – 173 m²
Distance to sea
2600 m
Purchase cost, EUR:
from 170 000 to 320 000
Materials
Complex newsDOM Real Estate
+357 24 023 513
No properties found for this complex