New 2-bedroom flat in Nicosia № 198639
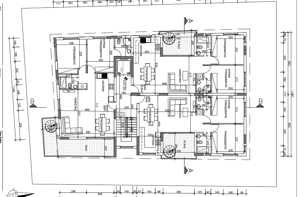
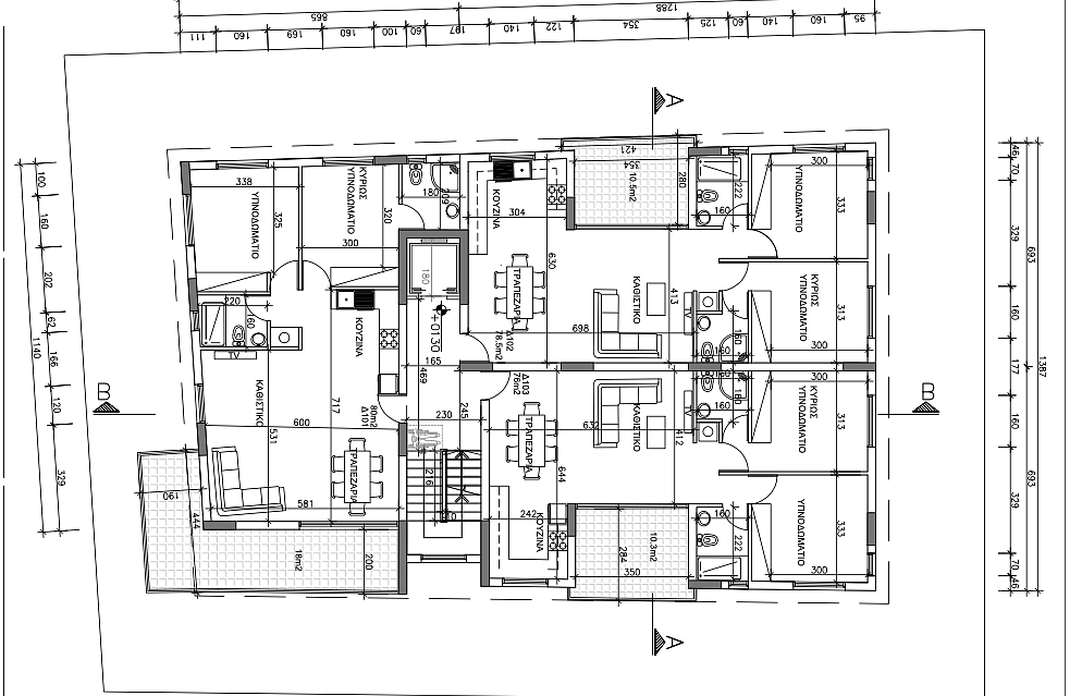
Apartment for sale in the area of Dali, Nicosia. The complex, consisting of only six apartments, occupies two floors. High-quality materials, finishes and plumbing were used in the construction. The spacious kitchen harmoniously merges into a bright living room with access to the veranda. Each apartment has a storage room and a covered parking.
Easy and quick access to the main road makes this location even more attractive. Here you are surrounded by a beautiful area with a full range of amenities: cafes, restaurants, taverns, shops, schools and clinics. The complex is only a 40-minute drive from Limassol, 20 minutes from Larnaca and only 15 minutes from the center of Nicosia. Construction has already begun. There's a photovoltaic system. It's located near the main road to Pera Horio.
