New 2-bedroom flat in Nicosia № 191549
Additional:
New building
Parking
Elevator
Description:
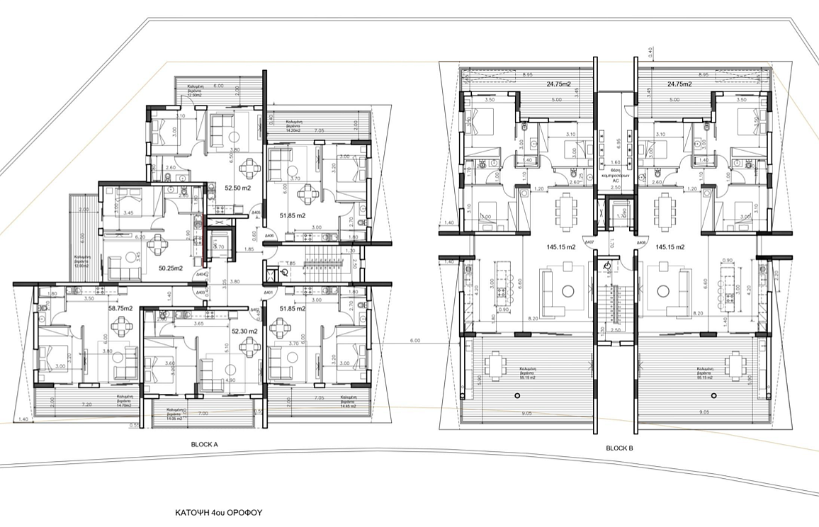
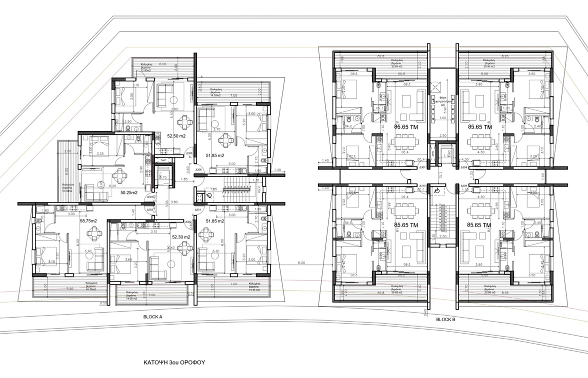
2 bedroom apartment for sale in a new residential complex in the area of Agios Dometios, Nicosia, consists of two four-storey buildings with apartments with 1, 2 and 3 bedrooms. Each apartment provides preparation for the installation of split air conditioning systems. Convenient access to various services and goods.
Read more
Object
№191549
Type:
Apartment
City:
District:
Complex:
Developer:
Bedrooms:
2
Bathrooms:
2
Total area:
107 m2
Indoor area:
86 m2
Storey:
4
Floor:
3
Year of construction:
09/2026
Energy efficiency class:
A
260 000 EUR
+ VAT
260000
2 430
EUR/m2
Schedule a viewing
Similar offers
6446 objects
Show all
Interesting
