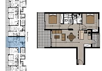
New 2-bedroom flat in Limassol № 189446
Apartment for sale in Germasogeia, Limassol. The modern residential complex combines elegant minimalism, thoughtful design and high energy efficiency. The architecture is designed in a modern style with concise lines and high-quality materials that create an atmosphere of comfort and coziness. The unique elevated location provides stunning panoramic views of the sea and mountains. The price includes installed air conditioners and 2.2 kW of solar panels, and 3.15 m high ceilings create a sense of spaciousness.
The complex is equipped with an advanced photovoltaic system and complies with energy efficiency class A, which reduces operating costs and ensures comfortable living all year round. The Germasogeia area is ideal for those who appreciate a peaceful atmosphere while staying close to the city. Just 3 minutes to the highway and about 10 minutes to schools, supermarkets, restaurants and beaches.
