New 3-bedroom villa in Famagusta № 188138
Additional:
Description:
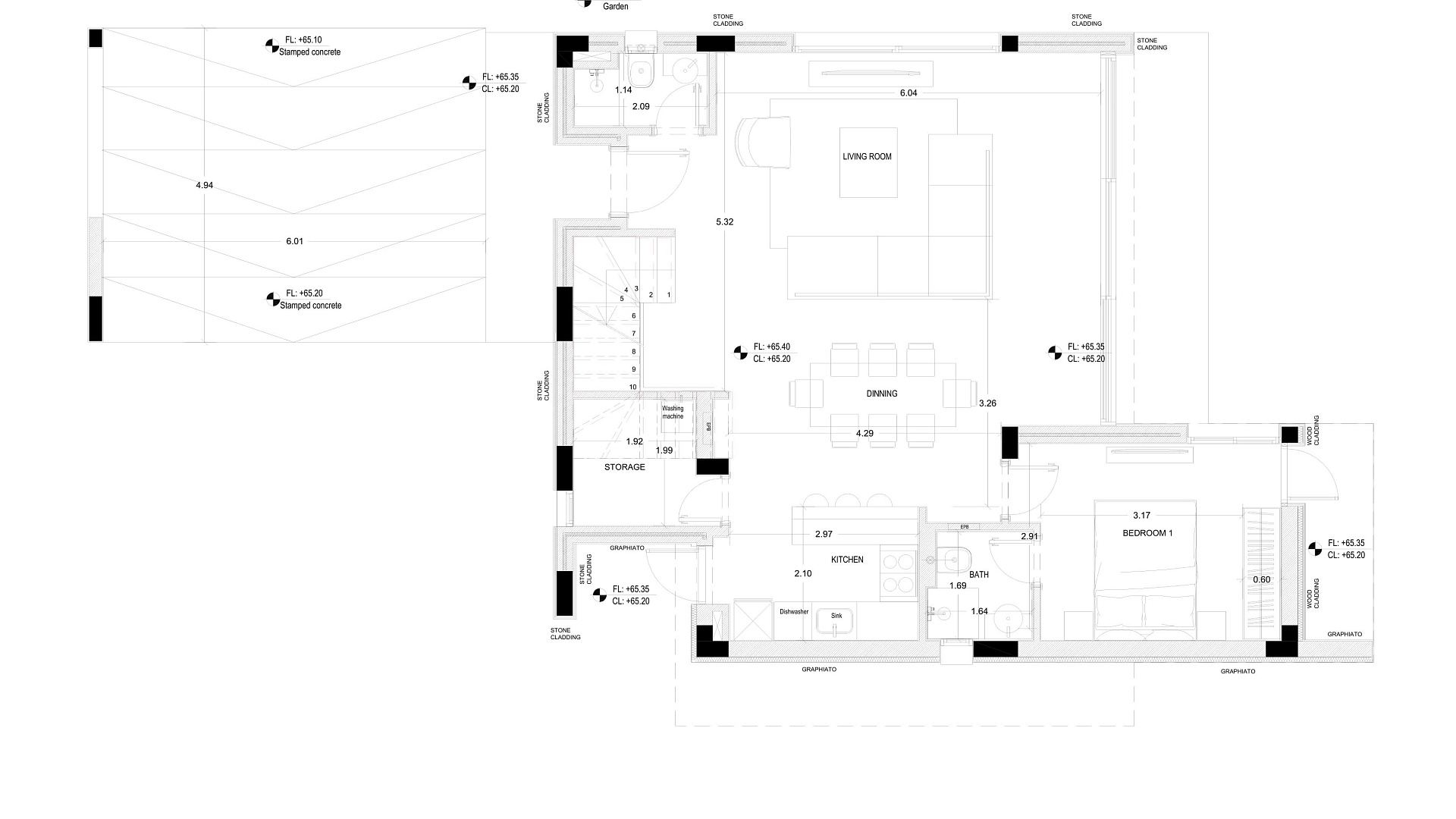
For sale a new 4 bedroom villa in an elite residential complex located in Protaras, a 5-minute drive from the famous Blue Flag beach - Fig Tree Bay. The project consists of 10 villas, each of which, thanks to modern architecture and advanced construction technologies, gives the feeling of an endless, comfortable vacation. Private swimming pool, terraces, landscaping, roof deck and covered parking. White facades contribute to an even greater mood, and facing made of natural stone and wood gives a homely and luxurious look. The villas are located on a hill, which gives an unobstructed panoramic view.
Read more
Object
№188138
Type:
House / Villa
City:
District:
Complex:
Developer:
Bedrooms:
3
Bathrooms:
3
Total area:
328 m2
Indoor area:
151 m2
Land area:
590 m2
Storey:
3
Year of construction:
06/2026
Distance to the sea:
950 m
Energy efficiency class:
A
860 000 EUR
+ VAT
860000
2 622
EUR/m2
Schedule a viewing
Similar offers
1548 objects
Show all
Interesting
