Commercial in Limassol №199313
Additional:
Air Conditioner
Parking
Toilet
Kitchen
Description:
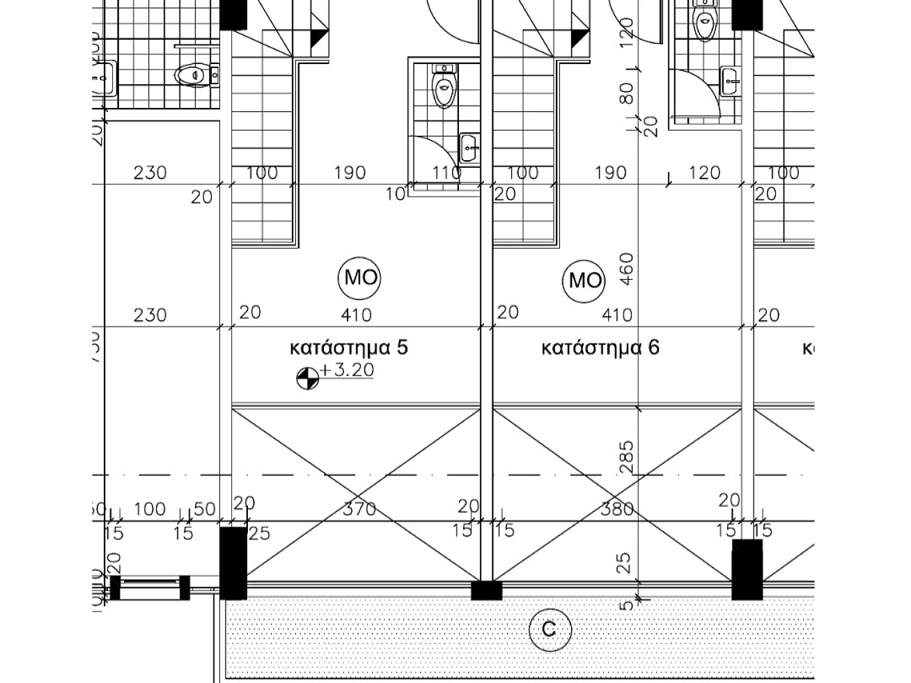
Commercial premises for rent in Mesa Geitonia, Limassol, located in one of the most prestigious and lively areas of the city. The facility is characterized by high visibility and convenient direct access to the highway, which makes it ideal for a corporate office, retail or professional services. The room consists of a spacious ground floor of 101 m2 and a functional mezzanine of 60 m2, which allows flexible organization of the workspace for various business tasks, two toilets and a kitchen area are provided inside..
Read more
Object
№199313
Type:
Commercial
City:
District:
Complex:
Developer:
Total area:
161 m2
Internal area:
161 m2
Storey:
5
Distance to the sea:
1600 m
2 800 EUR
2800
17
EUR/m2
Schedule a viewing
Similar offers
3527 objects
Show all
Interesting
