Commercial in Larnaca №195810
Additional:
Parking
Storage
Description:
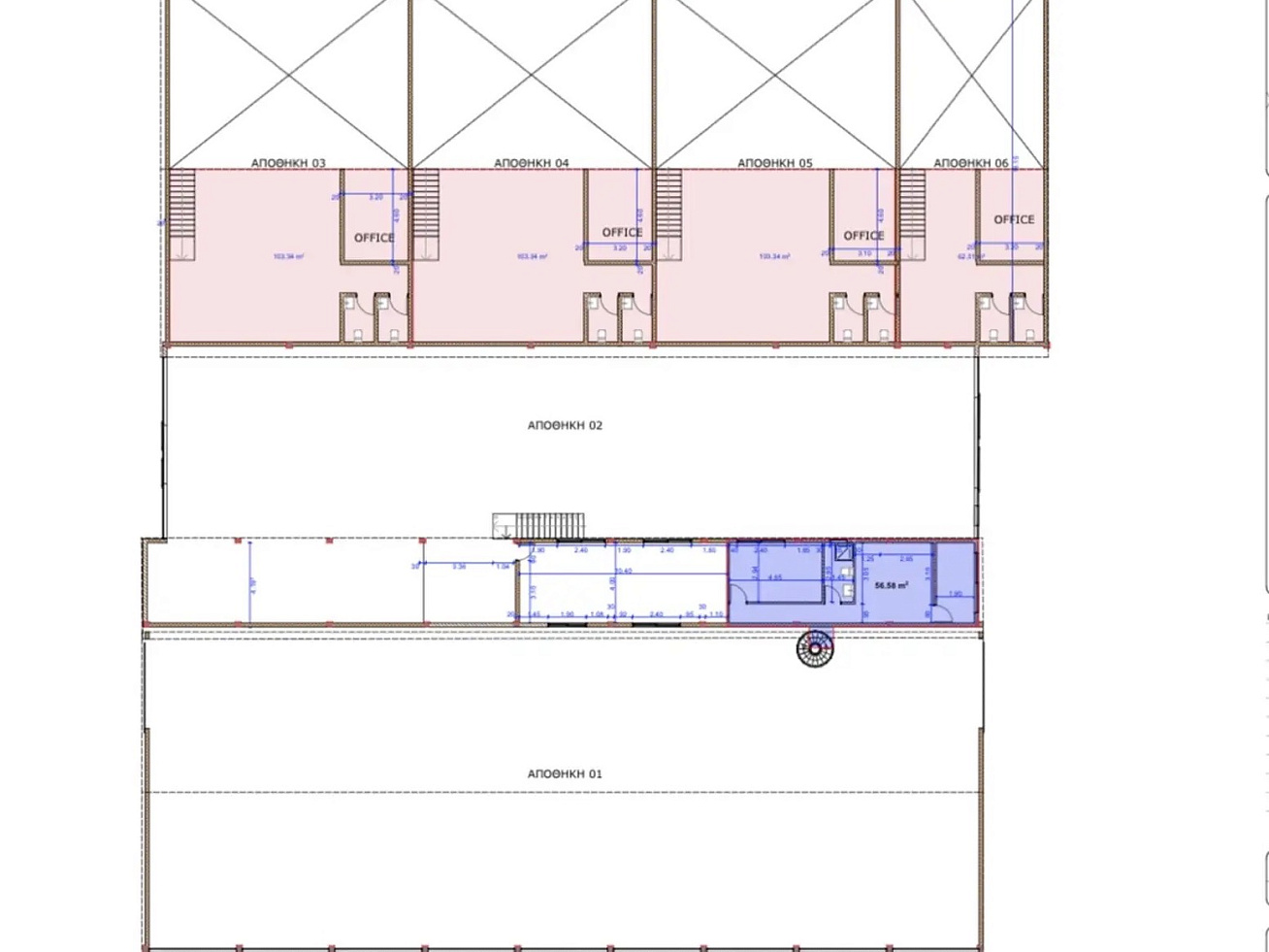
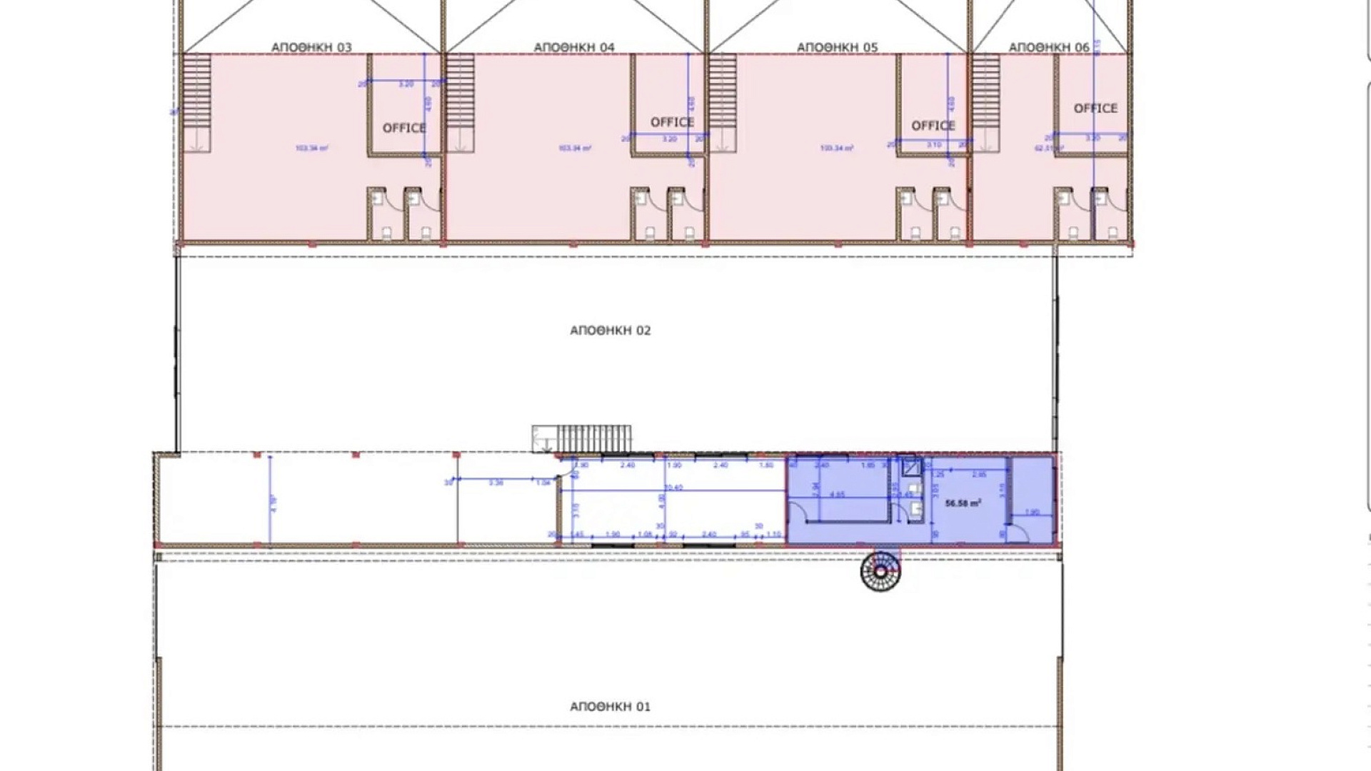
For rent a warehouse with a covered area of 250 m2 on a plot of 3000 m2 in the area of Aradippou – Sotiros, Larnaca. Energy efficiency class A. The warehouse is located next to Coffee Shop 51, with a convenient entrance and parking, which provides convenient logistics and transport access. Storage areas ranging from 300 to 700 m2 are available, the rental price is €6 per m2 and is subject to availability.
Read more
Object
№195810
Type:
Commercial
City:
District:
Complex:
Developer:
Total area:
250 m2
Land area:
3000 m2
Internal area:
250 m2
Energy efficiency class:
A
1 500 EUR
1500
6
EUR/m2
Schedule a viewing
Similar offers
485 objects
Show all
Interesting
