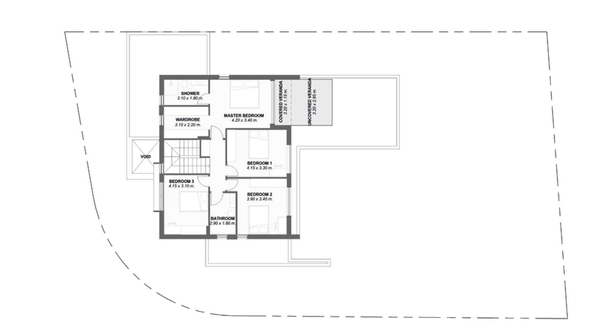
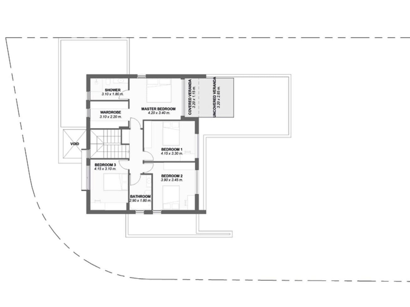
Новая 4-спальная вилла в Никосии №193121
Продаётся дом в районе Latsia, Nicosia. Это современный объект с высокими стандартами строительства и энергоэффективности, который отвечает требованиям сертификата класса А. Дом оснащён системой напольного отопления, обеспечивающей комфортное проживание в любое время года. Благодаря качественной звуко- и теплоизоляции создаются оптимальные условия для тишины и стабильного микроклимата.
Горячее водоснабжение обеспечивается солнечным водонагревателем, а система повышения давления гарантирует стабильный напор воды. Для отделки пола предусмотрены варианты керамической плитки, паркета или мрамора, что позволяет создать интерьер в соответствии с предпочтениями владельца. На кухне установлены рабочие поверхности из техногранита, сочетающие стиль и долговечность.
Для повышения безопасности предусмотрена система входной камеры, а также возможность установки сигнализации. В доме также предусмотрены выводы под монтаж кондиционеров во всех необходимых помещениях. Этот дом сочетает в себе энергоэффективность, современные технологии и высококачественные материалы, предлагая комфортное и практичное пространство для постоянного проживания.
