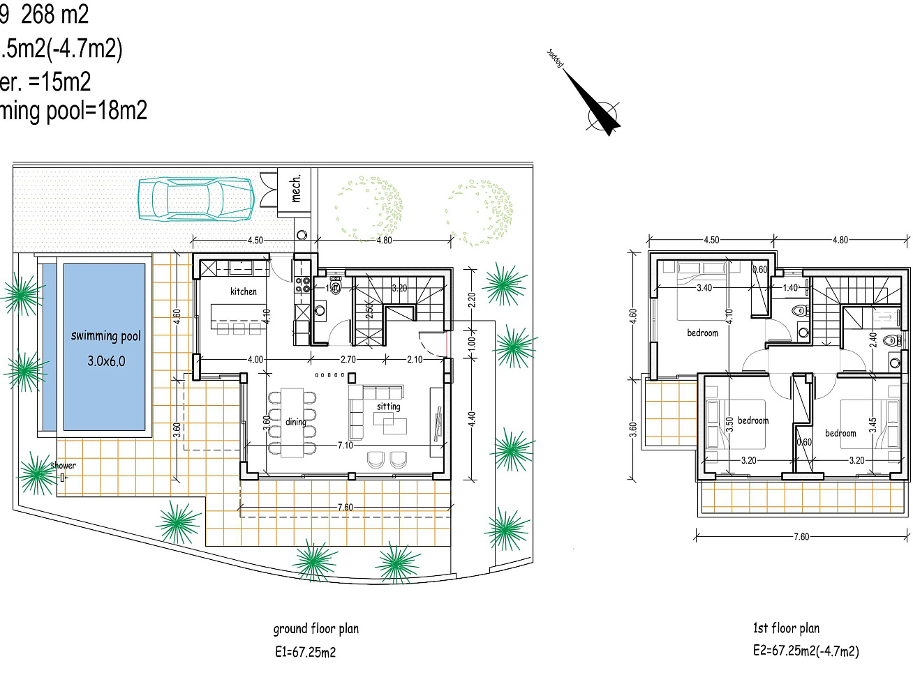
Новая 3-спальная вилла в Пафосе №192989
Продаётся современная вилла в районе Konia, Paphos, расположенная в тихой холмистой местности с завораживающими видами на море. Вилла включает 3 просторные спальни, приватный бассейн и открытые террасы. Светлая открытая планировка, большие панорамные окна и продуманные интерьеры создают атмосферу лёгкости и гармонии. Расположение объекта — одно из лучших преимуществ: всего в нескольких минутах находится центр Пафоса, пляжи, международные школы, торговые центры и удобный выезд на трассу Пафос–Лимассол. Район Konia известен своей спокойной атмосферой, потрясающими видами и близостью ко всей необходимой инфраструктуре. Вилла построена по современным стандартам энергосбережения, сочетая стильную архитектуру, высокое качество материалов и функциональные решения.
