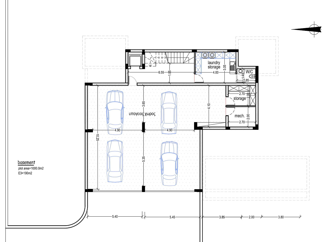
Новая 5-спальная вилла в Пафосе №192982
Продаётся роскошная вилла в районе Tala, Paphos, расположенная на живописных холмах с потрясающими видами на Средиземное море. Это эксклюзивная возможность приобрести жильё в одном из самых востребованных и спокойных районов Пафоса, где гармонично сочетаются приватность, природа и современный комфорт. Вилла расположена на просторном частном участке и может быть спроектирована с учётом индивидуальных пожеланий владельца. Современная архитектура, продуманные планировки, высококачественные материалы и элегантные интерьерные решения позволяют создать дом мечты, полностью соответствующий вашему стилю жизни. Район отличается развитой инфраструктурой и удобством расположения: в нескольких минутах находятся супермаркеты, кафе, ресторанчики, спортивные объекты, а также международная частная школа. До моря — всего около 10 минут езды, до аэропорта Пафоса — около 30 минут.
