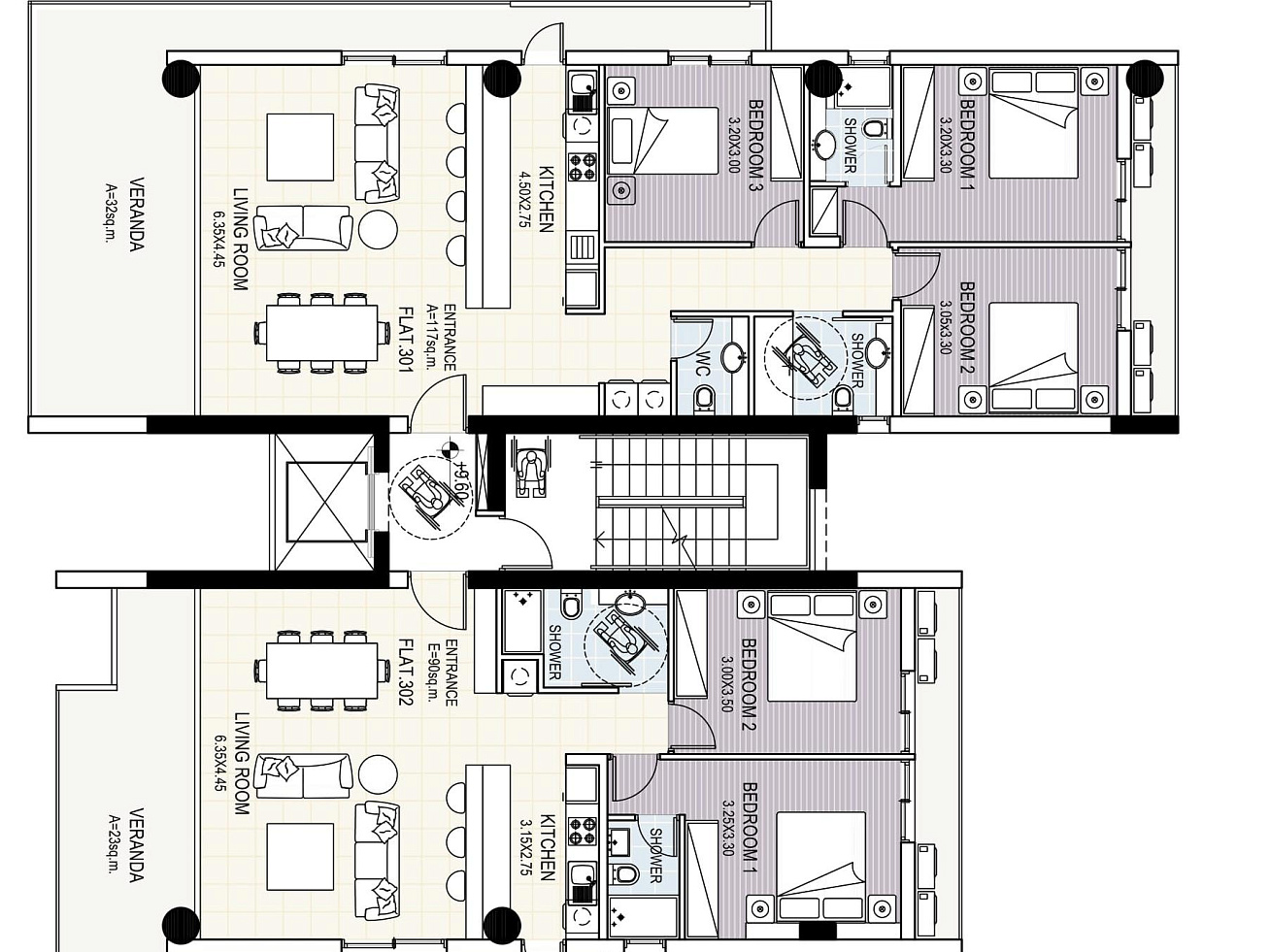
Новая 3-спальная квартира в Никосии №192778
Продаётся квартира в районе Agios Andreas, Nicosia. Здание оснащено современным лифтом, системой контроля доступа и удобной крытой парковкой с возможностью установки зарядной станции для электромобиля. Жилая площадь продумана для комфортной жизни: напольное отопление с тепловым насосом, фотоэлектрическая система (для квартир с двумя и тремя спальнями), солнечный бойлер и система повышения давления воды обеспечивают экономичность и удобство.
Внутренняя отделка выполнена из качественных материалов — крупная керамическая плитка и энергоэффективные окна с двойным остеклением создают современный и функциональный интерьер. Квартира идеально подходит для комфортного проживания или выгодной инвестиции благодаря своему расположению, высокому качеству строительства и продуманной инфраструктуре.
