Новый 4-спальный дом в Пафосе №191088
Дополнительно:
Закрытый комплекс
Новостройка
Бассейн
Кондиционер
Парковка
Кладовая
Описание:
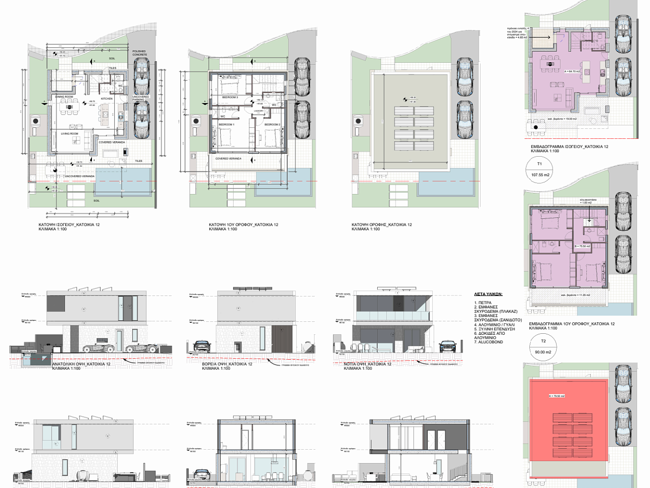
Продаётся вилла в строящемся комплексе в районе Geroskipou, Пафос. В каждом доме будет бассейн, зона барбекю, система кондиционирования (сплит-система), современная сантехника, крытая парковка. Комплекс будет состоять из 13 домов с приватным въездом.
Читать далее
Объект
№191088
Тип:
Вилла / Дом
Город:
Район:
Комплекс:
Застройщик:
Кол-во спален:
4
Ванных комнат:
3
Общая площадь:
200 м2
Жилая площадь:
145 м2
Площадь участка:
285 м2
Этажность:
2
Год постройки:
06/2027
Расстояние до моря:
2000 м
Класс энергоэффективности:
A
475 000 EUR
+ VAT
475000
2 375
EUR/м2
Записаться на просмотр
Похожие предложения
2083 объекта
Показать все
Интересное
