Новая 1-спальная квартира в Лимассоле №190961
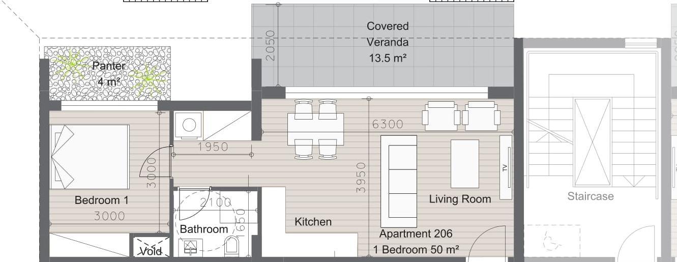
Продается квартира в современном жилом комплексе в районе Agios Athanasios, Limassol. Каждая квартира в комплексе спроектирована с учетом современных требований к комфорту и функциональности. Проектом предусмотрена открытая планировка кухни и гостиной, а также крытая веранда.
Высококачественная отделка квартир выполнена с использованием современных материалов и технологий, что гарантирует долговечность. В жилом комплексе предусмотрены все необходимые удобства для комфортного проживания, включая современные инженерные системы и благоустроенную территорию. Для каждой квартиры предусмотрено парковочное место.
Жилой комплекс выгодно расположен в одном из самых востребованных районов города. Развитая инфраструктура района обеспечивает легкий доступ ко всем необходимым объектам: магазинам, ресторанам, школам и медицинским учреждениям. Удобная транспортная развязка позволит быстро добраться в любую точку города.
