Новая 1-спальная квартира в Ларнаке №190061
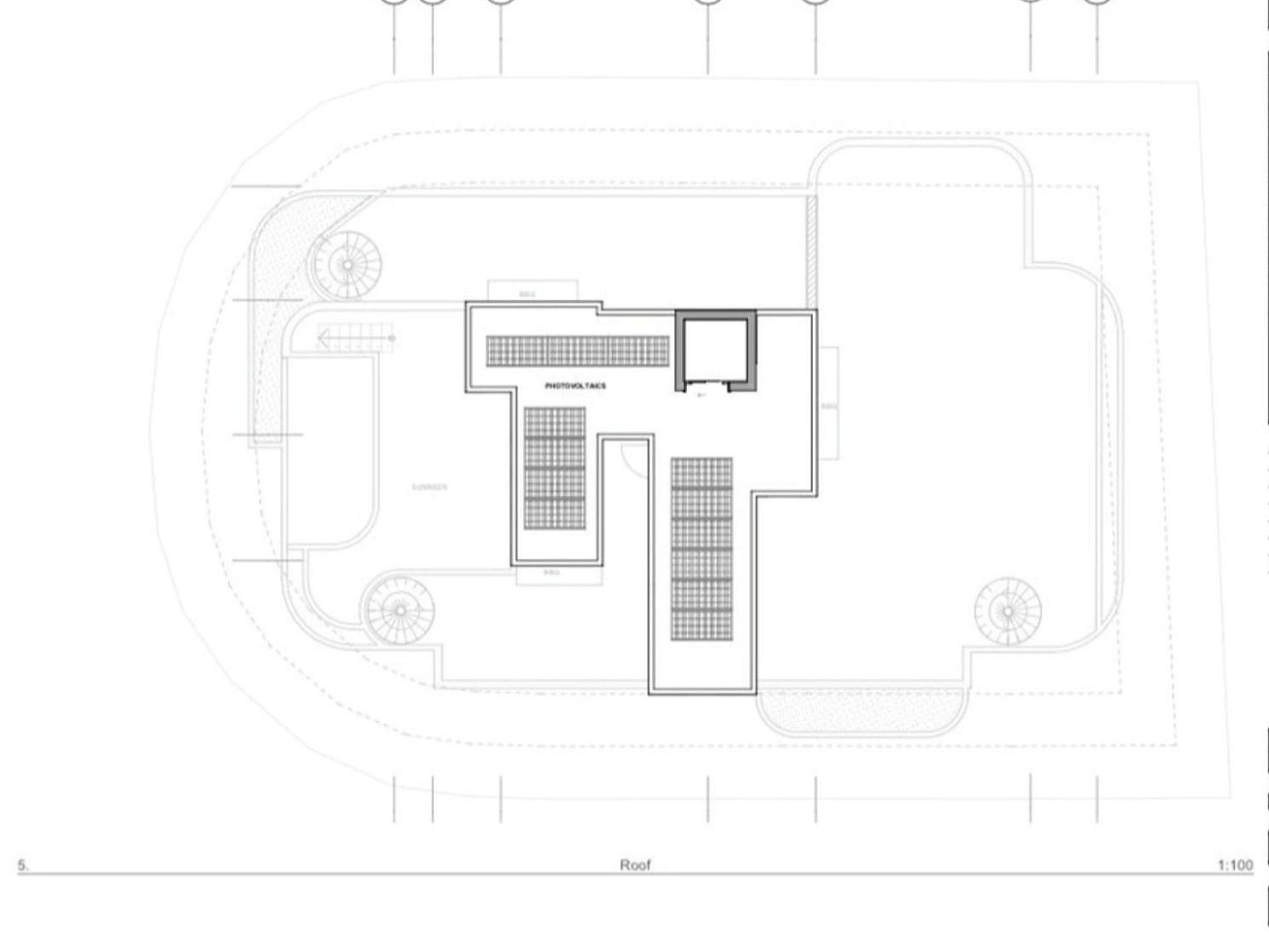
Продается квартира в районе Kamares, Larnaca. Это современный экологичный дом класса люкс с панорамными окнами, садом на крыше и панорамным бассейном с видом на Соленое озеро.
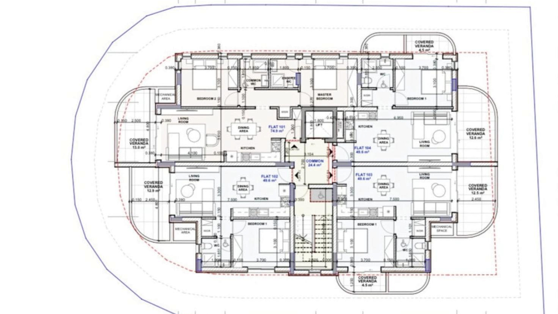
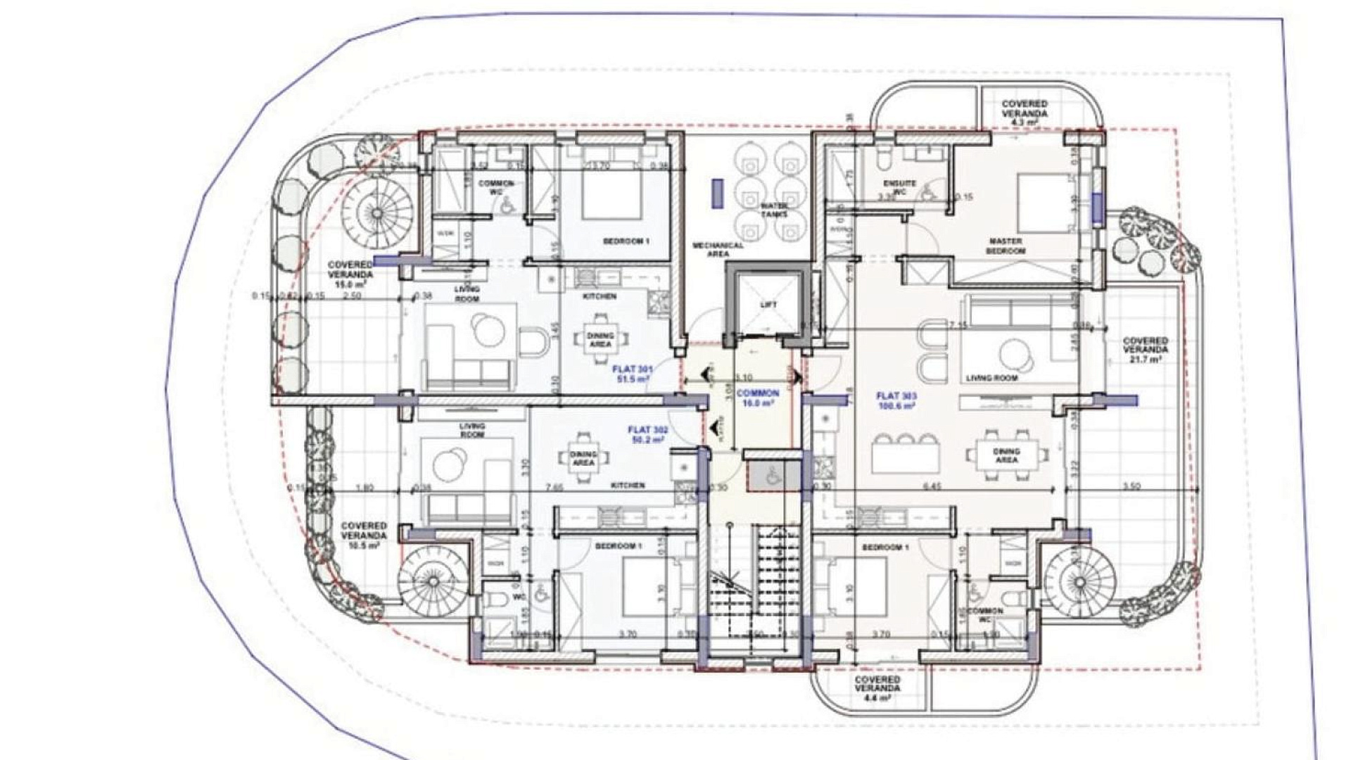
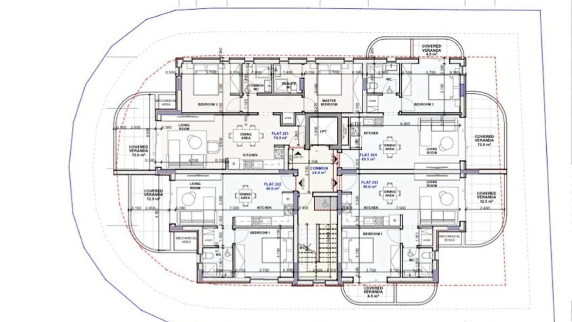
Всего в трехэтажном комплексе 11 роскошных квартир с 1 и 2 спальнями. Каждая квартира включает в себя одно парковочное место и одну кладовую. В комплексе продуманная планировка, обеспечивающая максимальное естественное освещение.
Проект сочетает в себе современную архитектуру и природную красоту: общая зона барбекю и отдыха, роскошный вестибюль и вход, современный дизайн класса люкс, лифт с отделкой премиум-класса. Энергоэффективное здание класса А.
Камарес— один из самых тихих и востребованных жилых районов, расположенный недалеко от школ, супермаркетов и в 3 минутах езды от торгового центра Larnaca Mall.
